奥澤ビル(物件No:31687114)
奥澤ビルは港区芝にある地上5階建ての賃貸事務所です。最寄駅は都営大江戸線の赤羽橋駅から徒歩3分、都営浅草線の三田駅から徒歩7分、都営三田線の芝公園駅から徒歩4分、都営三田線の三田駅から徒歩7分、JR線の田町駅から徒歩10分です。1976年竣工の鉄骨造です。設備としては、エレベーターが1基あります。空調は個別空調です。複数路線利用可能なアクセスの良い港区芝の賃貸オフィスです。
-
物件情報
-
設備情報
- トイレ
- -
- 床
- -
- 空調
- 個別空調
- セキュリティ
- -
- 駐車場
- -
- 会議室
- -
- エレベーター
- 1基
- 天井高
- -
-
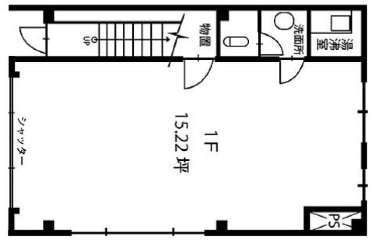
間取り図
-
近隣相場情報
芝3丁目(20坪以下)の相場
20925 円 (坪)
※ビルサク調べ
周辺施設情報
| コンビニ |
セブンイレブン/港区芝3丁目/49m(徒歩1分) ローソン/芝公園南/230m(徒歩3分) |
|---|---|
| 郵便局/銀行 |
芝信用金庫/三田支店/350m(徒歩4分) 信用組合/七島信用組合 東京支店/280m(徒歩3分) |
| 飲食店 |
志な乃/11時00分~14時00分、17時30分~19時30分/54m(徒歩1分) スカイラウンジ ステラガーデン/17時00分~1時30分/600m(徒歩8分) |
| カフェ |
カフェ・フェリーチェ/月~金 ランチ 11:30~13:00(L.O.13:00)カフェ 9:30~11:30 カフェ 13:00~16:00 /400m(徒歩5分) カフェ&バーラウンジ セレクロワ/8時00分~23時00分/400m(徒歩5分) |
| コインパーキング |
タイムズ駐車場/ザ・プリンスパークタワー東京 [料金] [月~金]通常料金 / 8:00~20:00 30分 500円 20:00~8:00 60分 100円 [土・日・祝]通常料金 / 8:00~20:00 30分 500円 20:00~8:00 60分 100円 [最大料金] [月~金]当日1日最大料金2700円(24時迄) [台数]264 NBパーキング/芝 2台 |
周辺地図
奥澤ビルは港区芝にある地上5階建ての賃貸事務所です。最寄駅は都営大江戸線の赤羽橋駅から徒歩3分、都営浅草線の三田駅から徒歩7分、都営三田線の芝公園駅から徒歩4分、都営三田線の三田駅から徒歩7分、JR線の田町駅から徒歩10分です。1976年竣工の鉄骨造です。設備としては、エレベーターが1基あります。空調は個別空調です。複数路線利用可能なアクセスの良い港区芝の賃貸オフィスです。
全フロア情報
更新日:2026年1月30日
| 階 | 面積 | 賃料 | 共益費 | 敷金 | 入居日 | お問合せ | お気に入り | |
|---|---|---|---|---|---|---|---|---|
| 1F |
15.22 坪 50.31 ㎡ |
※現在空室情報はございません |
※現在空室情報は 確認する |
|||||
|
2F
(1区画) |
14.93 坪 49.36 ㎡ |
※現在空室情報はございません |
※現在空室情報は 確認する |
|||||
お問い合わせ
似た条件の物件はこちら
-
御田八幡ビル
東京都港区三田3-7-16
坪数:17.5 坪
坪単価:11,429 円(坪)
-
専売ビル
東京都港区芝5-26-30
坪数:12.33 坪
坪単価:19,981 円(坪)
-
芝大門1丁目ビル
東京都港区芝大門1-6-4
坪数:12.87 坪
坪単価:17,094 円(坪)
-
グランディックビル
東京都港区芝5-14-14
坪数:16.5 坪
坪単価:16,970 円(坪)
-
ミナトヤビル
東京都港区芝浦3-11-8
坪数:10.29 坪
坪単価:13,252 円(坪)
-
星野ビル
東京都港区浜松町1-15-6
坪数:15 坪
坪単価:12,000 円(坪)
-
オーロラ三田
東京都港区三田2-17-29
坪数:19.5 坪
坪単価:28,000 円(坪)
-
TTD PLAZA
東京都港区三田1-2-18
坪数:19.97 坪
坪単価:16,024 円(坪)
-
天池ビル
東京都港区芝5-16-4
坪数:19.77 坪
坪単価:8,994 円(坪)
-
Biz Feel 浜松町
東京都港区浜松町2-7-13
坪数:14.82 坪
坪単価:34,000 円(坪)