豊国ビル(物件No:31685133)
豊国ビルは、港区芝大門にある貸事務所物件です。最寄り駅は都営大江戸線、浅草線大門駅、三田線芝公園駅、JR浜松町駅です。1971年竣工で基準階が86.52坪の賃貸オフィスビルです。天井の高さは2700mmとなっています。トイレは男女別です。エレベーターは1基あります。複数路線利用可能で交通アクセスの良い、港区芝大門の貸事務所です。
-
物件情報
-
設備情報
- トイレ
- 男女別
- 床
- -
- 空調
- -
- セキュリティ
- -
- 駐車場
- -
- 会議室
- -
- エレベーター
- 1基
- 天井高
- 2700mm
-
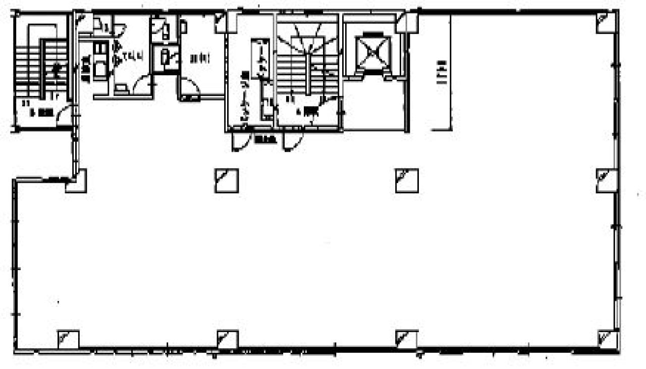
間取り図
-
近隣相場情報
芝大門2丁目(50~100坪)の相場
26600 円 (坪)
※ビルサク調べ
周辺施設情報
| コンビニ |
ファミリーマート/芝大門店/210m(徒歩3分) セブンイレブン/芝大門2丁目/280m(徒歩3分) |
|---|---|
| 郵便局/銀行 |
イーネット/生活彩家貿易センター/[営業時間]7:00~23:00/450m(徒歩6分) ローソン銀行/文化放送メディアプラス共同出張所/[営業時間]24時間 [取扱]海外発行カード対応、視覚障害者対応 [備考]ご利用可能な金融機関 当店のATM管理はローソン銀行です/400m(徒歩6分) |
| 飲食店 |
北海道八雲町 浜松町店/17時00分~23時30分/160m(徒歩2分) しんぱち食堂 大門店/7時00分~23時30分/160m(徒歩2分) |
| カフェ |
タリーズ/日本生命浜松町クレアタワー店/[営業時間]平日:7:00~21:00 土:8:00~20:00 日祝:8:00~20:00 [備考]Tully's Wi-Fi/230m(徒歩3分) 久緒羅珈琲/11時00分~19時00分/250m(徒歩3分) |
| コインパーキング |
タイムズ駐車場/芝大門第4 [料金] [全日]08:00-22:00 15分 300円 [全日]22:00-08:00 60分 100円 [最大料金] [全日]駐車後5時間 最大料金3200円 [台数]2 公社駐車場/芝大門二丁目 [料金] 30分400円(8:00~22:00) 60分100円(22:00~8:00) [最大料金] 夜間最大500円 [台数]2台 |
周辺地図
豊国ビルは、港区芝大門にある貸事務所物件です。最寄り駅は都営大江戸線、浅草線大門駅、三田線芝公園駅、JR浜松町駅です。1971年竣工で基準階が86.52坪の賃貸オフィスビルです。天井の高さは2700mmとなっています。トイレは男女別です。エレベーターは1基あります。複数路線利用可能で交通アクセスの良い、港区芝大門の貸事務所です。
全フロア情報
更新日:2018年3月26日
| 階 | 面積 | 賃料 | 共益費 | 敷金 | 入居日 | お問合せ | お気に入り | |
|---|---|---|---|---|---|---|---|---|
| 1F |
69.53 坪 229.85 ㎡ |
※現在空室情報はございません |
※現在空室情報は 確認する |
|||||
| 2F |
86.51 坪 285.98 ㎡ |
※現在空室情報はございません |
※現在空室情報は 確認する |
|||||
| 3F |
86.51 坪 285.98 ㎡ |
※現在空室情報はございません |
※現在空室情報は 確認する |
|||||
| 4F |
86.07 坪 284.53 ㎡ |
※現在空室情報はございません |
※現在空室情報は 確認する |
|||||
| 5F |
86.07 坪 284.53 ㎡ |
※現在空室情報はございません |
※現在空室情報は 確認する |
|||||
| 6F |
86.07 坪 284.53 ㎡ |
※現在空室情報はございません |
※現在空室情報は 確認する |
|||||
| 8F |
35.71 坪 118.05 ㎡ |
※現在空室情報はございません |
※現在空室情報は 確認する |
|||||
お問い合わせ
似た条件の物件はこちら
-
Bizflex麻布十番
東京都港区三田1-1-14
坪数:72.56 坪
坪単価:40,793 円(坪)
-
専売ビル
東京都港区芝5-26-30
坪数:69.1 坪
坪単価:20,501 円(坪)
-
TTD PLAZA
東京都港区三田1-2-18
坪数:69.86 坪
坪単価:16,000 円(坪)
-
+SHIFT SHIBADAIMON
東京都港区芝大門2-1-16
坪数:77.89 坪
坪単価:30,000 円(坪)
-
ACN芝プラザビル
東京都港区芝4-5-11
坪数:67.38 坪
坪単価:22,000 円(坪)
-
第一ビル
東京都港区浜松町1-7-3
坪数:80.13 坪
坪単価:12,000 円(坪)
-
苔香園ビル
東京都港区芝公園1-3-8
坪数:73.88 坪
坪単価:19,750 円(坪)
-
THE PORTAL MITA
東京都港区三田3-2-8
坪数:104.69 坪
坪単価:30,000 円(坪)
-
八大浜松町ビル
東京都港区浜松町1-27-13
坪数:71.44 坪
坪単価:24,000 円(坪)
-
AxiorMITA
東京都港区三田3-1-17
坪数:71.62 坪
坪単価:17,000 円(坪)