光輪会館ビル(物件No:31682143)
光輪会館ビルは、港区芝公園にある貸事務所物件です。最寄り駅は都営三田線御成門駅、大江戸線、浅草線大門駅、東京メトロ日比谷線神谷町駅です。1960年竣工で基準階が35坪の賃貸オフィスビルです。空調は個別空調です。エレベーターは1基あります。複数路線利用可能で交通アクセスの良い、港区芝公園の貸事務所です。
-
物件情報
-
設備情報
- トイレ
- 室外男女別
- 床
- -
- 空調
- 個別空調
- セキュリティ
- -
- 駐車場
- -
- 会議室
- -
- エレベーター
- 1基
- 天井高
- -
-
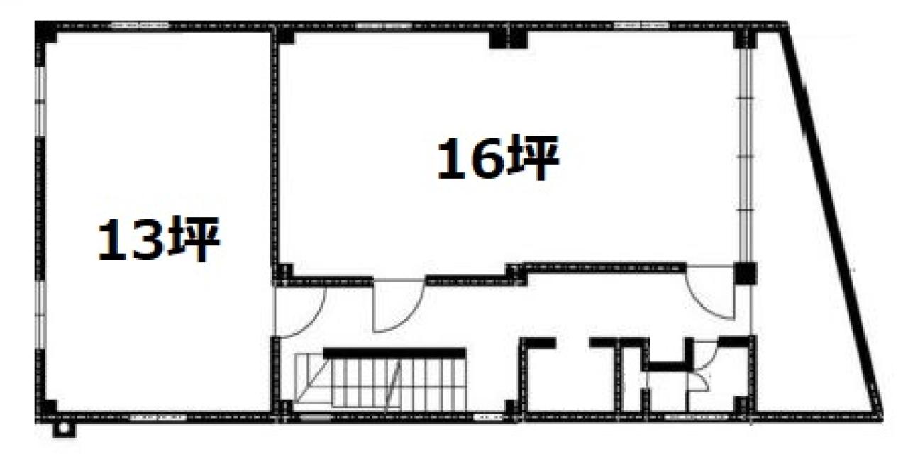
間取り図
-
近隣相場情報
芝公園3丁目(20坪以下)の相場
17149 円 (坪)
※ビルサク調べ
周辺施設情報
| コンビニ |
ローソン/芝公園四丁目/50m(徒歩1分) セブンイレブン/港区飯倉/200m(徒歩3分) |
|---|---|
| 郵便局/銀行 |
郵便局/機械振興会館内/平日 9:00~17:00 土曜日 お取り扱いしません 日曜日・休日 お取り扱いしません [ATM]平日 9:00-17:30 土曜 - 日曜・祝日 -/100m(徒歩1分) セブン銀行/東京タワー/[営業時間]9:30~22:00 [備考]1 台/260m(徒歩4分) |
| 飲食店 |
ナポリスタカ/11時30分~14時00分、18時00分~22時00分/110m(徒歩1分) 宇明家 東京タワー店/[夜]~¥999/210m(徒歩3分) |
| カフェ |
横濱屋/10時00分~19時00分/71m(徒歩1分) 猿田彦珈琲/神谷町オレンジ店/[営業時間]平日/8:00~19:00/210m(徒歩2分) |
| コインパーキング |
タイムズ駐車場/東京タワースタジオ前 [料金] [全日]通常料金 / 07:00-22:00 30分 500円 [全日]通常料金 / 22:00-07:00 30分 100円 [台数]3 トラストパーク/エーパーク麻布台 [料金] (08:00~00:00)15分400円 (00:00~08:00)30分200円 [台数]1台 |
周辺地図
光輪会館ビルは、港区芝公園にある貸事務所物件です。最寄り駅は都営三田線御成門駅、大江戸線、浅草線大門駅、東京メトロ日比谷線神谷町駅です。1960年竣工で基準階が35坪の賃貸オフィスビルです。空調は個別空調です。エレベーターは1基あります。複数路線利用可能で交通アクセスの良い、港区芝公園の貸事務所です。
全フロア情報
更新日:2021年6月11日
| 階 | 面積 | 賃料 | 共益費 | 敷金 | 入居日 | お問合せ | お気に入り | |
|---|---|---|---|---|---|---|---|---|
| 2F |
34.00 坪 112.40 ㎡ |
※現在空室情報はございません |
※現在空室情報は 確認する |
|||||
|
2F
(1区画) |
13.00 坪 42.98 ㎡ |
※現在空室情報はございません |
※現在空室情報は 確認する |
|||||
|
2F
(2区画) |
21.00 坪 69.42 ㎡ |
※現在空室情報はございません |
※現在空室情報は 確認する |
|||||
| 3F |
34.00 坪 112.40 ㎡ |
※現在空室情報はございません |
※現在空室情報は 確認する |
|||||
|
4F
(北区画) |
13.00 坪 42.98 ㎡ |
※現在空室情報はございません |
※現在空室情報は 確認する |
|||||
| 5F |
22.00 坪 72.73 ㎡ |
※現在空室情報はございません |
※現在空室情報は 確認する |
|||||
|
5F
(北区画) |
13.00 坪 42.98 ㎡ |
※現在空室情報はございません |
※現在空室情報は 確認する |
|||||
| 6F |
29.00 坪 95.87 ㎡ |
※現在空室情報はございません |
※現在空室情報は 確認する |
|||||
|
6F
(北区画) |
13.00 坪 42.98 ㎡ |
※現在空室情報はございません |
※現在空室情報は 確認する |
|||||
|
6F
(南区画) |
16.00 坪 52.89 ㎡ |
※現在空室情報はございません |
※現在空室情報は 確認する |
|||||
お問い合わせ
似た条件の物件はこちら
-
専売ビル
東京都港区芝5-26-30
坪数:12.33 坪
坪単価:19,981 円(坪)
-
マリンクス・タワー
東京都港区海岸1-9-11
坪数:17.73 坪
坪単価:16,000 円(坪)
-
芝サニーハイツ
東京都港区芝5-27-4
坪数:17.28 坪
坪単価:11,574 円(坪)
-
芝大門1丁目ビル
東京都港区芝大門1-6-4
坪数:12.87 坪
坪単価:17,094 円(坪)
-
グランディックビル
東京都港区芝5-14-14
坪数:16.5 坪
坪単価:18,182 円(坪)
-
My Maison
東京都港区芝3-16-9
坪数:15.13 坪
坪単価:16,530 円(坪)
-
YKホープ芝大門
東京都港区芝大門1-3-9
坪数:15.56 坪
坪単価:12,211 円(坪)
-
亀田ビル
東京都港区浜松町2-7-6
坪数:12.02 坪
坪単価:17,471 円(坪)
-
CROSS三田
東京都港区三田3-14-13
坪数:20.25 坪
坪単価:15,012 円(坪)
-
星野ビル
東京都港区浜松町1-15-6
坪数:15 坪
坪単価:12,000 円(坪)