マイスクエア(物件No:31681164)
マイスクエアは港区麻布十番にある地下1階、地上8階建ての賃貸事務所です。最寄駅は都営大江戸線の麻布十番駅から徒歩2分、都営大江戸線の赤羽橋駅から徒歩10分、東京メトロ日比谷線の六本木駅から徒歩12分です。1987年10月竣工の基準階面積が76.14坪の鉄骨鉄筋コンクリート造です。設備としては、エレベーターが1基あり、駐車場もあります。トイレは男女別です。空調は個別空調です。床仕様はフリーアクセスです。耐震設計となっている、複数駅利用可能なアクセスの良い港区麻布十番の賃貸オフィスです。
-
物件情報
-
設備情報
- トイレ
- 室内男女別
- 床
- フリーアクセス
- 空調
- 個別空調
- セキュリティ
- 有
- 駐車場
- 有
- 会議室
- -
- エレベーター
- 1基
- 天井高
- 2400mm
-
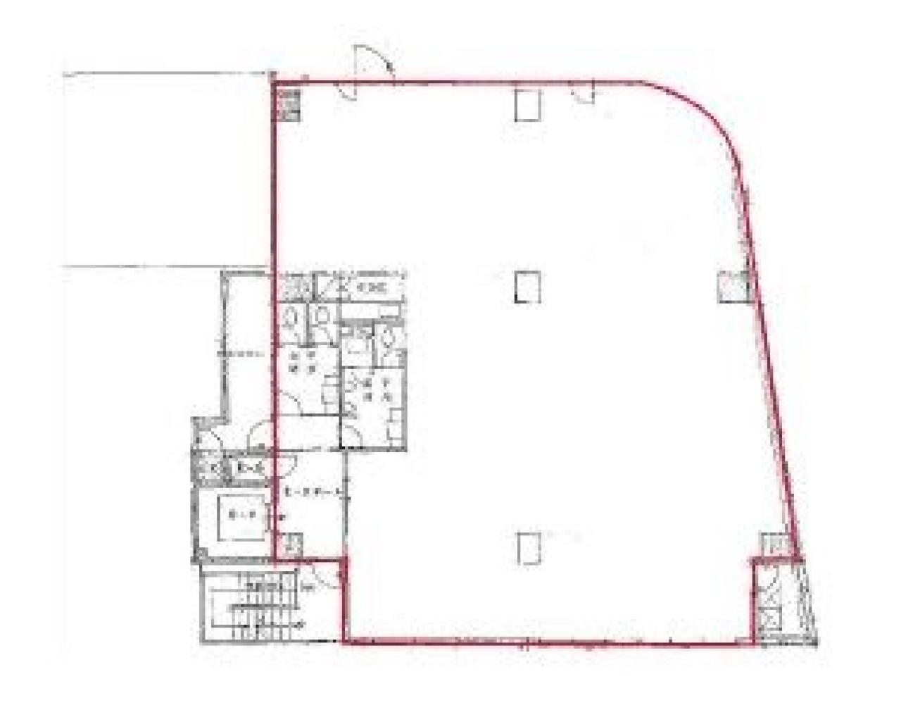
間取り図
-
近隣相場情報
麻布十番2丁目(50~100坪)の相場
11876 円 (坪)
※ビルサク調べ
周辺施設情報
| コンビニ |
セブンイレブン/港区麻布十番3丁目/280m(徒歩3分) ファミリーマート/麻布十番商店街通り店/200m(徒歩2分) |
|---|---|
| 郵便局/銀行 |
セブン銀行/港区麻布十番2丁目店/[営業時間]24時間営業 [備考]2 台/99m(徒歩1分) 郵便局/ATM ファミリーマート麻布十番店内出張所/[駐車場]なし [取扱]ATM/カードATM/230m(徒歩3分) |
| 飲食店 |
焼肉苑/11時30分~20時00分/48m(徒歩1分) 麻布韓日館/11時00分~20時00分/25m(徒歩1分) |
| カフェ |
ホノルルコーヒー/麻布十番店/[営業時間]8:00~21:00 [備考]60席/120m(徒歩1分) カフェ・サンコー/11時00分~20時00分/44m(徒歩1分) |
| コインパーキング |
コインパーク/麻布十番3丁目第3 [料金] 【全日】 ■通常料金 【00:00~24:00】 20分/400円 [最大料金] 【全日】 ■最大料金 【駐車後3時間以内(1回限り)】 2200円 【全日】 ■最大料金 【22:00~8:00】 500円 [台数][車: 4台] 三井のリパーク/麻布十番2丁目第3 [料金] 全日 08:00~00:00 15分/300円 全日 00:00~08:00 30分/100円 [最大料金] 【全日】0:00~8:00以内 最大料金500円 [台数]3 |
周辺地図
マイスクエアは港区麻布十番にある地下1階、地上8階建ての賃貸事務所です。最寄駅は都営大江戸線の麻布十番駅から徒歩2分、都営大江戸線の赤羽橋駅から徒歩10分、東京メトロ日比谷線の六本木駅から徒歩12分です。1987年10月竣工の基準階面積が76.14坪の鉄骨鉄筋コンクリート造です。設備としては、エレベーターが1基あり、駐車場もあります。トイレは男女別です。空調は個別空調です。床仕様はフリーアクセスです。耐震設計となっている、複数駅利用可能なアクセスの良い港区麻布十番の賃貸オフィスです。
全フロア情報
更新日:2021年7月12日
| 階 | 面積 | 賃料 | 共益費 | 敷金 | 入居日 | お問合せ | お気に入り | |
|---|---|---|---|---|---|---|---|---|
| 3F |
76.14 坪 251.70 ㎡ |
※現在空室情報はございません |
※現在空室情報は 確認する |
|||||
| 5F |
76.14 坪 251.70 ㎡ |
※現在空室情報はございません |
※現在空室情報は 確認する |
|||||
| 6F |
74.68 坪 246.88 ㎡ |
※現在空室情報はございません |
※現在空室情報は 確認する |
|||||
| 7F |
57.59 坪 190.38 ㎡ |
※現在空室情報はございません |
※現在空室情報は 確認する |
|||||
| 8F |
33.91 坪 112.10 ㎡ |
※現在空室情報はございません |
※現在空室情報は 確認する |
|||||
お問い合わせ
似た条件の物件はこちら
-
ウィンドビル
東京都港区六本木7-4-8
坪数:73.28 坪
坪単価:19,000 円(坪)
-
マルマン六本木ビル
東京都港区六本木3-4-33
坪数:64.2 坪
坪単価:14,000 円(坪)
-
東麻布アベビル
東京都港区東麻布1-10-11
坪数:62.21 坪
坪単価:14,900 円(坪)
-
六本木トリニティビル
東京都港区六本木7-14-7
坪数:64 坪
坪単価:19,000 円(坪)
-
西麻布3丁目芙蓉Ⅳ
東京都港区西麻布3-1-16
坪数:84.5 坪
坪単価:14,201 円(坪)
-
全特六本木WEST
東京都港区六本木1-7-27
坪数:87.33 坪
坪単価:22,000 円(坪)
-
全特六本木EAST
東京都港区六本木1-7-27
坪数:64.2 坪
坪単価:22,000 円(坪)