サカイ末広ビル(物件No:31681077)
サカイ末広ビルは千代田区外神田にある地下1階、地上9階建ての賃貸事務所です。最寄駅は東京メトロ銀座線の末広町駅から徒歩1分、JR線の御徒町駅から徒歩7分、都営大江戸線の上野御徒町駅から徒歩7分、東京メトロ日比谷線の仲御徒町駅から徒歩7分、東京メトロ千代田線の湯島駅から徒歩4分です。2003年12月竣工の基準階面積が122.86坪の鉄骨鉄筋コンクリート造です。設備としては、エレベーターが3基あり、駐車場もあります。セキュリティは機械警備です。トイレは男女別です。空調は個別空調です。床仕様はフリーアクセスです。天高は2780mmです。耐震設計となっている、複数路線利用可能なアクセスの良い千代田区外神田の賃貸オフィスです。
-
物件情報
-
設備情報
- トイレ
- 室内男女別
- 床
- フリーアクセス
- 空調
- 個別空調
- セキュリティ
- 有
- 駐車場
- 有
- 会議室
- -
- エレベーター
- 3基
- 天井高
- 2780mm
-
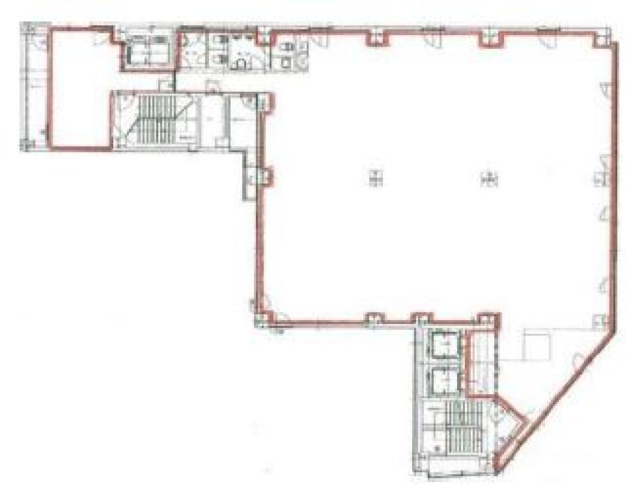
間取り図
-
近隣相場情報
外神田6丁目(100坪以上)の相場
19333 円 (坪)
※ビルサク調べ
周辺施設情報
| コンビニ |
まいばすけっと/秋葉原昭和通り店/500m(徒歩7分) ファミリーマート/秋葉原富士ソフトビル店/600m(徒歩7分) |
|---|---|
| 郵便局/銀行 |
郵便局/ATM ファミリーマート外神田三丁目東店内出張所/[駐車場]なし [取扱]ATM/カードATM/270m(徒歩4分) みずほ銀行/ATM 仲御徒町出張所/[営業時間] [ATM]平日 6:00~26:00 土曜日 7:00~22:00 日曜日 8:00~21:00 祝日・振替休日 8:00~21:00 備考 *月曜日の6:00~7:00はご利用いただけません。通帳繰越機 設置なし/550m(徒歩7分) |
| 飲食店 |
生粋/17時00分~23時00分/75m(徒歩1分) 大阪王将 末広町店/11時00分~23時00分/81m(徒歩1分) |
| カフェ |
やなか珈琲店/2k540店/[営業時間]AM11:00~PM8:00 ※豆の御注文は営業終了時間の15分前に終了させて頂きます。 [休業日]第2水曜日 [備考]イートイン:ドリンクのみ/350m(徒歩4分) エクセルシオール/カフェ 秋葉原中央通り店/[営業時間]※営業時間を短縮しております。(~20:00)■通常営業時間 平日 7:00~22:00 土曜 7:30~21:30 日祝 7:30~21:00 [備考]総席数:112(禁煙席:112 喫煙席:0)/喫煙ブース(紙・加熱)/270m(徒歩3分) |
| コインパーキング |
タイムズ駐車場/外神田第7 [料金] [全日]8:00~22:00 20分 330円 [全日]22:00~8:00 60分 110円 [最大料金] [全日]駐車後12時間 最大料金3080円 [台数]3 三井のリパーク/外神田5丁目第2 [料金] 全日 08:00~22:00 15分/400円 全日 22:00~08:00 60分/100円 [最大料金] 【全日】最大料金入庫後6時間以内3000円 [台数]4 |
周辺地図
サカイ末広ビルは千代田区外神田にある地下1階、地上9階建ての賃貸事務所です。最寄駅は東京メトロ銀座線の末広町駅から徒歩1分、JR線の御徒町駅から徒歩7分、都営大江戸線の上野御徒町駅から徒歩7分、東京メトロ日比谷線の仲御徒町駅から徒歩7分、東京メトロ千代田線の湯島駅から徒歩4分です。2003年12月竣工の基準階面積が122.86坪の鉄骨鉄筋コンクリート造です。設備としては、エレベーターが3基あり、駐車場もあります。セキュリティは機械警備です。トイレは男女別です。空調は個別空調です。床仕様はフリーアクセスです。天高は2780mmです。耐震設計となっている、複数路線利用可能なアクセスの良い千代田区外神田の賃貸オフィスです。
全フロア情報
更新日:2025年10月9日
| 階 | 面積 | 賃料 | 共益費 | 敷金 | 入居日 | お問合せ | お気に入り | |
|---|---|---|---|---|---|---|---|---|
| 1F |
76 坪 251.24 ㎡ |
※現在空室情報はございません |
※現在空室情報は 確認する |
|||||
| 2F |
108.67 坪 359.24 ㎡ |
※現在空室情報はございません |
※現在空室情報は 確認する |
|||||
| 3F |
122.86 坪 406.15 ㎡ |
※現在空室情報はございません |
※現在空室情報は 確認する |
|||||
| 4F |
118.74 坪 392.53 ㎡ |
※現在空室情報はございません |
※現在空室情報は 確認する |
|||||
| 5F |
118.74 坪 392.53 ㎡ |
※現在空室情報はございません |
※現在空室情報は 確認する |
|||||
| 6F |
122.86 坪 406.15 ㎡ |
※現在空室情報はございません |
※現在空室情報は 確認する |
|||||
| 6-7F |
245.72 坪 812.3 ㎡ |
※現在空室情報はございません |
※現在空室情報は 確認する |
|||||
| 7F |
122.86 坪 406.15 ㎡ |
※現在空室情報はございません |
※現在空室情報は 確認する |
|||||
|
7F
(A区画) |
67.53 坪 223.24 ㎡ |
※現在空室情報はございません |
※現在空室情報は 確認する |
|||||
|
7F
(B区画) |
46.32 坪 153.12 ㎡ |
※現在空室情報はございません |
※現在空室情報は 確認する |
|||||
| 8F |
103 坪 340.5 ㎡ |
※現在空室情報はございません |
※現在空室情報は 確認する |
|||||
お問い合わせ
似た条件の物件はこちら
-
大手町ゲートビルディング
東京都千代田区内神田1-31-11
坪数:94.48 坪
坪単価:64,564 円(坪)
-
アーバンセンター神田須田町
東京都千代田区神田須田町2-7-2
坪数:110.24 坪
坪単価:19,500 円(坪)
-
偕楽ビル(新末広)
東京都千代田区外神田6-5-12
坪数:126 坪
坪単価:14,000 円(坪)
-
廣瀬第1ビル
東京都千代田区神田錦町3-17
坪数:110.36 坪
坪単価:19,000 円(坪)
-
早川トナカイビル
東京都千代田区岩本町2-12-5
坪数:114.49 坪
坪単価:16,000 円(坪)
-
WORK VILLA MYJ Kanda
東京都千代田区神田小川町1-4-4
坪数:95.69 坪
坪単価:33,441 円(坪)
-
センボービル
東京都千代田区内神田2-16-9
坪数:114.4 坪
坪単価:16,300 円(坪)
-
佐藤産業ビル
東京都千代田区岩本町2-6-9
坪数:92.17 坪
坪単価:15,000 円(坪)
関連エリアから探す
- 内神田
- 神田淡路町
- 神田小川町
- 神田鍛冶町
- 神田須田町
- 神田駿河台
- 神田多町
- 神田司町
- 神田錦町
- 神田美土代町
- 岩本町
- 鍛冶町
- 神田岩本町
- 神田北乗物町
- 神田紺屋町
- 神田富山町
- 神田西福田町
- 神田東松下町
- 神田東紺屋町
- 神田美倉町
- 東神田
- 神田相生町
- 神田和泉町
- 神田佐久間町
- 神田佐久間河岸
- 神田練塀町
- 神田花岡町
- 神田松永町
- 外神田
- 神田平河町