SSTビル(物件No:31587106)
SSTビルは、港区三田にある貸事務所物件です。最寄り駅は東京メトロ南北線麻布十番駅、都営大江戸線赤羽橋駅、都営三田線芝公園駅です。1995年竣工で基準階が38.25坪の賃貸オフィスビルです。床はカーペットで、天井の高さは2465mm。トイレは室内で、空調は個別空調です。駐車場が利用可能です。複数路線利用可能で交通アクセスの良い、港区三田の貸事務所です。
-
物件情報
-
設備情報
- トイレ
- 室内男女共用
- 床
- カーペット
- 空調
- 個別空調
- セキュリティ
- -
- 駐車場
- 有
- 会議室
- -
- エレベーター
- 0基
- 天井高
- 2465mm
-
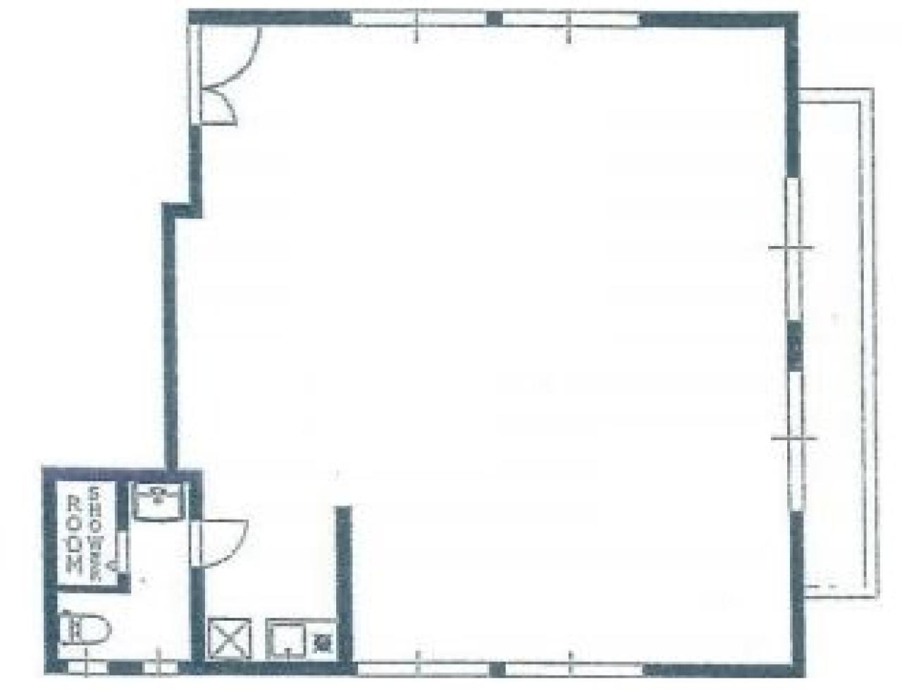
間取り図
-
近隣相場情報
三田1丁目(20坪以下)の相場
16024 円 (坪)
※ビルサク調べ
周辺施設情報
| コンビニ |
ローソン/麻布十番/500m(徒歩6分) ファミリーマート/三田桜田通り店/550m(徒歩7分) |
|---|---|
| 郵便局/銀行 |
きらぼし銀行/ATM 三田病院内出張所/[営業時間]店舗 平日 - 土曜日 - 日・祝日 - ATM 平日 8:45~19:00 土曜日 9:00~17:00 日・祝日 -/350m(徒歩4分) セブン銀行/港区麻布十番3丁目店/[営業時間]24時間営業 [備考]1 台/550m(徒歩8分) |
| 飲食店 |
ichikawa tomonori/cafe 9:00〜(平日のみ)lunch 11:30〜限定70食限定(平日のみ)dinner 18:00/65m(徒歩1分) 鈴田式/17時00分~23時30分/250m(徒歩3分) |
| カフェ |
タリーズ/三田国際ビル店/[営業時間]平日:8:00~19:00 土 :休業日 日祝:休業日/650m(徒歩8分) 新橋ベーカリーカフェ三田店/7時30分~18時30分/450m(徒歩5分) |
| コインパーキング |
タイムズ駐車場/東麻布2丁目第2 [料金] [月~土]通常料金 / 00:00-00:00 15分 300円 [日・祝]通常料金 / 00:00-00:00 15分 300円 [最大料金] [月~土]18:00-08:00 最大料金500円 08:00-18:00 最大料金3800円 [日・祝]18:00-08:00 最大料金500円 08:00-18:00 最大料金1800円 [台数]4 タイムズ駐車場/三田第13 [料金] [料金][月~土]通常料金 / 00:00-00:00 20分 300円 [料金][日・祝]通常料金 / 07:00-19:00 [最大料金] [料金][月~土]最大料金500円 [料金][日・祝] 最大料金500円 [台数]3 |
周辺地図
SSTビルは、港区三田にある貸事務所物件です。最寄り駅は東京メトロ南北線麻布十番駅、都営大江戸線赤羽橋駅、都営三田線芝公園駅です。1995年竣工で基準階が38.25坪の賃貸オフィスビルです。床はカーペットで、天井の高さは2465mm。トイレは室内で、空調は個別空調です。駐車場が利用可能です。複数路線利用可能で交通アクセスの良い、港区三田の貸事務所です。
全フロア情報
更新日:2020年7月16日
| 階 | 面積 | 賃料 | 共益費 | 敷金 | 入居日 | お問合せ | お気に入り | |
|---|---|---|---|---|---|---|---|---|
|
2F
(A区画) |
18.41 坪 60.86 ㎡ |
※現在空室情報はございません |
※現在空室情報は 確認する |
|||||
|
2F
(AB区画) |
36.32 坪 120.07 ㎡ |
※現在空室情報はございません |
※現在空室情報は 確認する |
|||||
|
2F
(B区画) |
18.58 坪 61.42 ㎡ |
※現在空室情報はございません |
※現在空室情報は 確認する |
|||||
| 3F |
37.42 坪 123.70 ㎡ |
※現在空室情報はございません |
※現在空室情報は 確認する |
|||||
お問い合わせ
似た条件の物件はこちら
-
マリンクス・タワー
東京都港区海岸1-9-11
坪数:17.73 坪
坪単価:16,000 円(坪)
-
武藤ビル
東京都港区芝浦3-11-9
坪数:21.35 坪
坪単価:12,000 円(坪)
-
グランディックビル
東京都港区芝5-14-14
坪数:16.5 坪
坪単価:18,182 円(坪)
-
My Maison
東京都港区芝3-16-9
坪数:15.13 坪
坪単価:16,530 円(坪)
-
山口ビル
東京都港区芝公園1-7-7
坪数:22 坪
坪単価:11,364 円(坪)
-
YKホープ芝大門
東京都港区芝大門1-3-9
坪数:15.56 坪
坪単価:12,211 円(坪)
-
CROSS三田
東京都港区三田3-14-13
坪数:20.25 坪
坪単価:15,012 円(坪)
-
EARTH SHIBA BLD
東京都港区芝2-10-6
坪数:22.47 坪
坪単価:29,000 円(坪)
-
星野ビル
東京都港区浜松町1-15-6
坪数:15 坪
坪単価:12,000 円(坪)
-
オーロラ三田
東京都港区三田2-17-29
坪数:19.5 坪
坪単価:28,000 円(坪)