福吉町ビル(物件No:31585145)
福吉町ビルは、港区六本木にある貸事務所物件です。最寄り駅は、東京メトロ南北線の六本木一丁目駅、溜池山王駅、東京メトロ日比谷線の神谷町駅、六本木駅、東京メトロ銀座線の溜池山王駅、東京メトロ千代田線の赤坂駅、都営大江戸線の六本木駅、都営三田線の御成門駅です。1964年竣工で、基準階が104.56坪の賃貸オフィスビルです。天高は2900mmで、床はOAフロアとなっております。空調は個別空調で、トイレは室外にあり、男女別です。機械警備で、エレベーターは1基あります。複数路線利用可能な、アクセスの良い港区六本木の貸事務所です。
| 階 | 面積 | 賃料 | 共益費 | 敷金 | 入居日 | お問合せ | お気に入り |
|---|---|---|---|---|---|---|---|
|
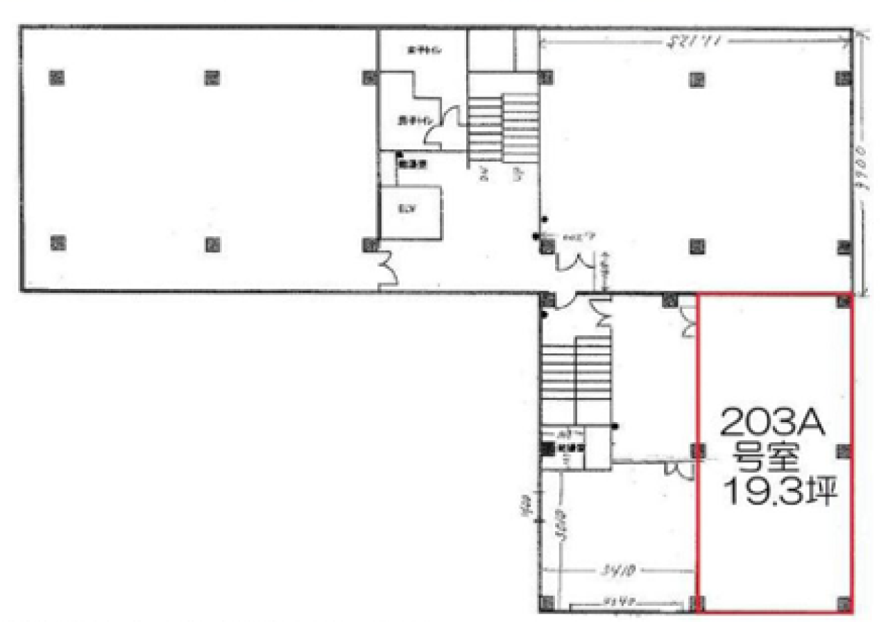
2F
(203A区画) |
19.3 坪 63.8 ㎡ |
102,500 円 12,500 円(坪) |
16,400 円 2,000 円(坪) |
410,000 円 4 ヶ月 |
2026/03 |
|
|
| 階 | 面積 | 賃料 | 共益費 | 敷金 | 入居日 | お問合せ | お気に入り |
|---|---|---|---|---|---|---|---|
|
2F
(203A区画) |
19.3 坪 63.8 ㎡ |
102,500 円 12,500 円(坪) |
16,400 円 2,000 円(坪) |
410,000 円 4 ヶ月 |
2026/03 |
|
|
-
物件情報
-
設備情報
- トイレ
- 室外男女別
- 床
- フリーアクセス
- 空調
- 個別空調
- セキュリティ
- 有
- 駐車場
- -
- 会議室
- 有
- エレベーター
- 1基
- 天井高
- 2800mm
-
間取り図
-
近隣相場情報
六本木2丁目(20坪以下)の相場
14500 円 (坪)
※ビルサク調べ
周辺施設情報
| コンビニ |
ファミリーマート/アークヒルズ前店/120m(徒歩1分) ローソン/ナチュラル アークヒルズフロントタワー/130m(徒歩2分) |
|---|---|
| 郵便局/銀行 |
ローソン銀行/ローソン NL アークヒルズフロントタワー共同出張所/[営業時間]24時間 [取扱]海外発行カード対応、視覚障害者対応 [備考]ご利用可能な金融機関 当店のATM管理はローソン銀行です/130m(徒歩2分) 三井住友銀行/ATM 赤坂ア-クヒルズ出張所/[営業時間]平日 7:00~24:00 土曜日 7:00~24:00 日・祝日 7:00~21:00/350m(徒歩4分) |
| 飲食店 |
豚しゃぶ しくら/12時00分~14時00分、18時00分~1時00分/82m(徒歩1分) ベジピア/8時00分~16時00分/97m(徒歩1分) |
| カフェ |
DEAN&DELUCA/カフェ赤坂アークヒルズ/[営業時間]月-金 7:00 - 22:00 土日祝 8:00 - 21:00 [取扱]Wi-Fi利用可 電源利用可/350m(徒歩5分) 野瀬園 本店/9時00分~18時00分/130m(徒歩2分) |
| コインパーキング |
三井のリパーク/六本木2丁目第4 [料金] 全日 08:00~00:00 25分/300円 全日 00:00~08:00 60分/100円 [最大料金] 【全日】最大料金入庫後12時間以内3000円 [台数]5 タイムズ駐車場/六本木2丁目 [料金] [月~土]通常料金 / 00:00-00:00 20分 300円 [日・祝]通常料金 / 00:00-00:00 20分 300円 [最大料金] [月~土]08:00-18:00 最大料金2400円 18:00-08:00 最大料金500円 [日・祝]08:00-18:00 最大料金1600円 18:00-08:00 最大料金500円 [台数]4 |
周辺地図
福吉町ビルは、港区六本木にある貸事務所物件です。最寄り駅は、東京メトロ南北線の六本木一丁目駅、溜池山王駅、東京メトロ日比谷線の神谷町駅、六本木駅、東京メトロ銀座線の溜池山王駅、東京メトロ千代田線の赤坂駅、都営大江戸線の六本木駅、都営三田線の御成門駅です。1964年竣工で、基準階が104.56坪の賃貸オフィスビルです。天高は2900mmで、床はOAフロアとなっております。空調は個別空調で、トイレは室外にあり、男女別です。機械警備で、エレベーターは1基あります。複数路線利用可能な、アクセスの良い港区六本木の貸事務所です。
全フロア情報
更新日:2026年1月27日
| 階 | 面積 | 賃料 | 共益費 | 敷金 | 入居日 | お問合せ | お気に入り | |
|---|---|---|---|---|---|---|---|---|
|
1F
(103区画) |
45.76 坪 151.27 ㎡ |
645,830 円 14,113 円(坪) |
75,980 円 1,660 円(坪) |
2,583,320 円 4 ヶ月 |
即日 |
|
|
|
|
2F
(201区画) |
38.5 坪 127.27 ㎡ |
481,250 円 12,500 円(坪) |
77,000 円 2,000 円(坪) |
1,925,000 円 4 ヶ月 |
即日 |
|
|
|
|
2F
(202区画) |
31.91 坪 105.49 ㎡ |
398,875 円 12,500 円(坪) |
63,820 円 2,000 円(坪) |
1,595,500 円 4 ヶ月 |
即日 |
|
|
|
|
2F
(203区画) |
8.2 坪 27.11 ㎡ |
※現在空室情報はございません |
※現在空室情報は 確認する |
|||||
|
2F
(203A区画) |
19.3 坪 63.8 ㎡ |
102,500 円 12,500 円(坪) |
16,400 円 2,000 円(坪) |
410,000 円 4 ヶ月 |
2026/03 |
|
|
|
|
2F
(204区画) |
19.47 坪 64.38 ㎡ |
※現在空室情報はございません |
※現在空室情報は 確認する |
|||||
|
3F
(301区画) |
38.5 坪 127.27 ㎡ |
※現在空室情報はございません |
※現在空室情報は 確認する |
|||||
|
3F
(302区画) |
31.91 坪 105.49 ㎡ |
※現在空室情報はございません |
※現在空室情報は 確認する |
|||||
|
3F
(303区画) |
34.15 坪 112.89 ㎡ |
※現在空室情報はございません |
※現在空室情報は 確認する |
|||||
|
4F
(401区画) |
38.5 坪 127.27 ㎡ |
※現在空室情報はございません |
※現在空室情報は 確認する |
|||||
|
4F
(402区画) |
31.91 坪 105.49 ㎡ |
※現在空室情報はございません |
※現在空室情報は 確認する |
|||||
|
5F
(501区画) |
38.5 坪 127.27 ㎡ |
※現在空室情報はございません |
※現在空室情報は 確認する |
|||||
|
7F
(701区画) |
38.5 坪 127.27 ㎡ |
※現在空室情報はございません |
※現在空室情報は 確認する |
|||||
|
7F
(702区画) |
31.91 坪 105.49 ㎡ |
※現在空室情報はございません |
※現在空室情報は 確認する |
|||||
お問い合わせ
似た条件の物件はこちら
-
センチュリオン六本木タワーⅡ
東京都港区西麻布3-6-1
坪数:21.76 坪
坪単価:20,000 円(坪)
-
麻布エンパイアマンション
東京都港区西麻布4-11-28
坪数:17.61 坪
坪単価:12,803 円(坪)
-
飯倉カムフィーホームズ
東京都港区麻布台3-4-4
坪数:19.03 坪
坪単価:11,000 円(坪)
-
ランドコム麻布台
東京都港区麻布台1-9-14
坪数:23.49 坪
坪単価:13,000 円(坪)
-
秀和六本木レジデンス
東京都港区六本木7-17-22
坪数:18.14 坪
坪単価:16,262 円(坪)
-
早野ビル
東京都港区西麻布2-13-12
坪数:23 坪
坪単価:15,800 円(坪)
-
Kukai Terrace元麻布
東京都港区元麻布3-5-27
坪数:20.61 坪
坪単価:22,804 円(坪)
-
丸井ビル
東京都港区麻布十番2-5-13
坪数:22 坪
坪単価:15,000 円(坪)
-
協電ビル
東京都港区東麻布2-29-8
坪数:20.8 坪
坪単価:12,500 円(坪)
-
三河台ハイツ
東京都港区六本木4-3-6
坪数:21.42 坪
坪単価:11,671 円(坪)