フローラビル(物件No:31584142)
フローラビルは、中央区日本橋人形町にある貸事務所物件です。最寄り駅は東京メトロ半蔵門線水天宮前駅、日比谷線小伝馬町駅、都営浅草線人形町駅です。1988年竣工で基準階が65.02坪の賃貸オフィスビルです。床はOAフロアで、天井の高さは2450mm。トイレは室内男女別で、空調は個別空調です。エレベーターは1基あり、セキュリティは機械警備となっています。駐車場が利用可能です。複数路線利用可能で交通アクセスの良い、中央区日本橋人形町の貸事務所です。
| 階 | 面積 | 賃料 | 共益費 | 敷金 | 入居日 | お問合せ | お気に入り |
|---|---|---|---|---|---|---|---|
| 7F |
65.02 坪 214.94 ㎡ |
未定 |
込 |
10ヶ月 |
2026/08/26 |
|
|
| 階 | 面積 | 賃料 | 共益費 | 敷金 | 入居日 | お問合せ | お気に入り |
|---|---|---|---|---|---|---|---|
| 7F |
65.02 坪 214.94 ㎡ |
未定 |
込 |
10ヶ月 |
2026/08/26 |
|
|
-
物件情報
-
設備情報
- トイレ
- 室内男女別
- 床
- フリーアクセス
- 空調
- 個別空調
- セキュリティ
- 有
- 駐車場
- 有
- 会議室
- -
- エレベーター
- 1基
- 天井高
- 2450mm
-
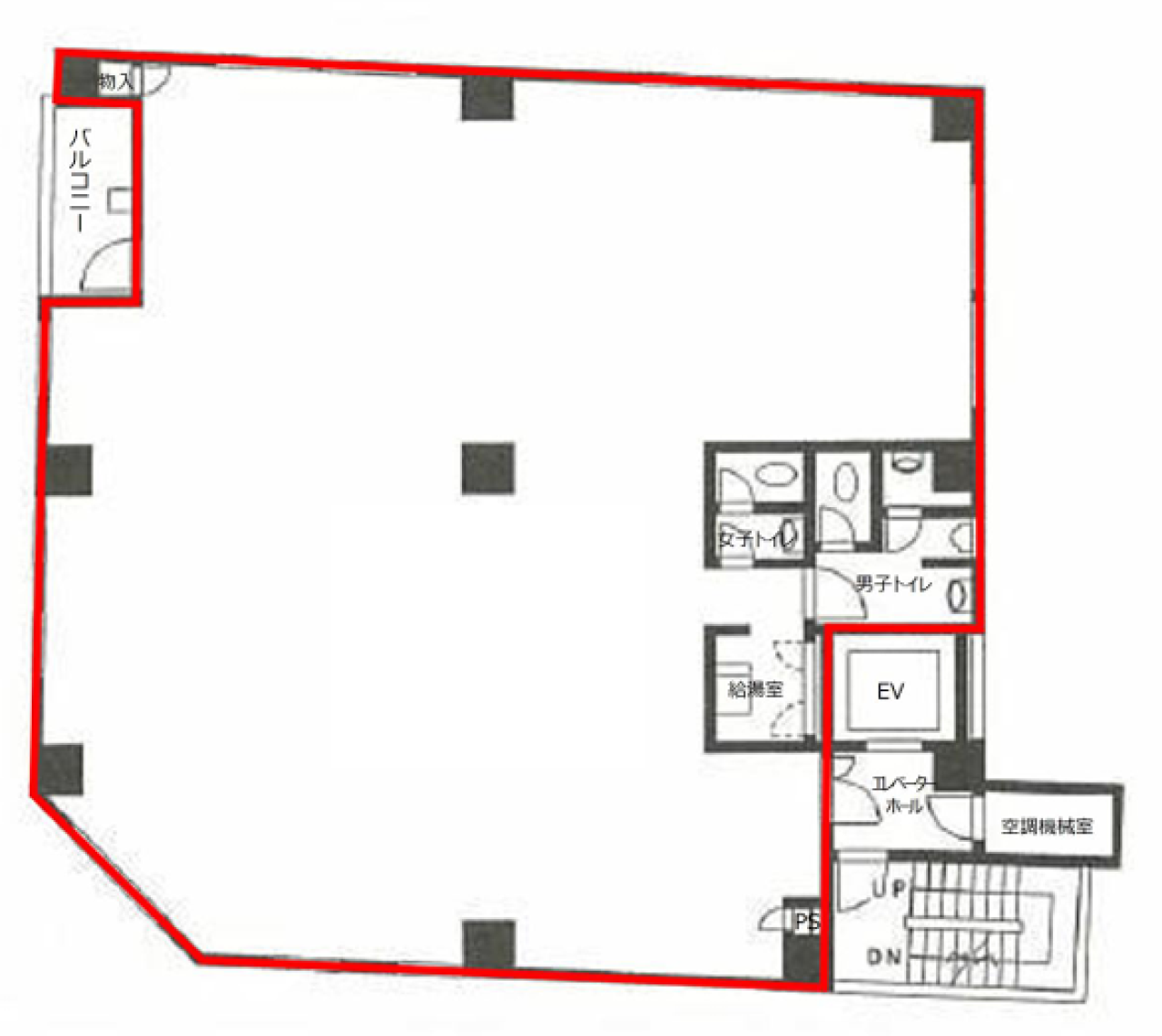
間取り図
-
近隣相場情報
日本橋人形町3丁目(50~100坪)の相場
調査中
周辺施設情報
| コンビニ |
ファミリーマート/堀留町二丁目店/60m(徒歩1分) セブンイレブン/日本橋堀留町2丁目/170m(徒歩2分) |
|---|---|
| 郵便局/銀行 |
千葉興業銀行/東京支店/[営業時間]窓口 平日 09:00~15:00 ATM 平日 09:00~17:00/180m(徒歩2分) 郵便局/日本橋人形町/平日 10:00-18:00 土曜 - 日曜・祝日 - [ATM]平日 8:00-20:00 土曜 9:00-17:00 日曜・祝日 -/290m(徒歩3分) |
| 飲食店 |
人形町 祭ヤ/11時30分~14時00分、17時00分~5時00分/140m(徒歩2分) BARRIO人形町/11時30分~14時30分、17時00分~0時00分/140m(徒歩2分) |
| カフェ |
エクセルシオール/カフェ 人形町店/[営業時間]平 日:07:00 - 22:00 土曜日:08:00 - 21:00 日 祝:08:00 - 19:00 [休業日]なし [備考]総席数:116 禁煙席:77 喫煙席:39/140m(徒歩2分) ベローチェ/人形町店/[営業時間]7:00~22:00/40m(徒歩1分) |
| コインパーキング |
タイムズ駐車場/日本橋人形町第7 [料金] [月~土]00:00-00:00 10分 300円 [日・祝]00:00-00:00 10分 300円 [最大料金] [月~土]19:00-08:00 最大料金600円 [日・祝]08:00-19:00 最大料金1800円 19:00-08:00 最大料金600円 [台数]4 PEN/人形町3丁目第6駐車場 [料金] 全日 8:00~22:00 20分 200円 全日 22:00~8:00 60分 100円 [台数]3台 |
周辺地図
フローラビルは、中央区日本橋人形町にある貸事務所物件です。最寄り駅は東京メトロ半蔵門線水天宮前駅、日比谷線小伝馬町駅、都営浅草線人形町駅です。1988年竣工で基準階が65.02坪の賃貸オフィスビルです。床はOAフロアで、天井の高さは2450mm。トイレは室内男女別で、空調は個別空調です。エレベーターは1基あり、セキュリティは機械警備となっています。駐車場が利用可能です。複数路線利用可能で交通アクセスの良い、中央区日本橋人形町の貸事務所です。
全フロア情報
更新日:2026年4月2日
| 階 | 面積 | 賃料 | 共益費 | 敷金 | 入居日 | お問合せ | お気に入り | |
|---|---|---|---|---|---|---|---|---|
| 1F |
31.8 坪 105.12 ㎡ |
※現在空室情報はございません |
※現在空室情報は 確認する |
|||||
| 2F |
50 坪 165.29 ㎡ |
※現在空室情報はございません |
※現在空室情報は 確認する |
|||||
| 3F |
50 坪 165.29 ㎡ |
※現在空室情報はございません |
※現在空室情報は 確認する |
|||||
| 4F |
50 坪 165.29 ㎡ |
※現在空室情報はございません |
※現在空室情報は 確認する |
|||||
| 7F |
65.02 坪 214.94 ㎡ |
未定 |
込 |
10ヶ月 |
2026/08/26 |
|
|
|
| 9F |
65.02 坪 214.94 ㎡ |
※現在空室情報はございません |
※現在空室情報は 確認する |
|||||
お問い合わせ
似た条件の物件はこちら
-
THE GATE日本橋人形町
東京都中央区日本橋富沢町7-16
坪数:62.65 坪
坪単価:24,000 円(坪)
-
福本ビル
東京都中央区日本橋蛎殻町1-20-3
坪数:60.4 坪
坪単価:13,000 円(坪)
-
日本橋人形町スクエア
東京都中央区日本橋堀留町1-8-11
坪数:61.34 坪
坪単価:22,000 円(坪)
-
オーキッドプレイス蛎殻町ビル
東京都中央区日本橋蛎殻町1-4-1
坪数:51.15 坪
坪単価:15,000 円(坪)
-
日本橋ウッドフィールド
東京都中央区日本橋箱崎町34-4
坪数:67.9 坪
坪単価:9,000 円(坪)
-
セキグチビル
東京都中央区日本橋馬喰町1-6-15
坪数:74.3 坪
坪単価:8,479 円(坪)
-
アライズ第2ビル
東京都中央区日本橋箱崎町5-4
坪数:52.8 坪
坪単価:11,000 円(坪)
-
日本橋蛎殻町東急ビル
東京都中央区日本橋蛎殻町1-29-4
坪数:77.93 坪
坪単価:20,000 円(坪)
-
東益ビル
東京都中央区日本橋箱崎町16-1
坪数:73.66 坪
坪単価:10,861 円(坪)
-
サンヨー堂日本橋ビル
東京都中央区日本橋堀留町1-3-21
坪数:60.69 坪
坪単価:12,000 円(坪)
関連エリアから探す
- 日本橋大伝馬町
- 日本橋蛎殻町
- 日本橋小網町
- 日本橋小伝馬町
- 日本橋小舟町
- 日本橋富沢町
- 日本橋人形町
- 日本橋箱崎町
- 日本橋堀留町
- 日本橋中洲
- 日本橋馬喰町
- 日本橋浜町
- 日本橋久松町
- 日本橋横山町
- 東日本橋