キムラヤオオツカビル(物件No:31583154)
キムラヤオオツカビルは港区新橋にある地下1階、地上9階建ての賃貸事務所です。最寄駅はJR線の新橋駅から徒歩4分、都営三田線の内幸町駅から徒歩1分、東京メトロ銀座線の虎ノ門駅から徒歩7分です。1964年4月竣工の基準階面積が28.97坪の鉄骨鉄筋コンクリート造です。設備としては、エレベーターが1基あります。セキュリティは機械警備です。トイレは男女共用です。空調は個別空調です。複数路線利用可能なアクセスの良い港区新橋の賃貸オフィスです。
-
物件情報
-
設備情報
- トイレ
- -
- 床
- -
- 空調
- -
- セキュリティ
- 有
- 駐車場
- -
- 会議室
- -
- エレベーター
- 1基
- 天井高
- -
-
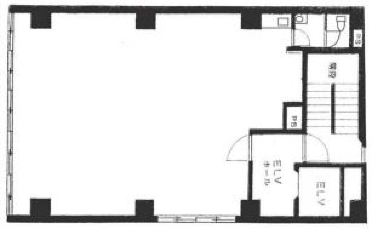
間取り図
-
近隣相場情報
新橋1丁目(20~30坪)の相場
20000 円 (坪)
※ビルサク調べ
周辺施設情報
| コンビニ |
ミニストップ/新橋1丁目店/71m(徒歩1分) ローソン/ナチュラル 日比谷国際ビル/300m(徒歩4分) |
|---|---|
| 郵便局/銀行 |
りそな銀行/新橋支店/[営業時間]平日/9:00~17:00 [ATM]平日/7:00~23:00 土/7:00~21:00 日・祝/8:00~21:00/180m(徒歩2分) ローソン銀行/内幸町一丁目共同出張所/[営業時間]24時間 [取扱]海外発行カード対応、視覚障害者対応 [備考]ご利用可能な金融機関 当店のATM管理はローソン銀行です/240m(徒歩3分) |
| 飲食店 |
大連餃子房 新橋店 中華料理/11時00分~15時00分、17時00分~0時00分/90m(徒歩1分) 日本酒原価酒蔵 新橋二号店/15時00分~23時30分/83m(徒歩1分) |
| カフェ |
カフェドクリエ/日比谷通り内幸町/[営業時間][平 日] 7:00-20:30 [土日祝] (土)9:00-18:30 (日/祝)9:00-18:30/120m(徒歩1分) ベローチェ/新橋店/[営業時間]6:45~22:00 、土7:00~20:00、日・祝店休/110m(徒歩2分) |
| コインパーキング |
三井のリパーク/新橋4丁目第3 [料金] 全日 08:00~00:00 15分/400円 全日 00:00~08:00 60分/100円 [最大料金] 【全日】最大料金入庫当日24時まで4800円 [台数]6 三井のリパーク/新橋1丁目第3 [料金] 全日 08:00~19:00 15分/500円 全日 19:00~08:00 15分/400円 [最大料金] 【全日】8:00~19:00以内 最大料金4000円 【全日】19:00~8:00以内 最大料金2200円 [台数]29 |
周辺地図
キムラヤオオツカビルは港区新橋にある地下1階、地上9階建ての賃貸事務所です。最寄駅はJR線の新橋駅から徒歩4分、都営三田線の内幸町駅から徒歩1分、東京メトロ銀座線の虎ノ門駅から徒歩7分です。1964年4月竣工の基準階面積が28.97坪の鉄骨鉄筋コンクリート造です。設備としては、エレベーターが1基あります。セキュリティは機械警備です。トイレは男女共用です。空調は個別空調です。複数路線利用可能なアクセスの良い港区新橋の賃貸オフィスです。
全フロア情報
更新日:2018年4月23日
| 階 | 面積 | 賃料 | 共益費 | 敷金 | 入居日 | お問合せ | お気に入り | |
|---|---|---|---|---|---|---|---|---|
| 4F |
28.97 坪 95.77 ㎡ |
※現在空室情報はございません |
※現在空室情報は 確認する |
|||||
| 8F |
28.97 坪 95.77 ㎡ |
※現在空室情報はございません |
※現在空室情報は 確認する |
|||||
お問い合わせ
似た条件の物件はこちら
-
日比谷パークビル
東京都港区西新橋2-23-2
坪数:21.98 坪
坪単価:18,004 円(坪)
-
桔梗備前ビル
東京都港区西新橋1-19-6
坪数:20.63 坪
坪単価:16,966 円(坪)
-
麻布台ヒルズ ガーデンプラザB
東京都港区虎ノ門5-9-1
坪数:27.2 坪
坪単価:50,000 円(坪)
-
丸万1号館
東京都港区西新橋1-11-1
坪数:24.44 坪
坪単価:15,000 円(坪)
-
新橋安達ビル
東京都港区新橋5-28-7
坪数:29.34 坪
坪単価:14,500 円(坪)
-
石井ビル
東京都港区新橋3-1-10
坪数:33.46 坪
坪単価:16,000 円(坪)
-
近鉄銀座中央通りビルⅢ
東京都港区新橋1-7-10
坪数:35.1 坪
坪単価:26,001 円(坪)
-
アヴァンセ虎ノ門ビル
東京都港区西新橋2-13-15
坪数:33.22 坪
坪単価:34,618 円(坪)
-
ル・グラシエルBLDG.5
東京都港区新橋5-20-1
坪数:27 坪
坪単価:10,500 円(坪)
-
YAHATA汐留ビル
東京都港区東新橋2-9-7
坪数:18.79 坪
坪単価:20,490 円(坪)