ニキグラスビルディング(物件No:31485186)
ニキグラスビルディングは、港区三田にある貸事務所物件です。最寄り駅は、JR線の田町駅、都営浅草線、京急本線の泉岳寺駅です。1982年竣工で、基準階が60.16坪の賃貸オフィスビルです。床はOAフロアとなっております。空調は個別空調で、トイレは男女別です。機械警備で、エレベーターは1基あります。泉岳寺駅から徒歩3分と、アクセスの良い港区三田の貸事務所です。
-
物件情報
-
設備情報
- トイレ
- 室内男女別
- 床
- フリーアクセス
- 空調
- 個別空調
- セキュリティ
- 有
- 駐車場
- 無
- 会議室
- -
- エレベーター
- 1基
- 天井高
- -
-
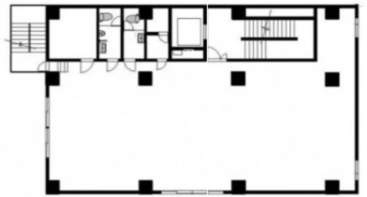
間取り図
-
近隣相場情報
三田3丁目(50~100坪)の相場
18708 円 (坪)
※ビルサク調べ
周辺施設情報
| コンビニ |
デイリーヤマザキ/高輪本店/550m(徒歩7分) セブンイレブン/泉岳寺駅前/150m(徒歩2分) |
|---|---|
| 郵便局/銀行 |
三井住友銀行/ATM トヨタモビリティ東京出張所/[営業時間]平日 9:00~18:00/160m(徒歩2分) ローソン銀行/三田三丁目共同出張所/[営業時間]24時間 [取扱]海外発行カード対応、視覚障害者対応 [備考]ご利用可能な金融機関 当店のATM管理はローソン銀行です/48m(徒歩1分) |
| 飲食店 |
サンライン/11時30分~14時00分、18時00分~23時00分/550m(徒歩8分) 牛角 泉岳寺駅前店/11時30分~14時00分、17時00分~0時00分/170m(徒歩2分) |
| カフェ |
セレイア/[月~金]9:15~19:00 [土](隔週営業)11:30~17:00/500m(徒歩7分) セガフレード/泉岳寺店/[営業時間]平 日 7:00~20:00 土 8:00~17:00 日・祝 休 業 ※ラストオーダーは閉店時間の30分前となっております ※ドリンクのみ閉店時間の15分前までオーダーが可能です [備考]Wi-Fi使用可/160m(徒歩2分) |
| コインパーキング |
タイムズ駐車場/泉岳寺駅前 [料金] [全日]8:00~22:00 20分 400円 [全日]22:00~8:00 60分 100円 [最大料金] [全日]駐車後5時間 最大料金2200円 [台数]3 トラストパーク/三田 [料金] [料金]【時間料金】 30分300円 【長時間サービス料金】 [最大料金] <月~土> (08:00~23:00)最大1700円 <日祝> (08:00~23:00)最大1000円 [台数]41台 |
周辺地図
ニキグラスビルディングは、港区三田にある貸事務所物件です。最寄り駅は、JR線の田町駅、都営浅草線、京急本線の泉岳寺駅です。1982年竣工で、基準階が60.16坪の賃貸オフィスビルです。床はOAフロアとなっております。空調は個別空調で、トイレは男女別です。機械警備で、エレベーターは1基あります。泉岳寺駅から徒歩3分と、アクセスの良い港区三田の貸事務所です。
全フロア情報
更新日:2026年1月30日
| 階 | 面積 | 賃料 | 共益費 | 敷金 | 入居日 | お問合せ | お気に入り | |
|---|---|---|---|---|---|---|---|---|
| 1F |
46.4 坪 153.39 ㎡ |
※現在空室情報はございません |
※現在空室情報は 確認する |
|||||
| 2F |
59.21 坪 195.74 ㎡ |
※現在空室情報はございません |
※現在空室情報は 確認する |
|||||
| 3F |
60.16 坪 198.88 ㎡ |
※現在空室情報はございません |
※現在空室情報は 確認する |
|||||
お問い合わせ
似た条件の物件はこちら
-
トレードピアお台場
東京都港区台場2-3-1
坪数:55.82 坪
坪単価:24,006 円(坪)
-
岡家寿ビル
東京都港区芝浦1-7-14
坪数:62.95 坪
坪単価:13,000 円(坪)
-
第2テーワイビル
東京都港区芝浦2-14-8
坪数:56.8 坪
坪単価:13,000 円(坪)
-
専売ビル
東京都港区芝5-26-30
坪数:70.83 坪
坪単価:21,000 円(坪)
-
MAビル三田Ⅱ
東京都港区芝5-1-13
坪数:59.88 坪
坪単価:18,000 円(坪)
-
オー・アイ・芝浦
東京都港区芝浦3-19-19
坪数:53.42 坪
坪単価:14,000 円(坪)
-
ARZ芝公園
東京都港区芝2-23-1
坪数:45.88 坪
坪単価:28,000 円(坪)
-
サンワード浜松町
東京都港区浜松町2-13-14
坪数:47.84 坪
坪単価:12,000 円(坪)
-
TTD PLAZA
東京都港区三田1-2-18
坪数:69.86 坪
坪単価:14,000 円(坪)
-
+SHIFT SHIBADAIMON
東京都港区芝大門2-1-16
坪数:44.99 坪
坪単価:28,000 円(坪)