神宮前浅間ビル(物件No:31480056)
神宮前浅間ビルは渋谷区神宮前にある地上8階建ての賃貸事務所です。最寄駅は東京メトロ千代田線の明治神宮前〈原宿〉駅から徒歩4分、JR線の渋谷駅から徒歩8分です。1991年8月竣工の基準階面積が49.74坪の鉄骨鉄筋コンクリート造です。設備としては、エレベーターが1基あり、駐車場もあります。トイレは男女別です。空調は個別空調です。耐震設計となっている、複数路線利用可能なアクセスの良い渋谷区神宮前の賃貸オフィスです。
-
物件情報
- 住所
- 東京都渋谷区神宮前6-18-13
- 最寄り駅
-
東京メトロ千代田線
明治神宮前〈原宿〉駅
徒歩4分
JR線 渋谷駅 徒歩8分
- 竣工
- 1991年
- 耐震
- 新耐震基準
- 規模・構造
- 1F - 8F 鉄骨鉄筋コンクリート造
-
設備情報
- トイレ
- 男女別
- 床
- フリーアクセス
- 空調
- 個別空調
- セキュリティ
- -
- 駐車場
- 有
- 会議室
- -
- エレベーター
- 1基
- 天井高
- -
-
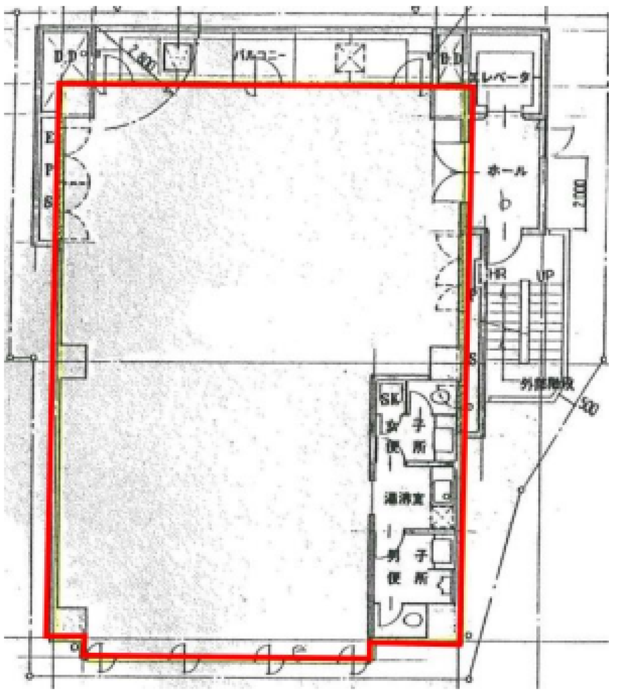
間取り図
-
近隣相場情報
神宮前6丁目(40~50坪)の相場
36364 円 (坪)
※ビルサク調べ
周辺施設情報
| コンビニ |
セブンイレブン/渋谷神南1丁目/300m(徒歩4分) ファミリーマート/表参道中央店/450m(徒歩6分) |
|---|---|
| 郵便局/銀行 |
イーネット/ファミリーマート渋谷キャットストリート2号機/[営業時間]0:00~24:00/250m(徒歩3分) セブン銀行/キュープラザ原宿/[営業時間]8:30~23:00 [備考]1 台/300m(徒歩4分) |
| 飲食店 |
表参道うかい亭/12時00分~14時00分、17時30分~21時00分/600m(徒歩8分) SUZU CAFE‐jingumae- | スズカフェ 神宮前店/91m(徒歩1分) |
| カフェ |
CHOP COFFEE/9時30分~19時30分/550m(徒歩7分) Binowa Cafe/14時00分~20時00分/200m(徒歩2分) |
| コインパーキング |
ユアーズ・パーキング/神宮前第1 [料金] 8:00~22:00 20分/300円 22:00~8:00 60分/100円 [最大料金] 昼時間最大料金3,600円 夜時間最大料金500円 [台数]2台 NPC24H/原宿第2 [料金] 30分/400円 [最大料金] 平日 4時間毎 2200円 土日祝 4時間毎 2700円 全日夜間 1000円(17時~8時) [台数]18台 |
周辺地図
神宮前浅間ビルは渋谷区神宮前にある地上8階建ての賃貸事務所です。最寄駅は東京メトロ千代田線の明治神宮前〈原宿〉駅から徒歩4分、JR線の渋谷駅から徒歩8分です。1991年8月竣工の基準階面積が49.74坪の鉄骨鉄筋コンクリート造です。設備としては、エレベーターが1基あり、駐車場もあります。トイレは男女別です。空調は個別空調です。耐震設計となっている、複数路線利用可能なアクセスの良い渋谷区神宮前の賃貸オフィスです。
全フロア情報
更新日:2023年4月14日
| 階 | 面積 | 賃料 | 共益費 | 敷金 | 入居日 | お問合せ | お気に入り | |
|---|---|---|---|---|---|---|---|---|
| 4F |
49.80 坪 164.60 ㎡ |
※現在空室情報はございません |
※現在空室情報は 確認する |
|||||
| 7F |
49.74 坪 164.43 ㎡ |
※現在空室情報はございません |
※現在空室情報は 確認する |
|||||
お問い合わせ
似た条件の物件はこちら
-
第一暁ビルディング
東京都渋谷区道玄坂1-19-9
坪数:58.6 坪
坪単価:23,038 円(坪)
-
冨貴ビル
東京都渋谷区神宮前6-9-1
坪数:47.25 坪
坪単価:27,937 円(坪)
-
倉島渋谷ビル
東京都渋谷区渋谷2-3-8
坪数:49.26 坪
坪単価:18,000 円(坪)
-
桑原ビル
東京都渋谷区神宮前3-24-3
坪数:42.20 坪
坪単価:16,000 円(坪)
-
VORT外苑前Ⅲ
東京都渋谷区神宮前3-42
坪数:44.55 坪
坪単価:26,000 円(坪)
-
ABC-MART公園通りビル
東京都渋谷区神南1-20-9
坪数:39.22 坪
坪単価:33,000 円(坪)
-
原宿神宮の森
東京都渋谷区神宮前1-14-34
坪数:51.72 坪
坪単価:32,000 円(坪)
-
グリーン・ファンタジアビル
東京都渋谷区神宮前1-11-11
坪数:39.79 坪
坪単価:12,566 円(坪)
-
いちご渋谷道玄坂ビル
東京都渋谷区円山町28-3
坪数:39.26 坪
坪単価:41,500 円(坪)
-
渋谷ふじみビルディング
東京都渋谷区東1-26-26
坪数:40.98 坪
坪単価:30,015 円(坪)