RENEX池袋(物件No:31388199)
RENEX池袋(旧:日宝池袋第一ビル)は、豊島区池袋にある貸事務所物件です。最寄り駅は、JR線、東武東上線、東京メトロ副都心線、東京メトロ丸ノ内線、東京メトロ有楽町線の池袋駅、東京メトロ副都心線、東京メトロ有楽町線の要町駅です。1991年竣工で、基準階が49.85坪の賃貸オフィスビルです。床はOAフロアとなっております。空調は個別空調で、トイレは室内にあります。機械警備で、エレベーターは1基あります。複数路線利用可能な、アクセスの良い豊島区池袋の貸事務所です。
-
物件情報
-
設備情報
- トイレ
- 室外男女別
- 床
- タイルカーペット
- 空調
- 個別空調
- セキュリティ
- 有
- 駐車場
- 無
- 会議室
- -
- エレベーター
- 1基
- 天井高
- -
-
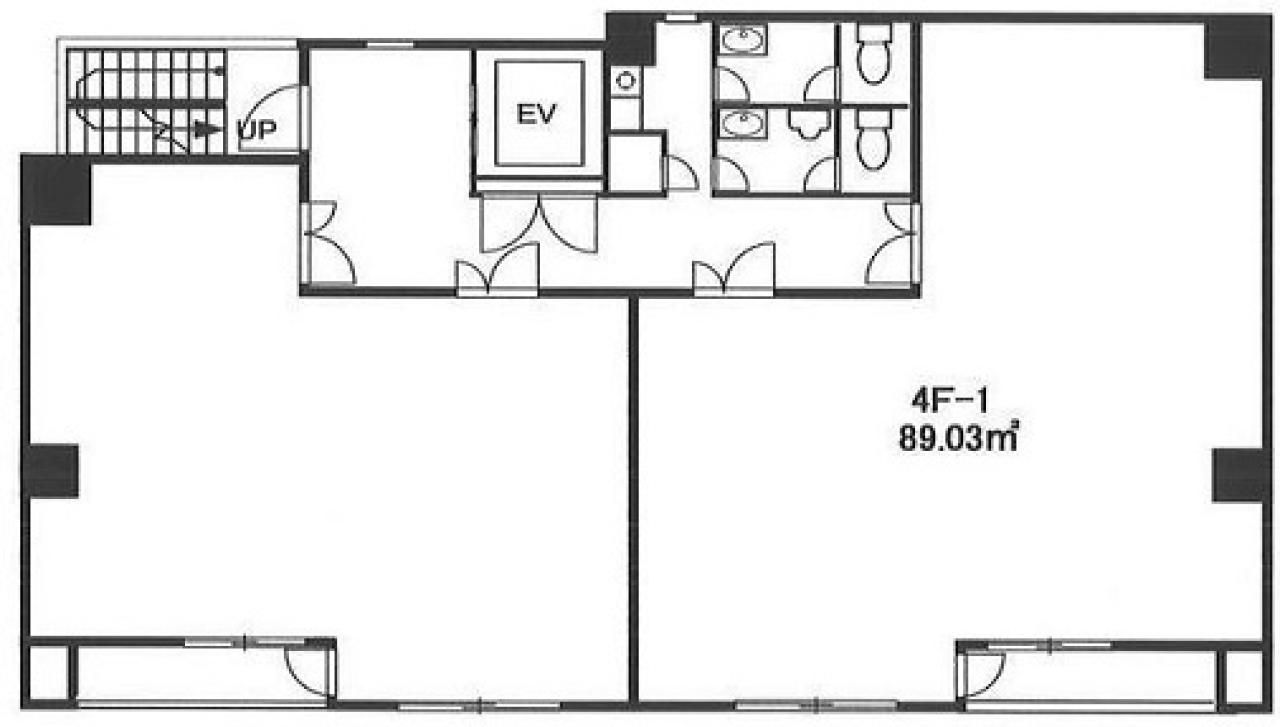
間取り図
-
近隣相場情報
池袋2丁目(20~30坪)の相場
16401 円 (坪)
※ビルサク調べ
周辺施設情報
| コンビニ |
ファミリーマート/西池袋一番街店/400m(徒歩6分) ローソン/Echika池袋/400m(徒歩5分) |
|---|---|
| 郵便局/銀行 |
三井住友銀行/ATM 東京メトロ池袋駅出張所/[営業時間] [ATM]平日 7:00~24:00 土曜 7:00~24:00 日曜 7:00~21:00/500m(徒歩6分) みずほ銀行/ATM 池袋西口駅前出張所/[営業時間]平日 4:00~26:00 土曜日 4:00~22:00 日曜日 8:00~21:00 祝日・振替休日 曜日に準ずる 備考 *月曜日の4:00~7:00はご利用いただけません。 *第1・第4土曜日の3:00~5:00はご利用いただけません。/550m(徒歩7分) |
| 飲食店 |
日本料理 天治/17時00分~21時00分/350m(徒歩5分) 三宝粥店 池袋店/11時00分~23時00分/500m(徒歩7分) |
| カフェ |
ア・ラ・カンパーニュ/東武池袋店(カフェなし)/[営業時間]10:00~20:00/600m(徒歩8分) カフェ 亜麻亜亭 池袋東武ホープセンター/7時30分~22時00分/600m(徒歩8分) |
| コインパーキング |
タイムズ/池袋第17 [料金] [全日]通常料金 0:00~0:00 20分 440円 [最大料金] [全日]最大料金(繰り返し適用)8:00~18:00 最大料金2530円 [全日]18:00~8:00 最大料金1980円 [台数]6台 NPC24H/クイック池袋 [料金] 20分/200円(7時~0時) 30分/100円(0時~7時) [最大料金] 月~金 12時間毎 1900円 土日祝 12時間毎 2100円 [台数]39台 |
周辺地図
RENEX池袋(旧:日宝池袋第一ビル)は、豊島区池袋にある貸事務所物件です。最寄り駅は、JR線、東武東上線、東京メトロ副都心線、東京メトロ丸ノ内線、東京メトロ有楽町線の池袋駅、東京メトロ副都心線、東京メトロ有楽町線の要町駅です。1991年竣工で、基準階が49.85坪の賃貸オフィスビルです。床はOAフロアとなっております。空調は個別空調で、トイレは室内にあります。機械警備で、エレベーターは1基あります。複数路線利用可能な、アクセスの良い豊島区池袋の貸事務所です。
全フロア情報
更新日:2026年3月2日
| 階 | 面積 | 賃料 | 共益費 | 敷金 | 入居日 | お問合せ | お気に入り | |
|---|---|---|---|---|---|---|---|---|
| B1F |
18.76 坪 62.02 ㎡ |
※現在空室情報はございません |
※現在空室情報は 確認する |
|||||
| B1-1F |
20.45 坪 67.6 ㎡ |
※現在空室情報はございません |
※現在空室情報は 確認する |
|||||
| 2F |
49.71 坪 164.33 ㎡ |
※現在空室情報はございません |
※現在空室情報は 確認する |
|||||
|
3F
(301区画) |
15.41 坪 50.94 ㎡ |
308,200 円 20,000 円(坪) |
込 |
1,849,200 円 6 ヶ月 |
2026/04 |
|
|
|
|
3F
(302区画) |
22.6 坪 74.71 ㎡ |
452,000 円 20,000 円(坪) |
込 |
2,712,000 円 6 ヶ月 |
2026/04 |
|
|
|
|
4F
(1区画) |
26.93 坪 89.03 ㎡ |
※現在空室情報はございません |
※現在空室情報は 確認する |
|||||
| 7F |
21.75 坪 71.9 ㎡ |
652,500 円 30,000 円(坪) |
込 |
3,915,000 円 6 ヶ月 |
即日 |
|
|
|
お問い合わせ
似た条件の物件はこちら
-
金井ビル
東京都豊島区南池袋2-29-10
坪数:28.01 坪
坪単価:13,995 円(坪)
-
三仲ビル
東京都豊島区西池袋1-15-8
坪数:30 坪
坪単価:25,000 円(坪)
-
明昌KSビル
東京都豊島区東池袋3-9-9
坪数:21.8 坪
坪単価:13,000 円(坪)
-
池袋オンダ第二ビル
東京都豊島区池袋2-47-6
坪数:21.15 坪
坪単価:17,000 円(坪)
-
TAMA WOODY GATE IKEBUKURO
東京都豊島区東池袋2-62-10
坪数:16.02 坪
坪単価:18,727 円(坪)
-
メゾンサンシャイン
東京都豊島区東池袋3-1-4
坪数:19.27 坪
坪単価:10,379 円(坪)
-
エヌエスティービル
東京都豊島区千早4-41-9
坪数:28.48 坪
坪単価:10,358 円(坪)
-
榮ビル
東京都豊島区南池袋2-10-3
坪数:30 坪
坪単価:13,000 円(坪)
-
COSMY-Ⅱ
東京都豊島区池袋2-39-5
坪数:16.99 坪
坪単価:13,537 円(坪)
-
地得ビル
東京都豊島区西池袋1-29-2
坪数:22 坪
坪単価:140,000 円(坪)