シンコー・ミュージック・プラザビル(物件No:31387039)
シンコー・ミュージック・プラザビルは、千代田区神田小川町にある貸事務所物件です。最寄り駅は、都営新宿線の小川町駅、東京メトロ丸ノ内線の淡路町駅、東京メトロ千代田線の新御茶ノ水駅です。1983年竣工で、基準階が100坪の賃貸オフィスビルです。天高は2400mmで、床はタイルカーペットとなっております。空調は個別空調で、トイレは室外にあり、男女別です。機械警備で、エレベーターは2基あります。駐車場があり、複数路線利用可能な、アクセスの良い千代田区神田小川町の貸事務所です。
-
物件情報
-
設備情報
- トイレ
- 室外男女別
- 床
- タイルカーペット
- 空調
- 個別空調
- セキュリティ
- 有
- 駐車場
- 有
- 会議室
- -
- エレベーター
- 2基
- 天井高
- 2400mm
-
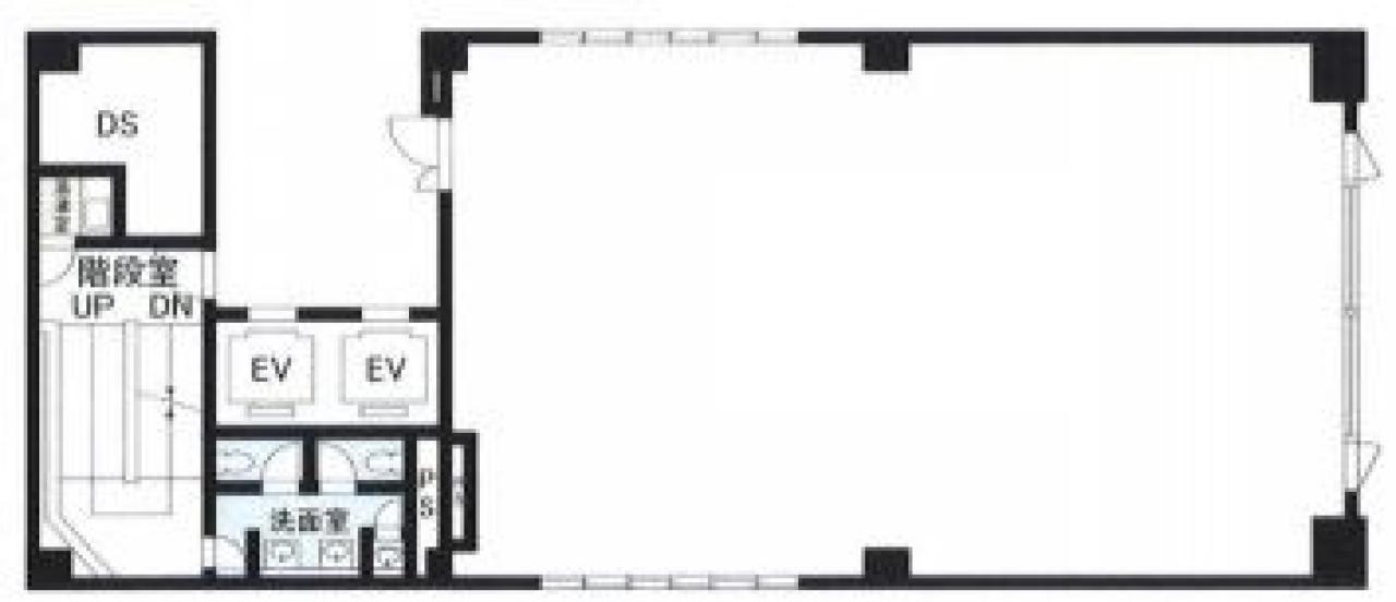
間取り図
-
近隣相場情報
神田小川町2丁目(40~50坪)の相場
14333 円 (坪)
※ビルサク調べ
周辺施設情報
| コンビニ |
ローソン/千代田神田錦町三丁目/300m(徒歩4分) ミニストップ/神田美土代町店/130m(徒歩2分) |
|---|---|
| 郵便局/銀行 |
北日本銀行/東京支店/[営業時間][ATM]平日 8:45~18:00 土 - 日 - 祝 -/85m(徒歩1分) ローソン銀行/メトロコマース 新御茶ノ水駅共同出張所/[営業時間]5:00~24:00 [取扱]海外発行カード対応、視覚障害者対応 [備考]ご利用可能な金融機関 当店のATM管理はローソン銀行です/77m(徒歩1分) |
| 飲食店 |
松屋 神田小川町店/24 時間営業/41m(徒歩1分) 上等カレー 神田小川町店/10時00分~21時30分/37m(徒歩1分) |
| カフェ |
Social Good Roasters/9時00分~18時00分/44m(徒歩1分) あきやま/12:00~15:00/250m(徒歩3分) |
| コインパーキング |
NPD/OPビルパーキング [料金] 500円/60分 [最大料金] 平日 2100円/1日 宿泊料金 1000円 GSパーク/錦町二丁目 [料金] 【月~土】 時間割料金 08:00~22:00 20分 400円 22:00~08:00 30分 100円 【日祝】 時間割料金 08:00~22:00 20分 400円 22:00~08:00 30分 100円 [最大料金] 【月~土】 最大料金 12時間最大 4,000円 【日祝】 最大料金 12時間最大 2,500円 [台数]18台 |
周辺地図
シンコー・ミュージック・プラザビルは、千代田区神田小川町にある貸事務所物件です。最寄り駅は、都営新宿線の小川町駅、東京メトロ丸ノ内線の淡路町駅、東京メトロ千代田線の新御茶ノ水駅です。1983年竣工で、基準階が100坪の賃貸オフィスビルです。天高は2400mmで、床はタイルカーペットとなっております。空調は個別空調で、トイレは室外にあり、男女別です。機械警備で、エレベーターは2基あります。駐車場があり、複数路線利用可能な、アクセスの良い千代田区神田小川町の貸事務所です。
全フロア情報
更新日:2020年9月7日
| 階 | 面積 | 賃料 | 共益費 | 敷金 | 入居日 | お問合せ | お気に入り | |
|---|---|---|---|---|---|---|---|---|
| 2F |
41.10 坪 135.86 ㎡ |
※現在空室情報はございません |
※現在空室情報は 確認する |
|||||
| 3F |
57.60 坪 190.41 ㎡ |
※現在空室情報はございません |
※現在空室情報は 確認する |
|||||
|
3F
(北区画) |
57.60 坪 190.41 ㎡ |
※現在空室情報はございません |
※現在空室情報は 確認する |
|||||
| 7F |
41.10 坪 135.86 ㎡ |
※現在空室情報はございません |
※現在空室情報は 確認する |
|||||
お問い合わせ
似た条件の物件はこちら
-
大手町ゲートビルディング
東京都千代田区内神田1-31-11
坪数:48.55 坪
坪単価:70,031 円(坪)
-
新八光ビル
東京都千代田区内神田3-22-9
坪数:44.17 坪
坪単価:20,000 円(坪)
-
神田松楠ビル
東京都千代田区内神田2-7-10
坪数:33 坪
坪単価:15,000 円(坪)
-
KSKビル
東京都千代田区外神田5-1-15
坪数:39.4 坪
坪単価:16,000 円(坪)
-
ism神田
東京都千代田区神田東松下町48
坪数:31.72 坪
坪単価:16,000 円(坪)
-
藤和内神田ビル
東京都千代田区内神田2-4-4
坪数:44.42 坪
坪単価:13,997 円(坪)
-
楠本第3ビル
東京都千代田区神田錦町3-19
坪数:35 坪
坪単価:14,500 円(坪)
-
石川興産ビル
東京都千代田区外神田4-7-5
坪数:40.2 坪
坪単価:15,500 円(坪)
-
NOVEL WORK AKIHABARA
東京都千代田区神田佐久間町3-37
坪数:33.54 坪
坪単価:30,000 円(坪)
-
ディアマントビル
東京都千代田区神田須田町1-5
坪数:32.52 坪
坪単価:14,000 円(坪)
関連エリアから探す
- 内神田
- 神田淡路町
- 神田小川町
- 神田鍛冶町
- 神田須田町
- 神田駿河台
- 神田多町
- 神田司町
- 神田錦町
- 神田美土代町
- 岩本町
- 鍛冶町
- 神田岩本町
- 神田北乗物町
- 神田紺屋町
- 神田富山町
- 神田西福田町
- 神田東松下町
- 神田東紺屋町
- 神田美倉町
- 東神田
- 神田相生町
- 神田和泉町
- 神田佐久間町
- 神田佐久間河岸
- 神田練塀町
- 神田花岡町
- 神田松永町
- 外神田
- 神田平河町