安和淡路町ビル(物件No:31381019)
安和淡路町ビルは、千代田区神田淡路町にある貸事務所物件です。最寄り駅は、東京メトロ丸ノ内線の淡路町駅、都営新宿線の小川町駅、JR中央・総武線の御茶ノ水駅、東京メトロ千代田線の新御茶ノ水駅、東京メトロ銀座線、JR線の神田駅、JR線の秋葉原駅です。1992年竣工、2015年にリニューアル工事完了で、基準階が19.2坪の賃貸オフィスビルです。空調は個別空調で、トイレは男女別です。機械警備で、エレベーターは1基あります。複数路線利用可能な、アクセスの良い千代田区神田淡路町の貸事務所です。
-
物件情報
-
設備情報
- トイレ
- 室内男女別
- 床
- フローリング
- 空調
- 個別空調
- セキュリティ
- 有
- 駐車場
- -
- 会議室
- -
- エレベーター
- 1基
- 天井高
- -
-
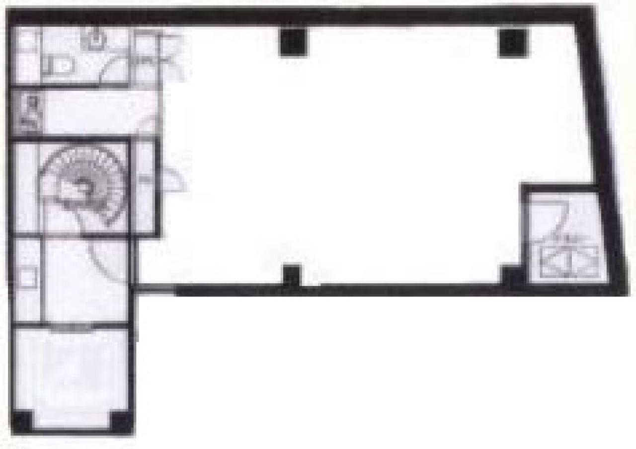
間取り図
-
近隣相場情報
神田淡路町2丁目(20坪以下)の相場
15750 円 (坪)
※ビルサク調べ
周辺施設情報
| コンビニ |
ファミリーマート/薬ヒグチ淡路町店/240m(徒歩3分) ファミリーマート/ファミマ御茶ノ水ソラシティ店/300m(徒歩5分) |
|---|---|
| 郵便局/銀行 |
ゆうちょ/小川町駅前郵便局/[駐車場]なし [取扱]郵便/貯金/保険/ATM/350m(徒歩5分) みずほ銀行/ATM 御茶ノ水ソラシティ出張所/[営業時間] [ATM]平日 5:00~24:30 土曜日 5:00~22:00 日曜日 8:00~21:00 祝日・振替休日 曜日に準ずる 備考 *月曜日の5:00~7:00はご利用いただけません。*設置施設の休業日・休業時間帯は、一般のお客さまはご利用いただけません/350m(徒歩5分) |
| 飲食店 |
はんなり/110m(徒歩1分) 多福楼 神田淡路町店/11時00分~15時00分、17時00分~23時00分/ |
| カフェ |
やなか珈琲店/神田店/[営業時間]平日 10:00~20:00、土日祝 11:00~19:00 ※豆の御注文は営業終了時間の15分前に終了させて頂きます [休業日]定休日なしで営業いたします [備考]イートイン:ドリンクのみ ※緊急事態宣言につき客席を減らして営業/220m(徒歩3分) プロント/IL BAR 御茶ノ水ソラシティ店/[営業時間]平日:カフェ 7:00~17:00 [休業日]土日祝 [備考]93席/分煙(禁煙席/加熱式たばこ専用席)/300m(徒歩5分) |
| コインパーキング |
NPD/三井住友海上駿河台新館ビル [料金] 通常 300円/30分 平日 6:30~22:00 土曜日 6:30~20:00 日祝 休 コインパーク/神田須田町1丁目 [料金] 【月~土】■通常料金【0:00~24:00】20分/300円 【日祝】■通常料金【0:00~24:00】20分/300円 [最大料金] 【月~土】■最大料金【20:00~8:00】500円 【日祝】■最大料金【8:00~20:00】1500円【20:00~8:00】500円 [台数] [車: 2台] |
周辺地図
安和淡路町ビルは、千代田区神田淡路町にある貸事務所物件です。最寄り駅は、東京メトロ丸ノ内線の淡路町駅、都営新宿線の小川町駅、JR中央・総武線の御茶ノ水駅、東京メトロ千代田線の新御茶ノ水駅、東京メトロ銀座線、JR線の神田駅、JR線の秋葉原駅です。1992年竣工、2015年にリニューアル工事完了で、基準階が19.2坪の賃貸オフィスビルです。空調は個別空調で、トイレは男女別です。機械警備で、エレベーターは1基あります。複数路線利用可能な、アクセスの良い千代田区神田淡路町の貸事務所です。
全フロア情報
更新日:2024年10月9日
| 階 | 面積 | 賃料 | 共益費 | 敷金 | 入居日 | お問合せ | お気に入り | |
|---|---|---|---|---|---|---|---|---|
| 1F |
15.99 坪 52.86 ㎡ |
※現在空室情報はございません |
※現在空室情報は 確認する |
|||||
| 2F |
19.20 坪 63.47 ㎡ |
※現在空室情報はございません |
※現在空室情報は 確認する |
|||||
| 3F |
19.2 坪 63.47 ㎡ |
※現在空室情報はございません |
※現在空室情報は 確認する |
|||||
| 7F |
18.24 坪 60.30 ㎡ |
※現在空室情報はございません |
※現在空室情報は 確認する |
|||||
| 7-8F |
37.44 坪 123.77 ㎡ |
※現在空室情報はございません |
※現在空室情報は 確認する |
|||||
| 8F |
19.20 坪 63.47 ㎡ |
※現在空室情報はございません |
※現在空室情報は 確認する |
|||||
お問い合わせ
似た条件の物件はこちら
-
KSYビル
東京都千代田区神田須田町2-15
坪数:22.12 坪
坪単価:13,562 円(坪)
-
KM千代田ビル
東京都千代田区岩本町1-12-1
坪数:20.02 坪
坪単価:12,996 円(坪)
-
アーバンスクエア神田ビル
東京都千代田区神田須田町1-18
坪数:14.18 坪
坪単価:17,000 円(坪)
-
TOKENビル
東京都千代田区外神田5-2-4
坪数:21.37 坪
坪単価:11,500 円(坪)
-
第二櫻井ビル
東京都千代田区神田佐久間町3-5
坪数:17.24 坪
坪単価:11,996 円(坪)
-
新東ビル
東京都千代田区内神田2-8-3
坪数:21.5 坪
坪単価:11,000 円(坪)
-
松本ビル
東京都千代田区外神田6-2-8
坪数:20.6 坪
坪単価:10,997 円(坪)
-
野沢ビル
東京都千代田区外神田6-7-4
坪数:14 坪
坪単価:12,143 円(坪)
-
藤和内神田ビル
東京都千代田区内神田2-4-4
坪数:18.49 坪
坪単価:16,500 円(坪)
-
昭和ビル
東京都千代田区神田和泉町1-2-5
坪数:16.5 坪
坪単価:11,000 円(坪)
関連エリアから探す
- 内神田
- 神田淡路町
- 神田小川町
- 神田鍛冶町
- 神田須田町
- 神田駿河台
- 神田多町
- 神田司町
- 神田錦町
- 神田美土代町
- 岩本町
- 鍛冶町
- 神田岩本町
- 神田北乗物町
- 神田紺屋町
- 神田富山町
- 神田西福田町
- 神田東松下町
- 神田東紺屋町
- 神田美倉町
- 東神田
- 神田相生町
- 神田和泉町
- 神田佐久間町
- 神田佐久間河岸
- 神田練塀町
- 神田花岡町
- 神田松永町
- 外神田
- 神田平河町