A-PLACE品川東(物件No:31280133)
A-PLACE品川東(旧:DBC品川東急ビル)は港区港南にある地上8階建ての賃貸事務所です。最寄駅はJR線の品川駅から徒歩7分、京急本線の品川駅から徒歩10分です。1985年竣工の基準階面積が713.17坪の鉄骨鉄筋コンクリート造です。設備としては、エレベーターが5基あります。セキュリティは機械警備です。トイレは室外男女別です。空調は個別空調です。床仕様はフリーアクセスです。天高は2800mmです。耐震設計となっている、複数駅利用可能なアクセスの良い港区港南の賃貸オフィスです。
| 階 | 面積 | 賃料 | 共益費 | 敷金 | 入居日 | お問合せ | お気に入り |
|---|---|---|---|---|---|---|---|
|
本館5F
(B2区画) |
92.15 坪 304.63 ㎡ |
相談 |
無 |
12ヶ月 |
2026/05/01 |
|
|
| 階 | 面積 | 賃料 | 共益費 | 敷金 | 入居日 | お問合せ | お気に入り |
|---|---|---|---|---|---|---|---|
|
本館5F
(B2区画) |
92.15 坪 304.63 ㎡ |
相談 |
無 |
12ヶ月 |
2026/05/01 |
|
|
-
物件情報
-
設備情報
- トイレ
- 室外男女別
- 床
- フリーアクセス
- 空調
- 個別空調
- セキュリティ
- 有
- 駐車場
- -
- 会議室
- -
- エレベーター
- 5基
- 天井高
- -
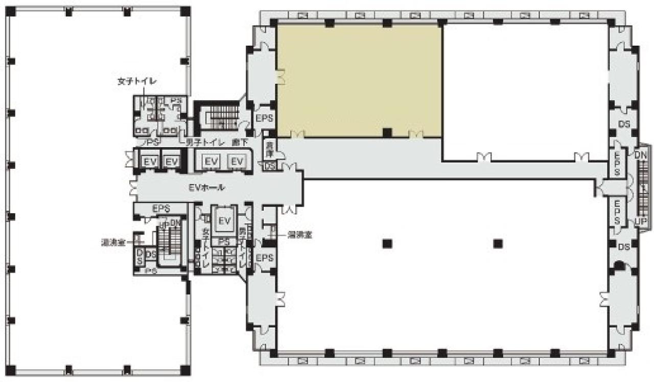
-
間取り図
-
近隣相場情報
港南1丁目(50~100坪)の相場
17498 円 (坪)
※ビルサク調べ
周辺施設情報
| コンビニ |
ローソン/港南一丁目/160m(徒歩2分) ファミリーマート/港南一丁目店/10m(徒歩1分) |
|---|---|
| 郵便局/銀行 |
京葉銀行/品川支店【事業性融資専門店舗】/[営業時間]平日 9:00~15:00 [ATM]平日 9:00~17:00/160m(徒歩2分) 三井住友銀行/ATM 品川シーズンテラス出張所/[営業時間]平日 7:00~23:00 土曜 7:00~23:00 日曜 7:00~21:00/350m(徒歩5分) |
| 飲食店 |
喜多方ラーメン 坂内 品川シーズンテラス店/11時00分~21時00分/400m(徒歩5分) イプリミ品川/11時00分~14時30分、17時00分~22時00分/120m(徒歩1分) |
| カフェ |
WIRED CAFE/品川/[営業時間]09:00 - 23:00 月-金 11:00 - 23:00 土・祝 11:00 - 22:00 日 LUNCH TIME 11:00 - 15:00 LAST ORDER FOOD 22:00 DRINK 22:30 金~金 FOOD 22:00 DRINK 22:30 土・祝 FOOD 21:15 DRINK 21:30 日/270m(徒歩3分) プロント/品川店/[営業時間]平日:カフェ 7:00~17:30 バー 17:30~23:00 土曜:カフェ 9:30~17:30 [休業日]日祝 [備考]76席/禁煙席/加熱式専用席/喫煙ブース/290m(徒歩4分) |
| コインパーキング |
三井のリパーク/コーシャハイム港南三丁目 [料金] 全日 08:00~20:00 15分/200円 全日 20:00~08:00 60分/100円 [最大料金] 【全日】20:00~8:00以内 最大料金600円 【全日】最大料金入庫後24時間以内2500円 [台数]7 タイムズ駐車場/港区立品川駅港南口公共駐車場 [料金] [料金][全日]通常料金 / 08:00-22:00 30分 250円 [全日]通常料金 / 22:00-08:00 30分 100円 [最大料金] 駐車後24時間 最大料金2400円 [台数]135 |
周辺地図
A-PLACE品川東(旧:DBC品川東急ビル)は港区港南にある地上8階建ての賃貸事務所です。最寄駅はJR線の品川駅から徒歩7分、京急本線の品川駅から徒歩10分です。1985年竣工の基準階面積が713.17坪の鉄骨鉄筋コンクリート造です。設備としては、エレベーターが5基あります。セキュリティは機械警備です。トイレは室外男女別です。空調は個別空調です。床仕様はフリーアクセスです。天高は2800mmです。耐震設計となっている、複数駅利用可能なアクセスの良い港区港南の賃貸オフィスです。
全フロア情報
更新日:2025年12月15日
| 階 | 面積 | 賃料 | 共益費 | 敷金 | 入居日 | お問合せ | お気に入り | |
|---|---|---|---|---|---|---|---|---|
| 別館1F |
117.33 坪 387.87 ㎡ |
※現在空室情報はございません |
※現在空室情報は 確認する |
|||||
| 別館4F |
237.52 坪 785.19 ㎡ |
※現在空室情報はございません |
※現在空室情報は 確認する |
|||||
| 別館5F |
237.52 坪 785.19 ㎡ |
※現在空室情報はございません |
※現在空室情報は 確認する |
|||||
| 別館6F |
237.52 坪 785.19 ㎡ |
※現在空室情報はございません |
※現在空室情報は 確認する |
|||||
| 別館8F |
97.27 坪 321.55 ㎡ |
※現在空室情報はございません |
※現在空室情報は 確認する |
|||||
| 本館3F |
449.56 坪 1486.15 ㎡ |
※現在空室情報はございません |
※現在空室情報は 確認する |
|||||
| 本館4F |
449.56 坪 1486.15 ㎡ |
※現在空室情報はございません |
※現在空室情報は 確認する |
|||||
| 本館5F |
449.56 坪 1486.15 ㎡ |
※現在空室情報はございません |
※現在空室情報は 確認する |
|||||
|
本館5F
(B区画) |
212.64 坪 702.94 ㎡ |
※現在空室情報はございません |
※現在空室情報は 確認する |
|||||
|
本館5F
(B1区画) |
77.57 坪 256.43 ㎡ |
※現在空室情報はございません |
※現在空室情報は 確認する |
|||||
|
本館5F
(B2区画) |
92.15 坪 304.63 ㎡ |
相談 |
無 |
12ヶ月 |
2026/05/01 |
|
|
|
| 本館6F |
449.56 坪 1486.15 ㎡ |
※現在空室情報はございません |
※現在空室情報は 確認する |
|||||