いろいろ聞いてみる

港南の賃貸オフィス

A-PLACE品川東(物件No:31280133)

A-PLACE品川東(旧:DBC品川東急ビル)は港区港南にある地上8階建ての賃貸事務所です。最寄駅はJR線の品川駅から徒歩7分、京急本線の品川駅から徒歩10分です。1985年竣工の基準階面積が713.17坪の鉄骨鉄筋コンクリート造です。設備としては、エレベーターが5基あります。セキュリティは機械警備です。トイレは室外男女別です。空調は個別空調です。床仕様はフリーアクセスです。天高は2800mmです。耐震設計となっている、複数駅利用可能なアクセスの良い港区港南の賃貸オフィスです。

面積 賃料 共益費 敷金 入居日 お問合せ お気に入り
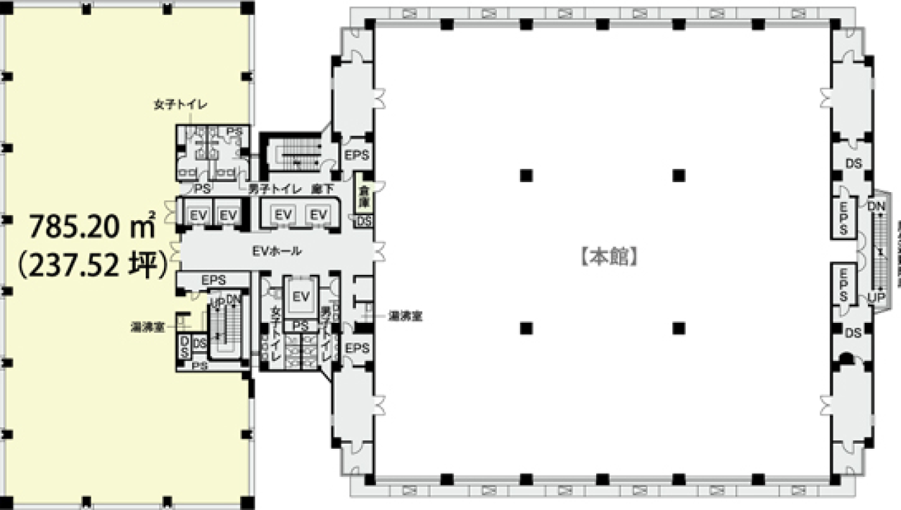
別館4F

237.52 坪

785.19 ㎡

※現在空室情報はございません

※現在空室情報は
ございません

最新情報を
確認する
  • A-PLACE品川東
  • A-PLACE品川東
  • A-PLACE品川東
  • A-PLACE品川東
面積 賃料 共益費 敷金 入居日 お問合せ お気に入り
別館4F

237.52 坪

785.19 ㎡

※現在空室情報はございません

※現在空室情報は
ございません

最新情報を
確認する

周辺施設情報

コンビニ

ローソン/港南一丁目/160m(徒歩2分)

ファミリーマート/港南一丁目店/10m(徒歩1分)

郵便局/銀行

京葉銀行/品川支店【事業性融資専門店舗】/[営業時間]平日 9:00~15:00 [ATM]平日 9:00~17:00/160m(徒歩2分)

三井住友銀行/ATM 品川シーズンテラス出張所/[営業時間]平日 7:00~23:00 土曜 7:00~23:00 日曜 7:00~21:00/350m(徒歩5分)

飲食店

喜多方ラーメン 坂内 品川シーズンテラス店/11時00分~21時00分/400m(徒歩5分)

イプリミ品川/11時00分~14時30分、17時00分~22時00分/120m(徒歩1分)

カフェ

WIRED CAFE/品川/[営業時間]09:00 - 23:00 月-金 11:00 - 23:00 土・祝 11:00 - 22:00 日 LUNCH TIME 11:00 - 15:00 LAST ORDER FOOD 22:00 DRINK 22:30 金~金 FOOD 22:00 DRINK 22:30 土・祝 FOOD 21:15 DRINK 21:30 日/270m(徒歩3分)

プロント/品川店/[営業時間]平日:カフェ 7:00~17:30 バー 17:30~23:00 土曜:カフェ 9:30~17:30 [休業日]日祝 [備考]76席/禁煙席/加熱式専用席/喫煙ブース/290m(徒歩4分)

コインパーキング

三井のリパーク/コーシャハイム港南三丁目

[料金]

全日 08:00~20:00 15分/200円

全日 20:00~08:00 60分/100円

[最大料金]

【全日】20:00~8:00以内 最大料金600円

【全日】最大料金入庫後24時間以内2500円

[台数]7

タイムズ駐車場/港区立品川駅港南口公共駐車場

[料金]

[料金][全日]通常料金 / 08:00-22:00 30分 250円

[全日]通常料金 / 22:00-08:00 30分 100円

[最大料金]

駐車後24時間 最大料金2400円

[台数]135

周辺地図

A-PLACE品川東(旧:DBC品川東急ビル)は港区港南にある地上8階建ての賃貸事務所です。最寄駅はJR線の品川駅から徒歩7分、京急本線の品川駅から徒歩10分です。1985年竣工の基準階面積が713.17坪の鉄骨鉄筋コンクリート造です。設備としては、エレベーターが5基あります。セキュリティは機械警備です。トイレは室外男女別です。空調は個別空調です。床仕様はフリーアクセスです。天高は2800mmです。耐震設計となっている、複数駅利用可能なアクセスの良い港区港南の賃貸オフィスです。

全フロア情報

更新日:2026年1月13日

面積 賃料 共益費 敷金 入居日 お問合せ お気に入り
別館1F

117.33 坪

387.87 ㎡

※現在空室情報はございません

※現在空室情報は
ございません

最新情報を
確認する
別館4F

237.52 坪

785.19 ㎡

※現在空室情報はございません

※現在空室情報は
ございません

最新情報を
確認する
別館5F

237.52 坪

785.19 ㎡

※現在空室情報はございません

※現在空室情報は
ございません

最新情報を
確認する
別館6F

237.52 坪

785.19 ㎡

※現在空室情報はございません

※現在空室情報は
ございません

最新情報を
確認する
別館8F

97.27 坪

321.55 ㎡

※現在空室情報はございません

※現在空室情報は
ございません

最新情報を
確認する
本館3F

449.56 坪

1486.15 ㎡

※現在空室情報はございません

※現在空室情報は
ございません

最新情報を
確認する
本館4F

449.56 坪

1486.15 ㎡

※現在空室情報はございません

※現在空室情報は
ございません

最新情報を
確認する
本館5F

449.56 坪

1486.15 ㎡

※現在空室情報はございません

※現在空室情報は
ございません

最新情報を
確認する
本館5F

(B区画)

212.64 坪

702.94 ㎡

※現在空室情報はございません

※現在空室情報は
ございません

最新情報を
確認する
本館5F

(B1区画)

77.57 坪

256.43 ㎡

※現在空室情報はございません

※現在空室情報は
ございません

最新情報を
確認する
本館5F

(B2区画)

92.15 坪

304.63 ㎡

相談

12ヶ月

2026/05/01 お問い合わせ お気に入り
本館6F

449.56 坪

1486.15 ㎡

※現在空室情報はございません

※現在空室情報は
ございません

最新情報を
確認する

お問い合わせ

必須
必須
必須
必須
必須

関連エリアから探す

駅から探す

お問い合わせ

物件に関してのお問い合わせ

「失敗しないオフィス移転サポート」物件探しから移転までスムーズで担当者様がとにかく楽になるサービスです。

050-7587-0049平日 9:00~18:00

メールでお問い合わせ

フリーワード検索