FORECAST桜橋(物件No:31280122)
FORECAST桜橋は、中央区八丁堀にある貸事務所物件です。最寄り駅は東京メトロ日比谷線、JR八丁堀駅、東京メトロ銀座線京橋駅、東京メトロ有楽町線新富町駅、都営浅草線宝町駅となっています。1985年竣工で、基準階が313.09坪の賃貸オフィスビルです。床はOAフロアで、天井の高さは2530mm。トイレは男女別で、空調は個別空調です。エレベーターは2基あり、駐車場が利用可能です。複数路線利用可能で、交通アクセスの良い、中央区八丁堀の貸事務所です。
- 
                    
物件情報
 - 
                        
設備情報
- トイレ
 - 男女別
 - 床
 - フリーアクセス
 - 空調
 - 個別空調
 - セキュリティ
 - 有
 - 駐車場
 - 無
 - 会議室
 - -
 - エレベーター
 - 2基
 - 天井高
 - 2600mm
 
 - 
                        
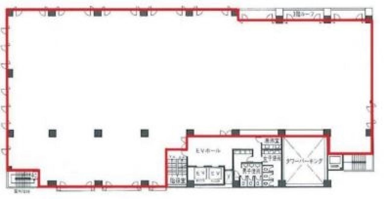
間取り図
 - 
                    
近隣相場情報
八丁堀4丁目(100坪以上)の相場
25740 円 (坪)
※ビルサク調べ 
周辺施設情報
| コンビニ | 
                                                                                                                     セブンイレブン/中央区八丁堀4丁目/120m(徒歩1分) ファミリーマート/八丁堀四丁目店/240m(徒歩2分)  | 
                
|---|---|
| 郵便局/銀行 | 
                                                                                                                     イーネット/ファミリーマート八丁堀四丁目/[営業時間]0:00~24:00/240m(徒歩2分) セブン銀行/中央区八丁堀4丁目店/[営業時間]24時間営業/120m(徒歩1分)  | 
                
| 飲食店 | 
                                                                                                                     四万十/不定休/210m(徒歩2分) 鳥好/不定休/200m(徒歩2分)  | 
                
| カフェ | 
                                                                                                                     コロラド/八丁堀店/■通常営業時間 平日 8:00~21:00 土曜 - 日祝 -/270m(徒歩3分) プロント/八丁堀店/[営業時間]平日:カフェ 7:00~17:30 バー 17:30~22:00/300m(徒歩4分)  | 
                
| コインパーキング | 
                                                                                     タイムズ/八丁堀駅前第3 [料金] [月~土]通常料金 / 0:00~0:00 15分 440円 [日・祝]通常料金 / 0:00~0:00 15分 440円 [最大料金] [月~土]22:00~8:00 最大料金550円 [日・祝]8:00~22:00 最大料金990円 22:00~8:00 最大料金550円 [台数]2 タイムズ/八丁堀4丁目第2 [料金] [月~土]通常料金 / 0:00~0:00 20分 330円 [日・祝]通常料金 / 0:00~0:00 20分 330円 [最大料金] [月~土]22:00~8:00 最大料金550円 [日・祝]8:00~22:00 最大料金990円 22:00~8:00 最大料金550円 [台数]1  | 
                
周辺地図
FORECAST桜橋は、中央区八丁堀にある貸事務所物件です。最寄り駅は東京メトロ日比谷線、JR八丁堀駅、東京メトロ銀座線京橋駅、東京メトロ有楽町線新富町駅、都営浅草線宝町駅となっています。1985年竣工で、基準階が313.09坪の賃貸オフィスビルです。床はOAフロアで、天井の高さは2530mm。トイレは男女別で、空調は個別空調です。エレベーターは2基あり、駐車場が利用可能です。複数路線利用可能で、交通アクセスの良い、中央区八丁堀の貸事務所です。
全フロア情報
更新日:2025年10月6日
| 階 | 面積 | 賃料 | 共益費 | 敷金 | 入居日 | お問合せ | お気に入り | |
|---|---|---|---|---|---|---|---|---|
| 1F | 
             202.95 坪 670.91 ㎡  | 
                    相談  | 
            相談  | 
            12ヶ月  | 
            2026/01/01 | 
                 | 
            
    
         | 
            |
| 2F | 
             313.09 坪 1035.01 ㎡  | 
                    ※現在空室情報はございません | 
                 ※現在空室情報は 確認する  | 
            |||||
| 4F | 
             305.05 坪 1008.43 ㎡  | 
                    ※現在空室情報はございません | 
                 ※現在空室情報は 確認する  | 
            |||||
| 
            
                5F
                                     (1区画)  | 
        
             171.11 坪 565.65 ㎡  | 
                    ※現在空室情報はございません | 
                 ※現在空室情報は 確認する  | 
            |||||
| 
            
                5F
                                     (2区画)  | 
        
             118.15 坪 390.58 ㎡  | 
                    ※現在空室情報はございません | 
                 ※現在空室情報は 確認する  | 
            |||||
| 
            
                7F
                                     (701区画)  | 
        
             107.1 坪 354.05 ㎡  | 
                    相談  | 
            相談  | 
            12ヶ月  | 
            2026/01/01 | 
                 | 
            
    
         | 
            |
| 
            
                7F
                                     (702区画)  | 
        
             174.4 坪 576.53 ㎡  | 
                    相談  | 
            相談  | 
            12ヶ月  | 
            2026/01/01 | 
                 | 
            
    
         | 
            |