淡路町MHビル(物件No:31187171)
淡路町MHビルは千代田区神田淡路町にある地下1階、地上7階建ての賃貸事務所です。最寄駅は東京メトロ丸ノ内線の淡路町駅から徒歩2分、都営新宿線の小川町駅から徒歩2分、JR中央・総武線の御茶ノ水駅から徒歩5分、東京メトロ千代田線の新御茶ノ水駅から徒歩3分です。1994年4月竣工の鉄骨鉄筋コンクリート造です。設備としては、エレベーターが1基あります。トイレは男女別です。空調は個別空調です。床仕様はフリーアクセスです。耐震設計となっている、複数路線利用可能なアクセスの良い千代田区神田淡路町の賃貸オフィスです。
-
物件情報
-
設備情報
- トイレ
- 室外男女別
- 床
- フリーアクセス
- 空調
- 個別空調
- セキュリティ
- 有
- 駐車場
- 無
- 会議室
- -
- エレベーター
- 1基
- 天井高
- 2600mm
-
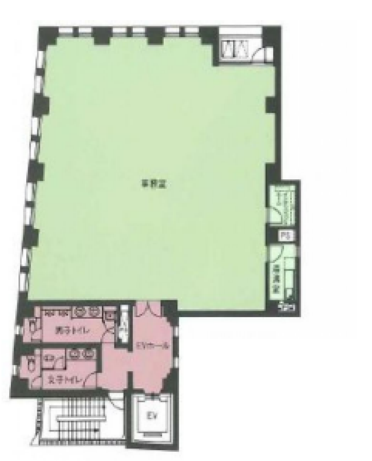
間取り図
-
近隣相場情報
神田淡路町2丁目(50~100坪)の相場
21000 円 (坪)
※ビルサク調べ
周辺施設情報
| コンビニ |
セブンイレブン/神田万世橋南/400m(徒歩5分) ファミリーマート/都営小川町店/240m(徒歩3分) |
|---|---|
| 郵便局/銀行 |
ゆうちょ/ATM 本店 ファミリーマート神田淡路町二丁目店内出張所/[駐車場]なし [取扱]ATM/カードATM [備考]海外発行カードによる現金引き出しサービスにおいて、16言語でご利用いただけます。/34m(徒歩1分) 西武信用金庫/神田支店/350m(徒歩4分) |
| 飲食店 |
しょうちゃん/37m(徒歩1分) はちまる 淡路町店/17時00分~0時00分/41m(徒歩1分) |
| カフェ |
タリーズ/淡路町靖国通り店/[営業時間]平日:7:00~21:00 土:10:00~20:00 日祝:10:00~19:00 [備考]Tully's Wi-Fi、禁煙/130m(徒歩2分) 上島珈琲店/御茶ノ水ワテラス店/[営業時間]平日 7:00~20:00 / 土日祝 8:00~19:00 ※現在は営業時間を短縮させていただいております [休業日]なし [取扱]モーニングメニュー ランチメニュー カフェインレスコーヒー テイクアウト可 [備考]51席(禁煙:38席、加熱式たばこ専用:13席)※電源利用可能席あり/260m(徒歩3分) |
| コインパーキング |
NPD/JR神田万世橋ビル駐車場 [料金] 通常 300円/30分 [最大料金] 最大 1800円 宿泊料金 1800円 電気自動車充電パレット 350円/30分 タイムズ/神田淡路町第3 [料金] [全日]通常料金 / 8:00~22:00 15分 440円 [全日]通常料金 / 22:00~8:00 60分 110円 [台数]2 |
周辺地図
淡路町MHビルは千代田区神田淡路町にある地下1階、地上7階建ての賃貸事務所です。最寄駅は東京メトロ丸ノ内線の淡路町駅から徒歩2分、都営新宿線の小川町駅から徒歩2分、JR中央・総武線の御茶ノ水駅から徒歩5分、東京メトロ千代田線の新御茶ノ水駅から徒歩3分です。1994年4月竣工の鉄骨鉄筋コンクリート造です。設備としては、エレベーターが1基あります。トイレは男女別です。空調は個別空調です。床仕様はフリーアクセスです。耐震設計となっている、複数路線利用可能なアクセスの良い千代田区神田淡路町の賃貸オフィスです。
全フロア情報
更新日:2024年4月24日
| 階 | 面積 | 賃料 | 共益費 | 敷金 | 入居日 | お問合せ | お気に入り | |
|---|---|---|---|---|---|---|---|---|
| 3F |
69.37 坪 229.32 ㎡ |
※現在空室情報はございません |
※現在空室情報は 確認する |
|||||
| 4F |
69.37 坪 229.32 ㎡ |
※現在空室情報はございません |
※現在空室情報は 確認する |
|||||
| 6F |
53.77 坪 177.74 ㎡ |
※現在空室情報はございません |
※現在空室情報は 確認する |
|||||
| 7F |
38.75 坪 128.10 ㎡ |
※現在空室情報はございません |
※現在空室情報は 確認する |
|||||
お問い合わせ
似た条件の物件はこちら
-
M&Cビル
東京都千代田区神田小川町2-3-13
坪数:62.21 坪
坪単価:14,500 円(坪)
-
ACN神田司町ビル
東京都千代田区神田司町2-7-1
坪数:59.04 坪
坪単価:30,000 円(坪)
-
神田大木ビル
東京都千代田区神田鍛冶町3-3-3
坪数:76.74 坪
坪単価:16,250 円(坪)
-
村田ビルディング
東京都千代田区神田駿河台2-5
坪数:66.61 坪
坪単価:20,997 円(坪)
-
冨士エレベータービル
東京都千代田区内神田3-4-6
坪数:61.85 坪
坪単価:16,000 円(坪)
-
内神田東誠ビル
東京都千代田区内神田1-18-12
坪数:55.85 坪
坪単価:18,000 円(坪)
-
THE PORTAL IWAMOTOCHO
東京都千代田区岩本町2-8-8
坪数:69.66 坪
坪単価:24,000 円(坪)
-
第5東ビル
東京都千代田区神田佐久間町3-38
坪数:54 坪
坪単価:10,000 円(坪)
-
菱和ビルディング
東京都千代田区神田駿河台3-6-1
坪数:65.78 坪
坪単価:20,000 円(坪)
-
山崎共同ビル
東京都千代田区岩本町1-12-3
坪数:63.99 坪
坪単価:10,002 円(坪)
関連エリアから探す
- 内神田
- 神田淡路町
- 神田小川町
- 神田鍛冶町
- 神田須田町
- 神田駿河台
- 神田多町
- 神田司町
- 神田錦町
- 神田美土代町
- 岩本町
- 鍛冶町
- 神田岩本町
- 神田北乗物町
- 神田紺屋町
- 神田富山町
- 神田西福田町
- 神田東松下町
- 神田東紺屋町
- 神田美倉町
- 東神田
- 神田相生町
- 神田和泉町
- 神田佐久間町
- 神田佐久間河岸
- 神田練塀町
- 神田花岡町
- 神田松永町
- 外神田
- 神田平河町