第2キンズメンビル(物件No:31186198)
第2キンズメンビルは豊島区東池袋にある地下1階、地上8階建ての賃貸事務所です。最寄駅は東京メトロ有楽町線の東池袋駅から徒歩3分、JR線の池袋駅から徒歩10分、東京メトロ丸ノ内線の池袋駅から徒歩10分、東武東上線の池袋駅から徒歩10分、西武池袋線の池袋駅から徒歩10分、東京メトロ副都心線の池袋駅から徒歩10分です。1993年3月竣工の基準階面積が89.76坪の鉄骨鉄筋コンクリート造です。設備としては、エレベーターが2基あり、駐車場もあります。セキュリティは機械警備です。トイレは男女別です。空調は個別空調です。耐震設計となっている、複数路線利用可能なアクセスの良い豊島区東池袋の賃貸オフィスです。
| 階 | 面積 | 賃料 | 共益費 | 敷金 | 入居日 | お問合せ | お気に入り | |
|---|---|---|---|---|---|---|---|---|
|
2F
(201区画) |
39.06 坪 129.12 ㎡ |
※現在空室情報はございません |
※現在空室情報は 確認する |
|||||
| 階 | 面積 | 賃料 | 共益費 | 敷金 | 入居日 | お問合せ | お気に入り | |
|---|---|---|---|---|---|---|---|---|
|
2F
(201区画) |
39.06 坪 129.12 ㎡ |
※現在空室情報はございません |
※現在空室情報は 確認する |
|||||
-
物件情報
-
設備情報
- トイレ
- 男女別
- 床
- フリーアクセス
- 空調
- 個別空調
- セキュリティ
- 有
- 駐車場
- 有
- 会議室
- -
- エレベーター
- 2基
- 天井高
- 2550mm
-
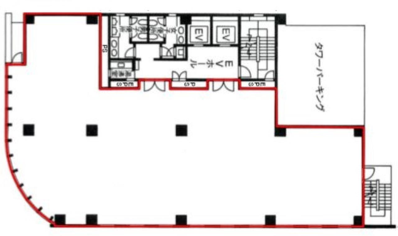
間取り図
-
近隣相場情報
東池袋4丁目(30~40坪)の相場
23833 円 (坪)
※ビルサク調べ
周辺施設情報
| コンビニ |
まいばすけっと/東池袋4丁目店/200m(徒歩3分) ファミリーマート/サンシャイン西店/300m(徒歩4分) |
|---|---|
| 郵便局/銀行 |
徳島大正銀行/池袋支店/[営業時間] [窓口]平日:9:00~15:00 ※昼休業時間 11:30~12:30 [ATM]設置しておりません/200m(徒歩3分) イオン銀行/ATM まいばすけっと東池袋4丁目店出張所/[営業時間]7:00~24:00/200m(徒歩3分) |
| 飲食店 |
カフェ・ベローチェ 東池袋店/6時45分~22時00分/ 鮨処 銀座福助 サンシャイン60店/11時00分~15時00分、17時00分~22時00分/280m(徒歩4分) |
| カフェ |
カフェラミル/サンシャインシティ店/[営業時間]平日 10:00~21:00 土曜 10:00~21:00 日祝 10:00~21:00 [備考]総席数:67(禁煙席:55 喫煙席:12)/150m(徒歩2分) タリーズ/池袋サンシャインシティアルパ店/[営業時間]月曜日 7:30~22:00 火曜日 7:30~22:00 水曜日 7:30~22:00 木曜日 7:30~22:00 金曜日 7:30~22:00 土曜日 7:30~22:00 日曜日 7:30~22:00 [備考]Tully's Wi-Fi/禁煙/ChargeSpot/200m(徒歩2分) |
| コインパーキング |
エイブルパーキング/第3キンズメンビル コインパーク/東池袋4丁目第2 [料金] 【全日】■通常料金【0:00~24:00】15分200円 [最大料金] 【全日】■最大料金【駐車後3時間以内(1回限り)】1600円【18:00~8:00】800円 [台数] [車: 2台] |
周辺地図
第2キンズメンビルは豊島区東池袋にある地下1階、地上8階建ての賃貸事務所です。最寄駅は東京メトロ有楽町線の東池袋駅から徒歩3分、JR線の池袋駅から徒歩10分、東京メトロ丸ノ内線の池袋駅から徒歩10分、東武東上線の池袋駅から徒歩10分、西武池袋線の池袋駅から徒歩10分、東京メトロ副都心線の池袋駅から徒歩10分です。1993年3月竣工の基準階面積が89.76坪の鉄骨鉄筋コンクリート造です。設備としては、エレベーターが2基あり、駐車場もあります。セキュリティは機械警備です。トイレは男女別です。空調は個別空調です。耐震設計となっている、複数路線利用可能なアクセスの良い豊島区東池袋の賃貸オフィスです。
全フロア情報
更新日:2026年1月26日
| 階 | 面積 | 賃料 | 共益費 | 敷金 | 入居日 | お問合せ | お気に入り | |
|---|---|---|---|---|---|---|---|---|
| 2F |
89.76 坪 296.73 ㎡ |
※現在空室情報はございません |
※現在空室情報は 確認する |
|||||
|
2F
(201区画) |
39.06 坪 129.12 ㎡ |
※現在空室情報はございません |
※現在空室情報は 確認する |
|||||
|
2F
(202区画) |
50.7 坪 167.6 ㎡ |
※現在空室情報はございません |
※現在空室情報は 確認する |
|||||
| 4F |
89.76 坪 296.73 ㎡ |
※現在空室情報はございません |
※現在空室情報は 確認する |
|||||
| 6F |
89.76 坪 296.73 ㎡ |
1,615,680 円 18,000 円(坪) |
込 |
19,388,160 円 12 ヶ月 |
2026/02/01 |
|
|
|
| 7F |
89.76 坪 296.73 ㎡ |
※現在空室情報はございません |
※現在空室情報は 確認する |
|||||
| 8F |
73.6 坪 243.31 ㎡ |
※現在空室情報はございません |
※現在空室情報は 確認する |
|||||
お問い合わせ
似た条件の物件はこちら
-
サンポウ池袋ビル
東京都豊島区池袋4-32-8
坪数:41.87 坪
坪単価:13,000 円(坪)
-
三仲ビル
東京都豊島区西池袋1-15-8
坪数:30 坪
坪単価:25,000 円(坪)
-
日興池袋ビル(旧 トウセン池袋ビル)
東京都豊島区池袋4-29-11
坪数:37.5 坪
坪単価:10,600 円(坪)
-
山の手ビル東館
東京都豊島区南池袋1-19-12
坪数:48.89 坪
坪単価:18,000 円(坪)
-
第1野萩ビル
東京都豊島区南池袋3-10-8
坪数:39.36 坪
坪単価:18,000 円(坪)
-
東都自動車ビルディング
東京都豊島区西池袋5-13-13
坪数:37.51 坪
坪単価:12,022 円(坪)
-
新東第一ビル
東京都豊島区西池袋1-16-1
坪数:36.48 坪
坪単価:24,323 円(坪)
-
池袋KTビル
東京都豊島区西池袋2-29-19
坪数:35.68 坪
坪単価:20,000 円(坪)
-
メトロシティ南池袋
東京都豊島区南池袋2-29-12
坪数:44.2 坪
坪単価:21,000 円(坪)
-
オーク池袋ビル
東京都豊島区東池袋1-21-11
坪数:43.09 坪
坪単価:27,000 円(坪)