箱崎NSOビル(物件No:31184153)
箱崎NSOは、中央区日本橋箱崎町にある貸事務所物件です。最寄り駅は、東京メトロ半蔵門線の水天宮前駅、東京メトロ日比谷線の茅場町駅です。1997年竣工、2007年にリニューアル工事完了の賃貸オフィスビルです。天高は2600mmで、床はOAフロアとなっております。空調は個別空調で、トイレは男女別です。機械警備で、エレベーターは1基あります。新耐震基準に適合している、中央区日本橋箱崎町の貸事務所です。
-
物件情報
-
設備情報
- トイレ
- 男女別
- 床
- フリーアクセス
- 空調
- 個別空調
- セキュリティ
- 有
- 駐車場
- -
- 会議室
- -
- エレベーター
- 1基
- 天井高
- 2600mm
-
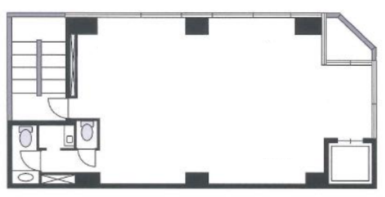
間取り図
-
近隣相場情報
日本橋箱崎町20丁目(30~40坪)の相場
12633 円 (坪)
※ビルサク調べ
周辺施設情報
| コンビニ |
ローソン/日本橋箱崎/82m(徒歩1分) ファミリーマート/IBM箱崎ビル店/130m(徒歩2分) |
|---|---|
| 郵便局/銀行 |
ローソン銀行/箱崎湊橋共同出張所/[営業時間]24時間/82m(徒歩1分) イーネット/ファミリーマートIBM箱崎ビル/[営業時間]24時間/130m(徒歩2分) |
| 飲食店 |
丼丸 箱崎店/10時00分~20時00分/96m(徒歩1分) つじ村/11時30分~13時30分 17時30分~20時30分/85m(徒歩1分) |
| カフェ |
ぽえむ/日本橋店/[営業時間]9:00~18:00/120m(徒歩1分) タリーズ/IBM箱崎店/[営業時間]平日:7:00~19:00 土 :休業日 日祝:休業日/93m(徒歩1分) |
| コインパーキング |
三井のリパーク/日本橋箱崎町第10 [料金] [料金]平日 08:00~20:00 15分/300円 平日 20:00~08:00 60分/100円 日祝 08:00~20:00 15分/300円 日祝 20:00~08:00 60分/100円 [最大料金] 最大料金 【月~土】8:00~20:00以内 最大料金3500円 【日祝】8:00~20:00以内 最大料金1300円 [台数]3 タイムズ駐車場/日本橋箱崎町第6 [料金] [月~金]通常料金 / 0:00~0:00 20分 330円 [土・日・祝]通常料金 / 0:00~0:00 20分 330円 [最大料金] [月~金]8:00~19:00 最大料金2640円 19:00~8:00 最大料金440円 [土・日・祝]8:00~19:00 最大料金1320円 19:00~8:00 最大料金440円 [台数]6 |
周辺地図
箱崎NSOは、中央区日本橋箱崎町にある貸事務所物件です。最寄り駅は、東京メトロ半蔵門線の水天宮前駅、東京メトロ日比谷線の茅場町駅です。1997年竣工、2007年にリニューアル工事完了の賃貸オフィスビルです。天高は2600mmで、床はOAフロアとなっております。空調は個別空調で、トイレは男女別です。機械警備で、エレベーターは1基あります。新耐震基準に適合している、中央区日本橋箱崎町の貸事務所です。
全フロア情報
更新日:2026年3月6日
| 階 | 面積 | 賃料 | 共益費 | 敷金 | 入居日 | お問合せ | お気に入り | |
|---|---|---|---|---|---|---|---|---|
| 3F |
30.05 坪 99.34 ㎡ |
360,600 円 12,000 円(坪) |
60,100 円 2,000 円(坪) |
2,163,600 円 6 ヶ月 |
即日 |
|
|
|
| 4F |
30.05 坪 99.34 ㎡ |
※現在空室情報はございません |
※現在空室情報は 確認する |
|||||
| 5F |
30.05 坪 99.34 ㎡ |
※現在空室情報はございません |
※現在空室情報は 確認する |
|||||
| 7F |
30.05 坪 99.34 ㎡ |
※現在空室情報はございません |
※現在空室情報は 確認する |
|||||
お問い合わせ
似た条件の物件はこちら
-
第1川端ビル
東京都中央区日本橋堀留町1-10-19
坪数:26.08 坪
坪単価:14,000 円(坪)
-
伊勢兼ビル
東京都中央区日本橋人形町1-7-9
坪数:27.05 坪
坪単価:17,000 円(坪)
-
横山町ビル
東京都中央区日本橋横山町1-1
坪数:21.35 坪
坪単価:23,419 円(坪)
-
林ビル
東京都中央区日本橋馬喰町1-5-10
坪数:29.43 坪
坪単価:10,000 円(坪)
-
7山京ビル
東京都中央区日本橋箱崎町17-8
坪数:37.5 坪
坪単価:11,000 円(坪)
-
オーキッドプレイス蛎殻町ビル
東京都中央区日本橋蛎殻町1-4-1
坪数:24.87 坪
坪単価:16,000 円(坪)
-
FSビル
東京都中央区日本橋人形町2-21-1
坪数:22.05 坪
坪単価:11,000 円(坪)
-
Ikigai Bashi ビル
東京都中央区日本橋大伝馬町1-7
坪数:21.86 坪
坪単価:22,000 円(坪)
-
エムジー小伝馬町ビル
東京都中央区日本橋小伝馬町7-10
坪数:27.38 坪
坪単価:12,500 円(坪)
-
メゾン日本橋
東京都中央区日本橋浜町2-11-2
坪数:21.06 坪
坪単価:11,396 円(坪)
関連エリアから探す
- 日本橋大伝馬町
- 日本橋蛎殻町
- 日本橋小網町
- 日本橋小伝馬町
- 日本橋小舟町
- 日本橋富沢町
- 日本橋人形町
- 日本橋箱崎町
- 日本橋堀留町
- 日本橋中洲
- 日本橋馬喰町
- 日本橋浜町
- 日本橋久松町
- 日本橋横山町
- 東日本橋