桂昇茅場町ビル(物件No:31181161)
桂昇茅場町ビルは中央区日本橋茅場町にある地上5階建ての貸店舗事務所です。最寄駅は東京メトロ日比谷線の茅場町駅から徒歩2分、東京メトロ銀座線の日本橋駅から徒歩6分、東京メトロ東西線の茅場町駅から徒歩2分、東京メトロ東西線の日本橋駅から徒歩6分、都営浅草線の日本橋駅から徒歩4分です。1969年10月竣工の鉄筋コンクリート造です。設備としては、トイレは室外です。最寄駅から駅近で便利な中央区日本橋茅場町の貸店舗事務所です。
| 階 | 面積 | 賃料 | 共益費 | 敷金 | 入居日 | お問合せ | お気に入り |
|---|---|---|---|---|---|---|---|
|
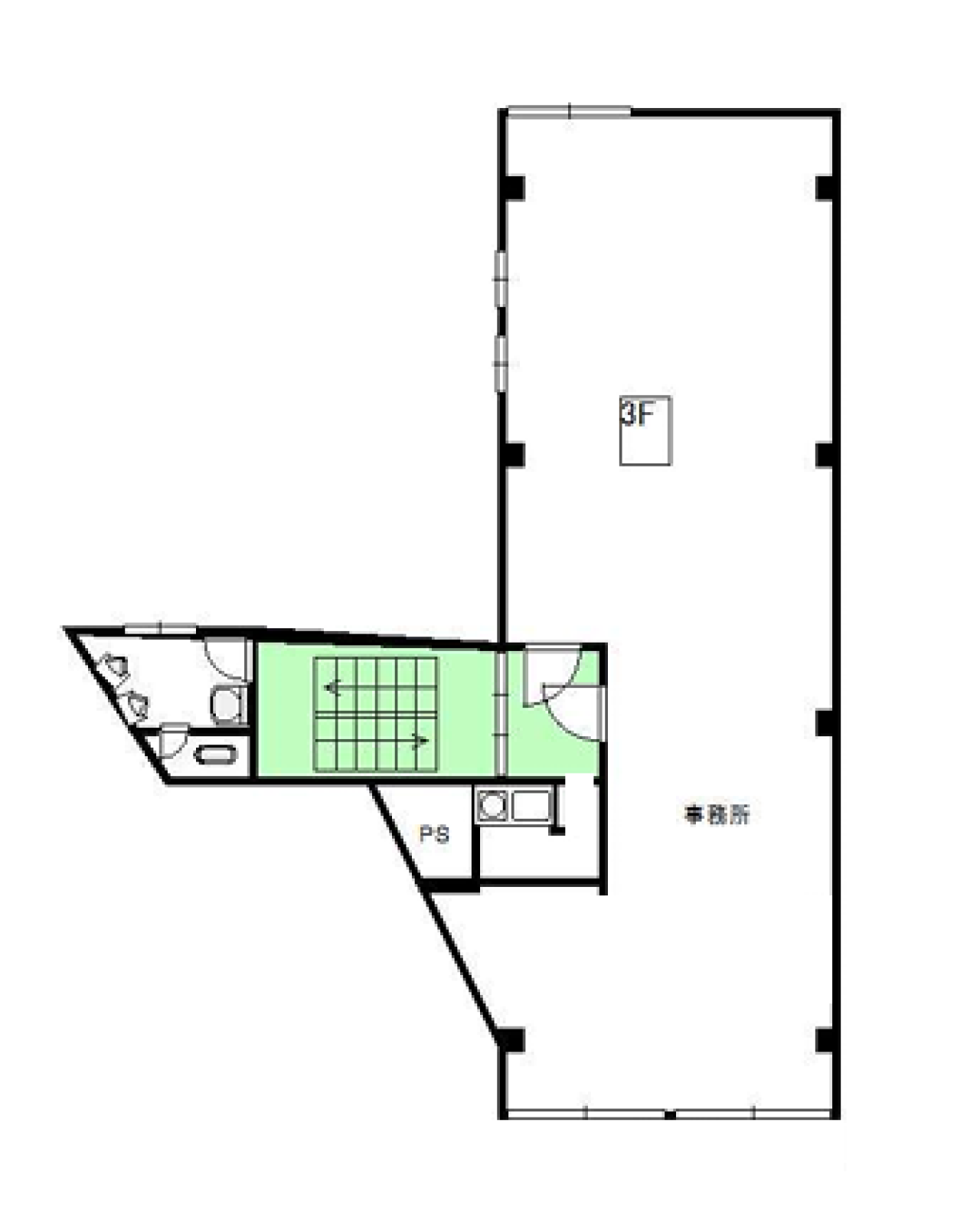
3F
(1区画) |
31.11 坪 102.84 ㎡ |
360,000 円 11,572 円(坪) |
無 |
1,440,000 円 4 ヶ月 |
2026/04 |
|
|
| 階 | 面積 | 賃料 | 共益費 | 敷金 | 入居日 | お問合せ | お気に入り |
|---|---|---|---|---|---|---|---|
|
3F
(1区画) |
31.11 坪 102.84 ㎡ |
360,000 円 11,572 円(坪) |
無 |
1,440,000 円 4 ヶ月 |
2026/04 |
|
|
-
物件情報
-
設備情報
- トイレ
- 室外男女別
- 床
- -
- 空調
- -
- セキュリティ
- -
- 駐車場
- -
- 会議室
- -
- エレベーター
- 0基
- 天井高
- -
-
間取り図
-
近隣相場情報
日本橋茅場町1丁目(30~40坪)の相場
17596 円 (坪)
※ビルサク調べ
周辺施設情報
| コンビニ |
ファミリーマート/日本橋兜町店/100m(徒歩1分) セブンイレブン/兜町東証前/110m(徒歩1分) |
|---|---|
| 郵便局/銀行 |
七十七銀行/日本橋支店/[営業時間]平日:9:00~15:00 [ATM]平日:8:45~18:00 土曜日:- 日曜日/祝日:-/70m(徒歩1分) みずほ銀行/兜町支店/窓口 平日9:00~15:00 ATM 平日 8:00~21:00 土曜日 - 日曜日 - 祝日・振替休日 -/150m(徒歩2分) |
| 飲食店 |
蕎麦 たかね/10時30分~15時00分、17時00分~22時00分/70m(徒歩1分) 串揚・宜く/11:30~14:00、17:00~23:30/ |
| カフェ |
タリーズ/日本橋茅場町店/[営業時間]平日:9:00~19:00 土 :休業日 日祝 :休業日 [備考]Tully's Wi-Fi/40m(徒歩1分) 珈琲家/[営業時間]7時00分~18時30分/ |
| コインパーキング |
ユアー・パーキング/日本橋茅場町第2 [料金] 【全日】 08時~20時 30分/500円 【全日】 20時~08時 60分/100円 [最大料金] 平日:入庫後初回のみ6時間3,000円 土日祝:入庫後初回のみ6時間1,300円 [台数]2 三井のリパーク/日本橋兜町第4 [料金] 平日 08:00~20:00 20分/300円、平日 20:00~08:00 60分/100円 日祝 08:00~20:00 20分/300円、日祝 20:00~08:00 60分/100円 [最大料金] 【月~土】8:00~20:00以内 最大料金3500円、【日祝】8:00~20:00以内 最大料金1900円 【全日】20:00~8:00以内 最大料金500円 [台数]4 |
周辺地図
桂昇茅場町ビルは中央区日本橋茅場町にある地上5階建ての貸店舗事務所です。最寄駅は東京メトロ日比谷線の茅場町駅から徒歩2分、東京メトロ銀座線の日本橋駅から徒歩6分、東京メトロ東西線の茅場町駅から徒歩2分、東京メトロ東西線の日本橋駅から徒歩6分、都営浅草線の日本橋駅から徒歩4分です。1969年10月竣工の鉄筋コンクリート造です。設備としては、トイレは室外です。最寄駅から駅近で便利な中央区日本橋茅場町の貸店舗事務所です。
全フロア情報
更新日:2026年1月28日
| 階 | 面積 | 賃料 | 共益費 | 敷金 | 入居日 | お問合せ | お気に入り | |
|---|---|---|---|---|---|---|---|---|
|
3F
(1区画) |
31.11 坪 102.84 ㎡ |
360,000 円 11,572 円(坪) |
無 |
1,440,000 円 4 ヶ月 |
2026/04 |
|
|
|
|
4F
(A区画) |
16.9 坪 55.87 ㎡ |
※現在空室情報はございません |
※現在空室情報は 確認する |
|||||
お問い合わせ
似た条件の物件はこちら
-
合人社東京八丁堀ビル
東京都中央区八丁堀3-22-8
坪数:36.54 坪
坪単価:28,000 円(坪)
-
鉄鋼会館
東京都中央区日本橋茅場町3-2-10
坪数:31.72 坪
坪単価:22,699 円(坪)
-
NOVEL WORK 京橋
東京都中央区八丁堀3-5-4
坪数:24.89 坪
坪単価:28,500 円(坪)
-
大湯ビル
東京都中央区日本橋茅場町2-6-8
坪数:27 坪
坪単価:15,000 円(坪)
-
第5山京ビル
東京都中央区新川1-2-8
坪数:21.25 坪
坪単価:17,082 円(坪)
-
塩部ビル
東京都中央区八丁堀4-9-6
坪数:24.06 坪
坪単価:12,500 円(坪)
-
八丁堀共同ビル
東京都中央区八丁堀2-8-2
坪数:26.04 坪
坪単価:12,000 円(坪)
-
KSビル
東京都中央区八丁堀3-9-5
坪数:25.06 坪
坪単価:12,000 円(坪)
-
ONE SHINKAWA
東京都中央区新川1-23-5
坪数:38.3 坪
坪単価:22,000 円(坪)
-
市川ビル
東京都中央区八丁堀4-4-5
坪数:29.5 坪
坪単価:9,000 円(坪)