池袋KSビル(物件No:31181158)
池袋KSビルは、豊島区東池袋にある貸事務所物件です。最寄り駅は、JR線、東武東上線、東京メトロ副都心線、東京メトロ丸ノ内線、東京メトロ有楽町線の池袋駅、東京メトロ有楽町線の東池袋駅、都電荒川線の向原駅、東池袋四丁目駅です。1992年竣工で、基準階が64.11坪の賃貸オフィスビルです。天高は2500mmで、床はOAフロアとなっております。空調は個別空調で、トイレは室内にあり、男女別です。駐車場があり、エレベーターは1基あります。複数路線利用可能な、アクセスの良い豊島区東池袋の貸事務所です。
-
物件情報
-
設備情報
- トイレ
- 室内男女別
- 床
- -
- 空調
- 個別空調
- セキュリティ
- -
- 駐車場
- 有
- 会議室
- -
- エレベーター
- 1基
- 天井高
- -
-
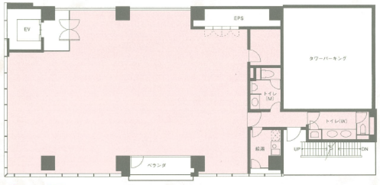
間取り図
-
近隣相場情報
東池袋3丁目(50~100坪)の相場
23111 円 (坪)
※ビルサク調べ
周辺施設情報
| コンビニ |
ファミリーマート/東池袋店/450m(徒歩6分) セブンイレブン/Iing電波学園/550m(徒歩7分) |
|---|---|
| 郵便局/銀行 |
みずほ銀行/ATM サンシャインシティアルパB1出張所/[営業時間]平日 8:00~21:00 土曜日 8:00~21:00 日曜日 8:00~21:00 祝日・振替休日 曜日に準ずる 備考 *設置施設の休業日・休業時間帯は、一般のお客さまはご利用いただけません。 *通帳はご利用いただけません。/550m(徒歩7分) ろうきん/ATM 中央労働金庫 池袋支店/[営業時間]平日 8:00~21:00 土曜 8:00~19:00 日曜 9:00~19:00 祝日 9:00~19:00 [休業日]※1/1~1/3は休止 また、システムメンテナンス等で利用できない場合がございます。※ATMの臨時休止に関するお知らせはHP参照/650m(徒歩8分) |
| 飲食店 |
韓豚屋 池袋サンシャインシティ店/11時00分~22時00分/400m(徒歩6分) ビストロティガボンボン 池袋サンシャイン店/11時00分~22時00分/400m(徒歩5分) |
| カフェ |
執事喫茶 スワロウテイル/10時30分~18時40分、19時00分~21時15分/400m(徒歩5分) AWESOME STORE & CAFE IKEBUKURO/10時00分~21時00分/800m(徒歩10分) |
| コインパーキング |
NTTル・パルク/池袋第1 [料金] オールタイム 30分 400円 [最大料金] 夜間最大(24:00~8:00)500円(繰返しOK) [台数]:5台 イージーパーク/東池袋店 [台数]7台 |
周辺地図
池袋KSビルは、豊島区東池袋にある貸事務所物件です。最寄り駅は、JR線、東武東上線、東京メトロ副都心線、東京メトロ丸ノ内線、東京メトロ有楽町線の池袋駅、東京メトロ有楽町線の東池袋駅、都電荒川線の向原駅、東池袋四丁目駅です。1992年竣工で、基準階が64.11坪の賃貸オフィスビルです。天高は2500mmで、床はOAフロアとなっております。空調は個別空調で、トイレは室内にあり、男女別です。駐車場があり、エレベーターは1基あります。複数路線利用可能な、アクセスの良い豊島区東池袋の貸事務所です。
全フロア情報
更新日:2026年3月4日
| 階 | 面積 | 賃料 | 共益費 | 敷金 | 入居日 | お問合せ | お気に入り | |
|---|---|---|---|---|---|---|---|---|
| B1F |
68.68 坪 227.04 ㎡ |
1,080,000 円 15,725 円(坪) |
140,000 円 2,038 円(坪) |
6,480,000 円 6 ヶ月 |
2026/01 |
|
|
|
| 1F |
29.42 坪 97.26 ㎡ |
600,000 円 20,394 円(坪) |
60,000 円 2,039 円(坪) |
3,600,000 円 6 ヶ月 |
即日 |
|
|
|
| 2F |
59.86 坪 197.88 ㎡ |
933,936 円 15,602 円(坪) |
119,720 円 2,000 円(坪) |
即日 |
|
|
||
| 3F |
64.12 坪 211.97 ㎡ |
1,000,272 円 15,600 円(坪) |
128,240 円 2,000 円(坪) |
6,001,632 円 6 ヶ月 |
即日 |
|
|
|
| 4F |
64.12 坪 211.97 ㎡ |
1,000,000 円 15,596 円(坪) |
130,000 円 2,027 円(坪) |
6,000,000 円 6 ヶ月 |
即日 |
|
|
|
| 5F |
64.11 坪 211.93 ㎡ |
※現在空室情報はございません |
※現在空室情報は 確認する |
|||||
| 6F |
64.11 坪 211.93 ㎡ |
※現在空室情報はございません |
※現在空室情報は 確認する |
|||||
| 7F |
64.11 坪 211.93 ㎡ |
※現在空室情報はございません |
※現在空室情報は 確認する |
|||||
| 8F |
63.05 坪 208.43 ㎡ |
※現在空室情報はございません |
※現在空室情報は 確認する |
|||||
お問い合わせ
似た条件の物件はこちら
-
K&Hビル
東京都豊島区西池袋3-30-4
坪数:57.32 坪
坪単価:14,000 円(坪)
-
山の手ビル東館
東京都豊島区南池袋1-19-12
坪数:60.07 坪
坪単価:18,000 円(坪)
-
東都自動車ビルディング
東京都豊島区西池袋5-13-13
坪数:64.29 坪
坪単価:12,000 円(坪)
-
池袋オンダビル
東京都豊島区池袋2-47-5
坪数:57.84 坪
坪単価:13,000 円(坪)
-
SATOビル
東京都豊島区南池袋2-30-7
坪数:57.48 坪
坪単価:13,636 円(坪)
-
池袋KTビル
東京都豊島区西池袋2-29-19
坪数:53.7 坪
坪単価:18,000 円(坪)
-
タカセセントラルビル
東京都豊島区東池袋1-1-4
坪数:64.56 坪
坪単価:20,000 円(坪)
-
NBF池袋イースト
東京都豊島区東池袋3-4-3
坪数:71.82 坪
坪単価:25,000 円(坪)
-
城北自動車会館
東京都豊島区東池袋1-30-12
坪数:53 坪
坪単価:13,000 円(坪)