バイファルビルディング日本橋(物件No:31089191)
バイファルビルディング日本橋は中央区日本橋馬喰町にある地下1階、地上8階建ての賃貸事務所です。最寄駅はJR総武線快速の馬喰町駅から徒歩3分、都営新宿線の馬喰横山駅から徒歩5分、東京メトロ日比谷線の小伝馬町駅から徒歩8分、都営浅草線の東日本橋駅から徒歩6分、JR中央・総武線の浅草橋駅から徒歩4分です。1992年8月竣工の鉄骨造です。設備としては、エレベーターが1基あります。空調は個別空調です。耐震設計となっている、複数駅利用可能なアクセスの良い中央区日本橋馬喰町の賃貸オフィスです。
-
物件情報
-
設備情報
- トイレ
- 室内男女共用
- 床
- -
- 空調
- 個別空調
- セキュリティ
- 有
- 駐車場
- -
- 会議室
- -
- エレベーター
- 1基
- 天井高
- -
-
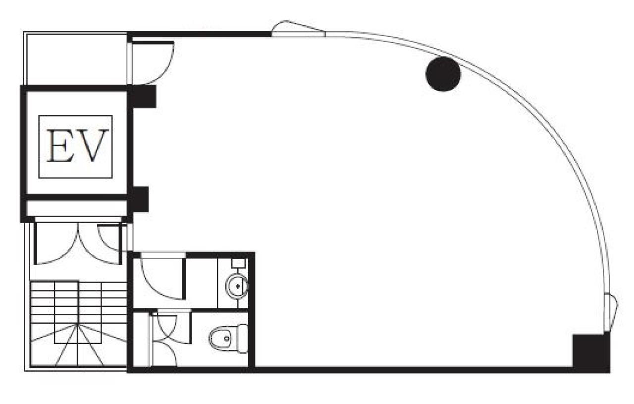
間取り図
-
近隣相場情報
日本橋馬喰町1丁目(20坪以下)の相場
12221 円 (坪)
※ビルサク調べ
周辺地図
バイファルビルディング日本橋は中央区日本橋馬喰町にある地下1階、地上8階建ての賃貸事務所です。最寄駅はJR総武線快速の馬喰町駅から徒歩3分、都営新宿線の馬喰横山駅から徒歩5分、東京メトロ日比谷線の小伝馬町駅から徒歩8分、都営浅草線の東日本橋駅から徒歩6分、JR中央・総武線の浅草橋駅から徒歩4分です。1992年8月竣工の鉄骨造です。設備としては、エレベーターが1基あります。空調は個別空調です。耐震設計となっている、複数駅利用可能なアクセスの良い中央区日本橋馬喰町の賃貸オフィスです。
全フロア情報
更新日:2022年12月16日
| 階 | 面積 | 賃料 | 共益費 | 敷金 | 入居日 | お問合せ | お気に入り | |
|---|---|---|---|---|---|---|---|---|
| 1F |
8.36 坪 27.64 ㎡ |
※現在空室情報はございません |
※現在空室情報は 確認する |
|||||
| 2F |
11.13 坪 36.79 ㎡ |
※現在空室情報はございません |
※現在空室情報は 確認する |
|||||
| 3F |
11.13 坪 36.79 ㎡ |
※現在空室情報はございません |
※現在空室情報は 確認する |
|||||
| 4F |
11.13 坪 36.79 ㎡ |
※現在空室情報はございません |
※現在空室情報は 確認する |
|||||
| 5F |
11.13 坪 36.79 ㎡ |
※現在空室情報はございません |
※現在空室情報は 確認する |
|||||
| 6F |
11.13 坪 36.79 ㎡ |
※現在空室情報はございません |
※現在空室情報は 確認する |
|||||
| 7F |
11.13 坪 36.79 ㎡ |
※現在空室情報はございません |
※現在空室情報は 確認する |
|||||
| 8F |
11.13 坪 36.79 ㎡ |
※現在空室情報はございません |
※現在空室情報は 確認する |
|||||
| 9F |
11.13 坪 36.79 ㎡ |
※現在空室情報はございません |
※現在空室情報は 確認する |
|||||
お問い合わせ
似た条件の物件はこちら
-
イーストワン箱崎
東京都中央区日本橋箱崎町15-6
坪数:15.91 坪
坪単価:15,085 円(坪)
-
浜町プログレスビル
東京都中央区日本橋浜町2-33-7
坪数:15.71 坪
坪単価:10,000 円(坪)
-
島村ビル
東京都中央区日本橋人形町1-19-3
坪数:13.26 坪
坪単価:16,591 円(坪)
-
柴川ビル
東京都中央区日本橋人形町2-6-1
坪数:13.02 坪
坪単価:11,000 円(坪)
-
セブンスターマンション日本橋浜町
東京都中央区日本橋浜町1-1-2
坪数:15.31 坪
坪単価:14,043 円(坪)
-
日本橋パークサイドビル
東京都中央区日本橋浜町2-55-7
坪数:15.69 坪
坪単価:12,747 円(坪)
-
安井ビル
東京都中央区日本橋人形町1-6-2
坪数:12.21 坪
坪単価:20,000 円(坪)
-
日本橋遠綿ビル
東京都中央区日本橋富沢町6-2
坪数:6.71 坪
坪単価:7,000 円(坪)
-
130ビル
東京都中央区日本橋小舟町2-1
坪数:14.52 坪
坪単価:16,000 円(坪)
-
第1南川ビル
東京都中央区日本橋小舟町4-8
坪数:14.22 坪
坪単価:10,000 円(坪)
関連エリアから探す
- 日本橋大伝馬町
- 日本橋蛎殻町
- 日本橋小網町
- 日本橋小伝馬町
- 日本橋小舟町
- 日本橋富沢町
- 日本橋人形町
- 日本橋箱崎町
- 日本橋堀留町
- 日本橋中洲
- 日本橋馬喰町
- 日本橋浜町
- 日本橋久松町
- 日本橋横山町
- 東日本橋