いろいろ聞いてみる

山下町の賃貸オフィス

モリス横浜山下町(物件No:30825944)

モリス横浜山下町は、神奈川県横浜市中区山下町にある地上11階建ての貸店舗/賃貸事務所です。最寄駅はJR京浜東北線の石川町駅から徒歩6分、JR根岸線の石川町駅から徒歩6分、JR京浜東北線の関内駅から徒歩9分です。1999年3月竣工の鉄骨鉄筋コンクリート造です。複数路線利用可能なアクセスの良い神奈川県横浜市中区山下町の貸店舗/賃貸オフィスです。

  • モリス横浜山下町
  • モリス横浜山下町
  • モリス横浜山下町
  • モリス横浜山下町
面積 賃料 共益費 敷金 入居日 お問合せ お気に入り
1F

52.8 坪

174.55 ㎡

※現在空室情報はございません

※現在空室情報は
ございません

最新情報を
確認する
  • 物件情報

    住所
    神奈川県横浜市中区山下町200-2
    最寄り駅
    JR京浜東北線 石川町駅 徒歩6分
    JR根岸線 石川町駅 徒歩6分
    JR京浜東北線 関内駅 徒歩9分
    竣工
    1999年
    耐震
    新耐震基準
    規模・構造
    1F - 11F  鉄骨鉄筋コンクリート造
  • 設備情報

    トイレ
    室内
    -
    空調
    -
    セキュリティ
    -
    駐車場
    会議室
    -
    エレベーター
    1基
    天井高
    -
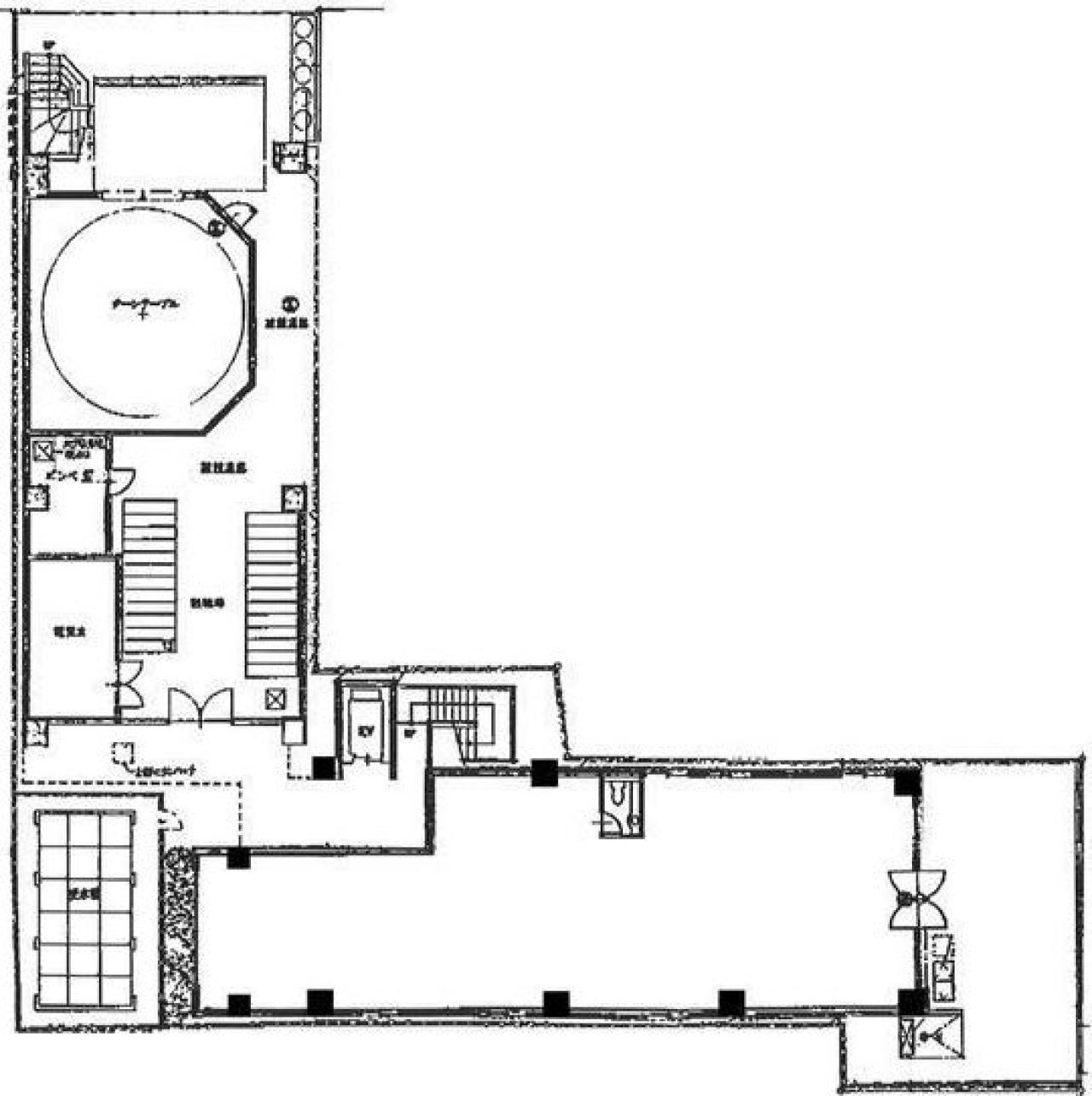
  • 間取り図

    間取り図

  • 近隣相場情報

    山下町200丁目(50~100坪)の相場

    調査中

周辺地図

モリス横浜山下町は、神奈川県横浜市中区山下町にある地上11階建ての貸店舗/賃貸事務所です。最寄駅はJR京浜東北線の石川町駅から徒歩6分、JR根岸線の石川町駅から徒歩6分、JR京浜東北線の関内駅から徒歩9分です。1999年3月竣工の鉄骨鉄筋コンクリート造です。複数路線利用可能なアクセスの良い神奈川県横浜市中区山下町の貸店舗/賃貸オフィスです。

全フロア情報

更新日:2024年10月9日

面積 賃料 共益費 敷金 入居日 お問合せ お気に入り
1F

52.8 坪

174.55 ㎡

※現在空室情報はございません

※現在空室情報は
ございません

最新情報を
確認する

お問い合わせ

必須
必須
必須
必須
必須

お問い合わせ

物件に関してのお問い合わせ

「失敗しないオフィス移転サポート」物件探しから移転までスムーズで担当者様がとにかく楽になるサービスです。

050-7587-0049平日 9:00~18:00

メールでお問い合わせ

フリーワード検索