(仮称)神宮前1丁目店舗(物件No:30610149)
(仮称)神宮前1丁目店舗は、渋谷区神宮前にある地上3階建ての貸店舗物件/賃貸事務所です。最寄駅はJR山手線の原宿駅から徒歩2分、東京メトロ副都心線の明治神宮前〈原宿〉駅から徒歩4分、東京メトロ千代田線の明治神宮前〈原宿〉駅から徒歩4分です。2020年2月竣工の鉄筋コンクリート造です。設備としては、天高は3000mmです。耐震設計となっている、複数駅利用可能なアクセスの良い渋谷区神宮前の貸店舗物件/賃貸オフィスです。
- 
                    物件情報- 住所
- 東京都渋谷区神宮前1-21-4
- 最寄り駅
- 
                        
                            
                    JR山手線
                
            
            
                原宿駅
            
            徒歩2分
 東京メトロ副都心線 明治神宮前〈原宿〉駅 徒歩4分
 東京メトロ千代田線 明治神宮前〈原宿〉駅 徒歩4分
 
- 竣工
- 2020年
- 耐震
- 新耐震基準
- 規模・構造
- 1F - 3F 鉄筋コンクリート造
 
- 
                        設備情報- トイレ
- -
- 床
- -
- 空調
- -
- セキュリティ
- -
- 駐車場
- -
- 会議室
- -
- エレベーター
- -
- 天井高
- 3000mm
 
- 
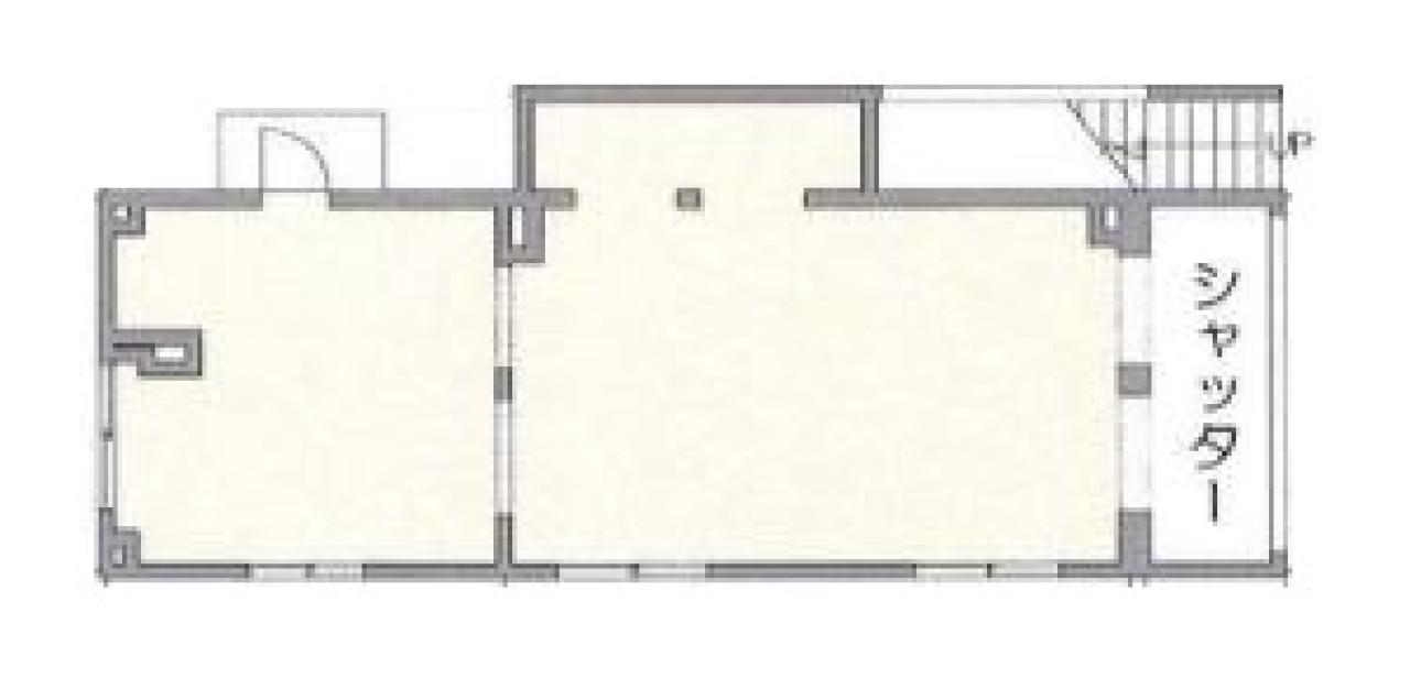
                        間取り図
- 
                    近隣相場情報神宮前1丁目(20坪以下)の相場 19943 円 (坪) 
 ※ビルサク調べ
周辺地図
(仮称)神宮前1丁目店舗は、渋谷区神宮前にある地上3階建ての貸店舗物件/賃貸事務所です。最寄駅はJR山手線の原宿駅から徒歩2分、東京メトロ副都心線の明治神宮前〈原宿〉駅から徒歩4分、東京メトロ千代田線の明治神宮前〈原宿〉駅から徒歩4分です。2020年2月竣工の鉄筋コンクリート造です。設備としては、天高は3000mmです。耐震設計となっている、複数駅利用可能なアクセスの良い渋谷区神宮前の貸店舗物件/賃貸オフィスです。
全フロア情報
更新日:2022年2月2日
| 階 | 面積 | 賃料 | 共益費 | 敷金 | 入居日 | お問合せ | お気に入り | |
|---|---|---|---|---|---|---|---|---|
| 1F | 19.55 坪 64.63 ㎡ | ※現在空室情報はございません | ※現在空室情報は 確認する | |||||
お問い合わせ
似た条件の物件はこちら
- 
                    
                        エトワールUビル東京都渋谷区渋谷3-13-9 坪数:23.68 坪 坪単価:17,249 円(坪) 
- 
                    
                        ビラ・ビアンカ東京都渋谷区神宮前2-33-12 坪数:18.79 坪 坪単価:16,450 円(坪) 
- 
                    
                        渋谷3丁目ビル東京都渋谷区渋谷3-18-4 坪数:17.43 坪 坪単価:26,000 円(坪) 
- 
                    
                        三貴ビル東京都渋谷区渋谷2-12-12 坪数:15.7 坪 坪単価:22,000 円(坪) 
- 
                    
                        倉島渋谷ビル東京都渋谷区渋谷2-3-8 坪数:20.53 坪 坪単価:18,000 円(坪) 
- 
                    
                        フォーラム神宮前東京都渋谷区神宮前4-6-2 坪数:14.52 坪 坪単価:20,000 円(坪) 
- 
                    
                        アクシーズ7号館ビル東京都渋谷区渋谷3-17-4 坪数:18 坪 坪単価:20,000 円(坪) 
- 
                    
                        第3矢木ビル東京都渋谷区渋谷3-7-2 坪数:18 坪 坪単価:30,000 円(坪) 
- 
                    
                        越一ビル東京都渋谷区神宮前6-19-16 坪数:19 坪 坪単価:22,000 円(坪) 
- 
                    
                          日興パレス外苑東京都渋谷区神宮前2-13-7 坪数:16.57 坪 坪単価:12,311 円(坪) 
 
         
    