テラス三田目黒(物件No:30177881)
テラス三田目黒は目黒区三田にある地上3階建ての賃貸事務所です。最寄駅はJR山手線、東急目黒線の目黒駅から徒歩10分、JR埼京線の恵比寿駅から徒歩10分です。1984年竣工の鉄筋コンクリート造です。トイレは室内にあります。複数路線利用可能でアクセスの良い目黒区三田の貸事務所です。
| 階 | 面積 | 賃料 | 共益費 | 敷金 | 入居日 | お問合せ | お気に入り |
|---|---|---|---|---|---|---|---|
| 2F |
22.04 坪 72.86 ㎡ |
268,181 円 12,168 円(坪) |
込 |
268,181 円 1 ヶ月 |
即日 |
|
|
| 階 | 面積 | 賃料 | 共益費 | 敷金 | 入居日 | お問合せ | お気に入り |
|---|---|---|---|---|---|---|---|
| 2F |
22.04 坪 72.86 ㎡ |
268,181 円 12,168 円(坪) |
込 |
268,181 円 1 ヶ月 |
即日 |
|
|
-
物件情報
-
設備情報
- トイレ
- 室内男女共用
- 床
- フローリング
- 空調
- -
- セキュリティ
- -
- 駐車場
- 無
- 会議室
- -
- エレベーター
- -
- 天井高
- -
-
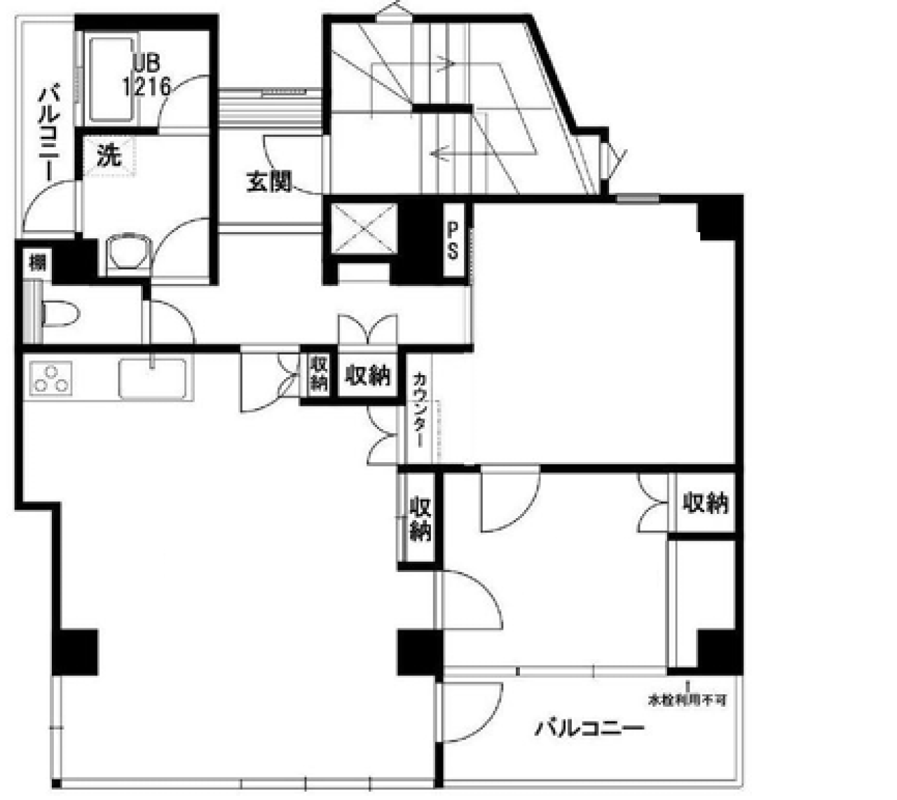
間取り図
-
近隣相場情報
三田2丁目(20~30坪)の相場
12168 円 (坪)
※ビルサク調べ
周辺地図
テラス三田目黒は目黒区三田にある地上3階建ての賃貸事務所です。最寄駅はJR山手線、東急目黒線の目黒駅から徒歩10分、JR埼京線の恵比寿駅から徒歩10分です。1984年竣工の鉄筋コンクリート造です。トイレは室内にあります。複数路線利用可能でアクセスの良い目黒区三田の貸事務所です。
全フロア情報
更新日:2025年10月9日
| 階 | 面積 | 賃料 | 共益費 | 敷金 | 入居日 | お問合せ | お気に入り |
|---|---|---|---|---|---|---|---|
| 2F |
22.04 坪 72.86 ㎡ |
268,181 円 12,168 円(坪) |
込 |
268,181 円 1 ヶ月 |
即日 |
|
|
お問い合わせ
似た条件の物件はこちら
-
リフィオ目黒
東京都目黒区下目黒3-5-16
坪数:18.34 坪
坪単価:15,267 円(坪)
-
ダイキデュオ目黒
東京都目黒区目黒1-16-10
坪数:25.72 坪
坪単価:21,190 円(坪)
-
梶浦ビル
東京都目黒区下目黒3-5-1
坪数:21.99 坪
坪単価:10,914 円(坪)
-
セザール目黒
東京都目黒区下目黒1-2-22
坪数:19.8 坪
坪単価:11,111 円(坪)
-
的場ビル
東京都目黒区目黒1-3-13
坪数:22.08 坪
坪単価:67,935 円(坪)