NINETY TWO13(物件No:30036125)
NINETY TWO13は、東京都港区赤坂9-2-13にある賃貸オフィスです。最寄駅は東京メトロ日比谷線六本木駅と東京メトロ千代田線乃木坂駅で、いずれも徒歩6分と、複数路線利用可能なアクセス良好な立地です。1972年竣工の鉄筋コンクリート造、地下1階、地上7階建てのビルです。2017年にフルリノベーション済みで、駐車場も利用可能です。六本木駅と乃木坂駅という利便性の高い立地と、フルリノベーション済みの快適なオフィス空間が魅力の、港区赤坂の賃貸オフィスです。
| 階 | 面積 | 賃料 | 共益費 | 敷金 | 入居日 | お問合せ | お気に入り |
|---|---|---|---|---|---|---|---|
|
3F
(310区画) |
9.68 坪 32 ㎡ |
179,000 円 18,492 円(坪) |
20,000 円 2,066 円(坪) |
358,000 円 2 ヶ月 |
即日 |
|
|
| 階 | 面積 | 賃料 | 共益費 | 敷金 | 入居日 | お問合せ | お気に入り |
|---|---|---|---|---|---|---|---|
|
3F
(310区画) |
9.68 坪 32 ㎡ |
179,000 円 18,492 円(坪) |
20,000 円 2,066 円(坪) |
358,000 円 2 ヶ月 |
即日 |
|
|
-
物件情報
-
設備情報
- トイレ
- 室内男女共用
- 床
- -
- 空調
- -
- セキュリティ
- -
- 駐車場
- 有
- 会議室
- -
- エレベーター
- -
- 天井高
- -
-
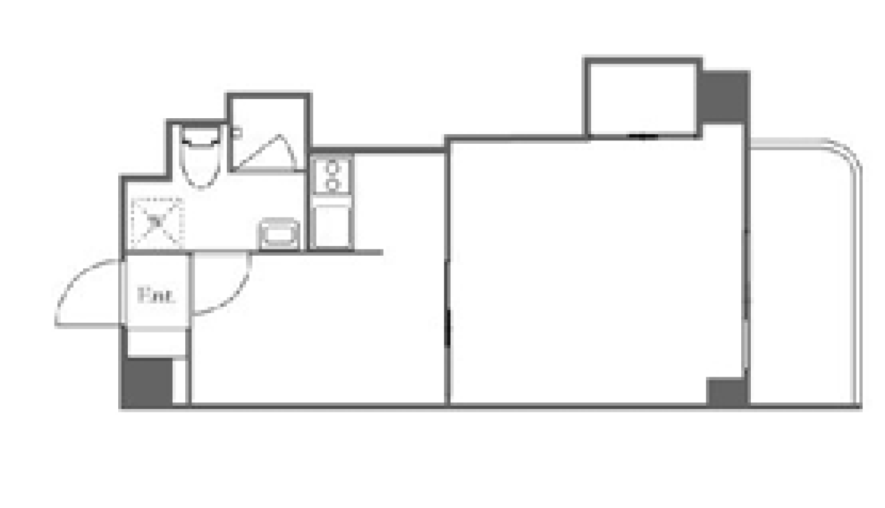
間取り図
-
近隣相場情報
赤坂9丁目(20坪以下)の相場
15021 円 (坪)
※ビルサク調べ
周辺地図
NINETY TWO13は、東京都港区赤坂9-2-13にある賃貸オフィスです。最寄駅は東京メトロ日比谷線六本木駅と東京メトロ千代田線乃木坂駅で、いずれも徒歩6分と、複数路線利用可能なアクセス良好な立地です。1972年竣工の鉄筋コンクリート造、地下1階、地上7階建てのビルです。2017年にフルリノベーション済みで、駐車場も利用可能です。六本木駅と乃木坂駅という利便性の高い立地と、フルリノベーション済みの快適なオフィス空間が魅力の、港区赤坂の賃貸オフィスです。
全フロア情報
更新日:2025年12月8日
| 階 | 面積 | 賃料 | 共益費 | 敷金 | 入居日 | お問合せ | お気に入り | |
|---|---|---|---|---|---|---|---|---|
| 1F |
22.08 坪 73 ㎡ |
※現在空室情報はございません |
※現在空室情報は 確認する |
|||||
|
2F
(201区画) |
23.6 坪 78 ㎡ |
449,000 円 19,025 円(坪) |
20,000 円 847 円(坪) |
898,000 円 2 ヶ月 |
相談 |
|
|
|
|
2F
(202区画) |
22.08 坪 73 ㎡ |
※現在空室情報はございません |
※現在空室情報は 確認する |
|||||
|
2F
(207区画) |
9.68 坪 32 ㎡ |
※現在空室情報はございません |
※現在空室情報は 確認する |
|||||
|
2F
(210区画) |
9.68 坪 32 ㎡ |
179,000 円 7,585 円(坪) |
20,000 円 847 円(坪) |
358,000 円 2 ヶ月 |
相談 |
|
|
|
|
3F
(301区画) |
18.7 坪 61.82 ㎡ |
259,000 円 13,850 円(坪) |
20,000 円 1,070 円(坪) |
518,000 円 2 ヶ月 |
即日 |
|
|
|
|
3F
(305区画) |
9.68 坪 32 ㎡ |
※現在空室情報はございません |
※現在空室情報は 確認する |
|||||
|
3F
(310区画) |
9.68 坪 32 ㎡ |
179,000 円 18,492 円(坪) |
20,000 円 2,066 円(坪) |
358,000 円 2 ヶ月 |
即日 |
|
|
|
|
4F
(1区画) |
9.68 坪 32 ㎡ |
※現在空室情報はございません |
※現在空室情報は 確認する |
|||||
|
5F
(503区画) |
16.03 坪 53 ㎡ |
※現在空室情報はございません |
※現在空室情報は 確認する |
|||||
|
5F
(508区画) |
9.68 坪 32 ㎡ |
※現在空室情報はございません |
※現在空室情報は 確認する |
|||||
|
7F
(702区画) |
14.52 坪 48 ㎡ |
248,000 円 17,080 円(坪) |
20,000 円 1,377 円(坪) |
496,000 円 2 ヶ月 |
即日 |
|
|
|
お問い合わせ
似た条件の物件はこちら
-
赤坂ベルゴ
東京都港区赤坂3-11-14
坪数:6.22 坪
坪単価:18,269 円(坪)
-
第4文成ビル
東京都港区赤坂7-10-9
坪数:13 坪
坪単価:14,000 円(坪)
-
AKASAKA8 BLDG.
東京都港区赤坂8-8-10
坪数:10.57 坪
坪単価:13,245 円(坪)
-
笠松千代田ビル
東京都千代田区永田町2-17-4
坪数:11.42 坪
坪単価:23,993 円(坪)
-
溜池山王葵ビル
東京都港区赤坂2-8-11
坪数:8.42 坪
坪単価:21,378 円(坪)
-
祥文堂ビル
東京都港区赤坂1-5-13
坪数:11.76 坪
坪単価:22,000 円(坪)
-
No.1ニイクラビル
東京都港区赤坂1-7-4
坪数:12.41 坪
坪単価:37,873 円(坪)
-
赤坂2丁目アネックス
東京都港区赤坂2-19-8
坪数:9.57 坪
坪単価:19,000 円(坪)
-
アイオス永田町
東京都千代田区永田町2-17-17
坪数:9.98 坪
坪単価:37,375 円(坪)