いろいろ聞いてみる

新横浜の賃貸オフィス

インテリックス新横浜ビル(物件No:30020935)

インテリックス新横浜ビルは、神奈川県横浜市港北区新横浜にある地上8階建ての賃貸事務所です。最寄駅はJR横浜線の新横浜駅から徒歩10分、横浜市ブルーラインの新横浜駅から徒歩10分です。1991年8月竣工の鉄骨造です。設備としては、エレベーターが2基あり、駐車場もあります。トイレは室外男女別です。空調は個別空調です。床仕様はフリーアクセスです。天高は2580mmです。耐震設計となっている、コンビニや飲食店などの周辺施設が充実した神奈川県横浜市港北区新横浜の賃貸オフィスです。

  • インテリックス新横浜ビル
  • インテリックス新横浜ビル
  • インテリックス新横浜ビル
  • インテリックス新横浜ビル
面積 賃料 共益費 敷金 入居日 お問合せ お気に入り
2F

(A区画)

65.48 坪

216.46 ㎡

※現在空室情報はございません

※現在空室情報は
ございません

最新情報を
確認する
  • 物件情報

    住所
    神奈川県横浜市港北区新横浜1-17-12
    最寄り駅
    JR横浜線 新横浜駅 徒歩10分
    横浜市ブルーライン 新横浜駅 徒歩10分
    竣工
    1991年
    耐震
    新耐震基準
    規模・構造
    1F - 8F  鉄骨造
  • 設備情報

    トイレ
    室外男女別
    フリーアクセス
    空調
    個別空調
    セキュリティ
    駐車場
    会議室
    -
    エレベーター
    2基
    天井高
    2580mm
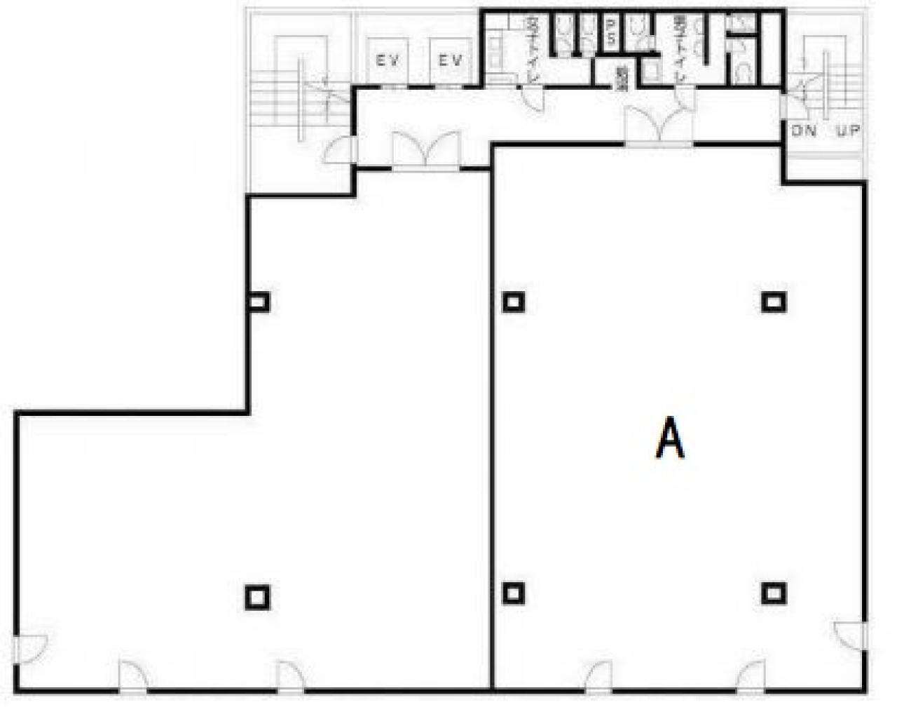
  • 間取り図

    間取り図

  • 近隣相場情報

    新横浜1丁目(50~100坪)の相場

    調査中

周辺地図

インテリックス新横浜ビルは、神奈川県横浜市港北区新横浜にある地上8階建ての賃貸事務所です。最寄駅はJR横浜線の新横浜駅から徒歩10分、横浜市ブルーラインの新横浜駅から徒歩10分です。1991年8月竣工の鉄骨造です。設備としては、エレベーターが2基あり、駐車場もあります。トイレは室外男女別です。空調は個別空調です。床仕様はフリーアクセスです。天高は2580mmです。耐震設計となっている、コンビニや飲食店などの周辺施設が充実した神奈川県横浜市港北区新横浜の賃貸オフィスです。

全フロア情報

更新日:2024年10月9日

面積 賃料 共益費 敷金 入居日 お問合せ お気に入り
2F

132.68 坪

438.61 ㎡

※現在空室情報はございません

※現在空室情報は
ございません

最新情報を
確認する
2F

(A区画)

65.48 坪

216.46 ㎡

※現在空室情報はございません

※現在空室情報は
ございません

最新情報を
確認する
3F

(B区画)

67.2 坪

222.15 ㎡

※現在空室情報はございません

※現在空室情報は
ございません

最新情報を
確認する
8F

(A区画)

65.48 坪

216.46 ㎡

※現在空室情報はございません

※現在空室情報は
ございません

最新情報を
確認する

お問い合わせ

必須
必須
必須
必須
必須

お問い合わせ

物件に関してのお問い合わせ

「失敗しないオフィス移転サポート」物件探しから移転までスムーズで担当者様がとにかく楽になるサービスです。

050-7587-0049平日 9:00~18:00

メールでお問い合わせ

フリーワード検索