マンションニュー本郷(物件No:23038117)
マンションニュー本郷は、文京区向丘にある地上14階建ての賃貸事務所です。最寄駅は東京メトロ南北線の東大前駅から徒歩1分です。1978年1月竣工の鉄骨鉄筋コンクリート造です。設備としては、トイレは室内男女共用です。最寄駅から近くて便利な文京区向丘の賃貸オフィスです。
| 階 | 面積 | 賃料 | 共益費 | 敷金 | 入居日 | お問合せ | お気に入り | |
|---|---|---|---|---|---|---|---|---|
| 
            
                2F
                                     (202区画)  | 
        
             22.99 坪 75.99 ㎡  | 
                    ※現在空室情報はございません | 
                 ※現在空室情報は 確認する  | 
            |||||
- 
                    
物件情報
 - 
                        
設備情報
- トイレ
 - 室内男女共用
 - 床
 - -
 - 空調
 - -
 - セキュリティ
 - -
 - 駐車場
 - -
 - 会議室
 - -
 - エレベーター
 - -
 - 天井高
 - -
 
 - 
                        
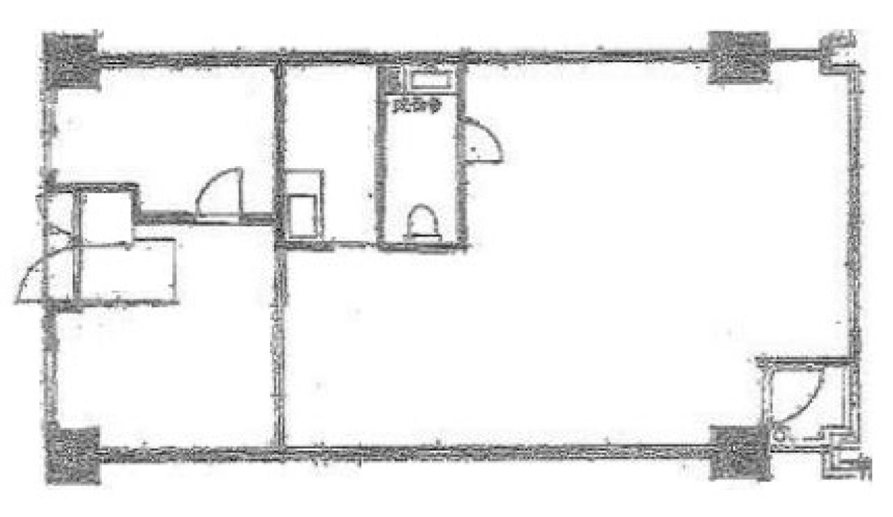
間取り図
 - 
                    
近隣相場情報
向丘2丁目(20~30坪)の相場
調査中
 
周辺施設情報
| コンビニ | 
                                                                                                                     セブンイレブン/文京向丘2丁目/200m(徒歩3分) リコス/西片2丁目店/400m(徒歩5分)  | 
                
|---|---|
| 郵便局/銀行 | 
                                                                                                                     ゆうちょ/文京向丘郵便局/[営業時間] [窓口]平日 9:00~16:00 土曜日 - 日曜日・休日 - [ATM]平日 9:00~18:00 土曜日 9:00~12:30 日曜日・休日 - [駐車場]なし [取扱]郵便/貯金/保険/ATM [備考]※新型コロナウイルス感染症の影響により、窓口業務、ATMを一時休止することが/50m(徒歩1分) イーネット/ファミリーマート文京向丘一丁目/[営業時間]0:00~24:00/350m(徒歩5分)  | 
                
| 飲食店 | 
                                                                                                                     ロールキャベツファクトリー(とろとろロールキャベツ専門店)/11時30分~14時00分、17時00分~22時00分/85m(徒歩1分) 玻璃家(ボーリージャー)/11時30分~15時00分、17時30分~22時30分/140m(徒歩2分)  | 
                
| カフェ | 
                                                                                                                     Rural Coffee/9時00分~18時00分/350m(徒歩4分) カフェ アグリ ワンオーワン/9時00分~18時00分/500m(徒歩6分)  | 
                
| コインパーキング | 
                                                                                     三井のリパーク/向丘2丁目第3 [料金] 全日 08:00~20:00 15分/200円 全日 20:00~08:00 60分/100円 [最大料金] 【全日】20:00~8:00以内 最大料金700円 【全日】最大料金入庫後24時間以内2300円 [台数]4 エコロパーク/エスポワールアオキ [料金] 全日 昼 8時~22時 15分300円 全日 夜 22時~8時 60分100円 [最大料金] 全日 24時間 最大2000円 [台数]3  | 
                
周辺地図
マンションニュー本郷は、文京区向丘にある地上14階建ての賃貸事務所です。最寄駅は東京メトロ南北線の東大前駅から徒歩1分です。1978年1月竣工の鉄骨鉄筋コンクリート造です。設備としては、トイレは室内男女共用です。最寄駅から近くて便利な文京区向丘の賃貸オフィスです。
全フロア情報
更新日:2023年1月10日
| 階 | 面積 | 賃料 | 共益費 | 敷金 | 入居日 | お問合せ | お気に入り | |
|---|---|---|---|---|---|---|---|---|
| 
            
                2F
                                     (202区画)  | 
        
             22.99 坪 75.99 ㎡  | 
                    ※現在空室情報はございません | 
                 ※現在空室情報は 確認する  | 
            |||||
お問い合わせ
似た条件の物件はこちら
- 
                    
                        
平林ビル
東京都文京区白山2-30-2
坪数:26 坪
坪単価:7,692 円(坪)
 - 
                    
                        
                        本駒込Kマンション
東京都文京区本駒込4-40-3
坪数:20.43 坪
坪単価:11,013 円(坪)
 - 
                    
                        
アーバン内田ビル
東京都文京区根津1-16-10
坪数:18.95 坪
坪単価:11,993 円(坪)
 - 
                    
                        
千石グリーンパーク
東京都文京区千石1-16-7
坪数:20.00 坪
坪単価:7,500 円(坪)
 - 
                    
                        
メゾンブロンシュ本駒込
東京都文京区本駒込5-20-4
坪数:18.55 坪
坪単価:18,868 円(坪)
 - 
                    
                        
                        SANSAN千石ビル
東京都文京区千石4-26-2
坪数:17.3 坪
坪単価:14,809 円(坪)
 - 
                    
                        
TRUST VALUE 千駄木
東京都文京区千駄木1-22-30
坪数:17.02 坪
坪単価:10,576 円(坪)
 - 
                    
                        
ルネ千駄木プラザ
東京都文京区千駄木2-13-1
坪数:19.27 坪
坪単価:9,341 円(坪)