島村ビル(物件No:22656952)
島村ビルは中央区日本橋人形町にある地下1階、地上5階建ての賃貸事務所です。最寄駅は東京メトロ日比谷線の人形町駅から徒歩1分、都営浅草線の人形町駅から徒歩1分です。1988年12月竣工の鉄筋コンクリート造です。設備としては、エレベーターが1基あります。空調は個別空調です。耐震設計となっている、最寄駅から近くて便利な中央区日本橋人形町の賃貸オフィスです。
| 階 | 面積 | 賃料 | 共益費 | 敷金 | 入居日 | お問合せ | お気に入り |
|---|---|---|---|---|---|---|---|
|
3F
(1区画) |
13.26 坪 43.83 ㎡ |
220,000 円 16,591 円(坪) |
込 |
1,320,000 円 6 ヶ月 |
即日 |
|
|
| 階 | 面積 | 賃料 | 共益費 | 敷金 | 入居日 | お問合せ | お気に入り |
|---|---|---|---|---|---|---|---|
|
3F
(1区画) |
13.26 坪 43.83 ㎡ |
220,000 円 16,591 円(坪) |
込 |
1,320,000 円 6 ヶ月 |
即日 |
|
|
-
物件情報
-
設備情報
- トイレ
- -
- 床
- -
- 空調
- 個別空調
- セキュリティ
- -
- 駐車場
- -
- 会議室
- -
- エレベーター
- 1基
- 天井高
- -
-
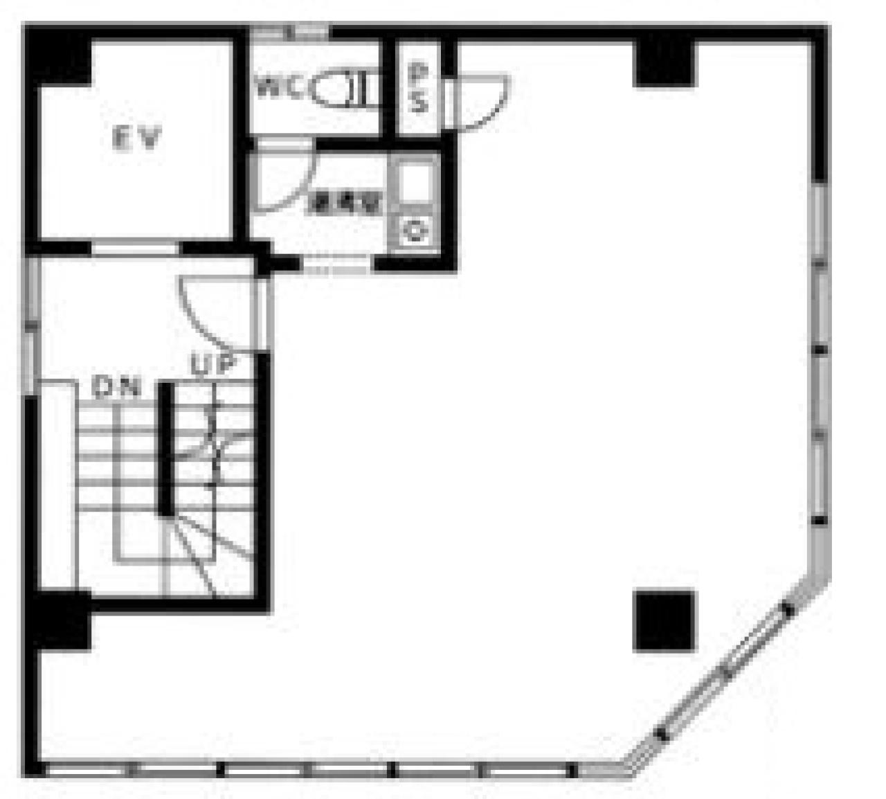
間取り図
-
近隣相場情報
日本橋人形町1丁目(20坪以下)の相場
14888 円 (坪)
※ビルサク調べ
周辺施設情報
| コンビニ |
ファミリーマート/日本橋人形町三丁目店/97m(徒歩1分) ローソン/人形町駅前/45m(徒歩1分) |
|---|---|
| 郵便局/銀行 |
ローソン銀行/人形町駅前共同出張所/[営業時間]24時間/45m(徒歩1分) イーネット/ファミリーマート日本橋人形町三丁目/[営業時間]0:00~24:00/97m(徒歩1分) |
| 飲食店 |
江戸路 人形町本店/11時20分~13時30分 17時00分~23時00分/7m(徒歩1分) 磯丸水産 人形町店/11時00分~5時00分/28m(徒歩1分) |
| カフェ |
カフェドクリエ/日本橋人形町/[営業時間][平 日] 6:45-22:00 [土日祝] (土)8:00-19:00 (日/祝)8:00-19:00/64m(徒歩1分) サンマルクカフェ/人形町店/[営業時間]7:00~23:00/85m(徒歩1分) |
| コインパーキング |
三井のリパーク/日本橋人形町3丁目第4 [料金] [料金]全日 08:00~22:00 12分/300円 全日 22:00~08:00 60分/100円 [最大料金] 最大料金 【全日】22:00~8:00以内 最大料金500円 [台数]1 三井のリパーク/日本橋人形町1丁目第4 [料金] [料金]全日 08:00~22:00 25分/300円 全日 22:00~08:00 60分/100円 [台数]3 |
周辺地図
島村ビルは中央区日本橋人形町にある地下1階、地上5階建ての賃貸事務所です。最寄駅は東京メトロ日比谷線の人形町駅から徒歩1分、都営浅草線の人形町駅から徒歩1分です。1988年12月竣工の鉄筋コンクリート造です。設備としては、エレベーターが1基あります。空調は個別空調です。耐震設計となっている、最寄駅から近くて便利な中央区日本橋人形町の賃貸オフィスです。
全フロア情報
更新日:2026年1月27日
| 階 | 面積 | 賃料 | 共益費 | 敷金 | 入居日 | お問合せ | お気に入り | |
|---|---|---|---|---|---|---|---|---|
| 3F |
100.99 坪 333.85 ㎡ |
※現在空室情報はございません |
※現在空室情報は 確認する |
|||||
|
3F
(1区画) |
13.26 坪 43.83 ㎡ |
220,000 円 16,591 円(坪) |
込 |
1,320,000 円 6 ヶ月 |
即日 |
|
|
|
お問い合わせ
似た条件の物件はこちら
-
グリーンパーク日本橋参番館
東京都中央区日本橋大伝馬町6-2
坪数:16.35 坪
坪単価:23,242 円(坪)
-
PORT ONE 茅場町
東京都中央区日本橋箱崎町5-15
坪数:16.75 坪
坪単価:24,000 円(坪)
-
和円ビル
東京都中央区日本橋久松町9-12
坪数:17.69 坪
坪単価:15,828 円(坪)
-
ハギワラビル
東京都中央区日本橋馬喰町2-5-18
坪数:17.7 坪
坪単価:10,000 円(坪)
-
小堀・橋本ビル
東京都中央区日本橋浜町3-31-4
坪数:17.28 坪
坪単価:7,523 円(坪)
-
イーストワン箱崎
東京都中央区日本橋箱崎町15-6
坪数:15.91 坪
坪単価:15,085 円(坪)
-
アネックス日本橋ビル
東京都中央区日本橋馬喰町2-4-6
坪数:16.6 坪
坪単価:10,000 円(坪)
-
第2南川ビル
東京都中央区日本橋小舟町4-11
坪数:17.02 坪
坪単価:12,000 円(坪)
-
浜町プログレスビル
東京都中央区日本橋浜町2-33-7
坪数:15.71 坪
坪単価:10,000 円(坪)
-
CICビル
東京都中央区日本橋人形町3-3-13
坪数:16.41 坪
坪単価:14,625 円(坪)
関連エリアから探す
- 日本橋大伝馬町
- 日本橋蛎殻町
- 日本橋小網町
- 日本橋小伝馬町
- 日本橋小舟町
- 日本橋富沢町
- 日本橋人形町
- 日本橋箱崎町
- 日本橋堀留町
- 日本橋中洲
- 日本橋馬喰町
- 日本橋浜町
- 日本橋久松町
- 日本橋横山町
- 東日本橋