Jingumae342(物件No:22592937)
Jingumae342は、渋谷区神宮前にある地下1階、地上7階建ての貸店舗/賃貸事務所です。最寄駅は東京メトロ銀座線の外苑前駅から徒歩6分です。2019年2月竣工の鉄骨鉄筋コンクリート造です。設備としては、エレベーターが1基あります。セキュリティは機械警備です。トイレは室内男女別です。空調は個別空調です。床仕様はフリーアクセスです。耐震設計となっている、ビジネス街として人気のある渋谷区神宮前の貸店舗/賃貸オフィスです。
-
物件情報
-
設備情報
- トイレ
- 室内男女別
- 床
- フリーアクセス
- 空調
- 個別空調
- セキュリティ
- 有
- 駐車場
- -
- 会議室
- -
- エレベーター
- 1基
- 天井高
- -
-
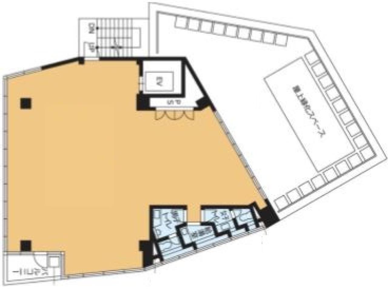
間取り図
-
近隣相場情報
神宮前3丁目(40~50坪)の相場
21750 円 (坪)
※ビルサク調べ
周辺施設情報
| コンビニ |
デイリーヤマザキ/神宮前店/100m(徒歩1分) ローソン/神宮前三丁目/300m(徒歩4分) |
|---|---|
| 郵便局/銀行 |
セブン銀行/神宮外苑西店/[営業時間]24時間営業 [備考]1 台/250m(徒歩3分) みずほ銀行/外苑前支店/[営業時間] [窓口]平日9:00~15:00 [ATM]平日 6:00~26:00 土曜日 8:00~22:00 日曜日 8:00~21:00 祝日・振替休日 8:00~21:00 備考 *月曜日の6:00~7:00はご利用いただけません/400m(徒歩5分) |
| 飲食店 |
エビイロ/18時00分~1時00分/73m(徒歩1分) ル・バーベック/11時30分~15時00分、17時00分~20時30分/65m(徒歩1分) |
| カフェ |
月光茶房/13時00分~21時00分/350m(徒歩4分) カフェリトルマジック原宿店/11時00分~18時00分/550m(徒歩7分) |
| コインパーキング |
KF-Park/表参道 [料金] 15分/300円(8-19時) 60分/100円(19-8時) [最大料金] 3H最大2,500円 夜間最大500円(19-8時) [台数]2台 GSパーク/青山通ビル [料金] 【全日】 時間割料金 07:00~22:00 30分 500円 [台数]16台 |
周辺地図
Jingumae342は、渋谷区神宮前にある地下1階、地上7階建ての貸店舗/賃貸事務所です。最寄駅は東京メトロ銀座線の外苑前駅から徒歩6分です。2019年2月竣工の鉄骨鉄筋コンクリート造です。設備としては、エレベーターが1基あります。セキュリティは機械警備です。トイレは室内男女別です。空調は個別空調です。床仕様はフリーアクセスです。耐震設計となっている、ビジネス街として人気のある渋谷区神宮前の貸店舗/賃貸オフィスです。
全フロア情報
更新日:2025年11月5日
| 階 | 面積 | 賃料 | 共益費 | 敷金 | 入居日 | お問合せ | お気に入り | |
|---|---|---|---|---|---|---|---|---|
| 3F |
44.02 坪 145.52 ㎡ |
※現在空室情報はございません |
※現在空室情報は 確認する |
|||||
| 4F |
44.02 坪 145.52 ㎡ |
※現在空室情報はございません |
※現在空室情報は 確認する |
|||||
| 5F |
44.02 坪 145.52 ㎡ |
※現在空室情報はございません |
※現在空室情報は 確認する |
|||||
| 6F |
44.02 坪 145.52 ㎡ |
※現在空室情報はございません |
※現在空室情報は 確認する |
|||||
| 7F |
44.76 坪 147.97 ㎡ |
※現在空室情報はございません |
※現在空室情報は 確認する |
|||||
お問い合わせ
似た条件の物件はこちら
-
冨貴ビル
東京都渋谷区神宮前6-9-1
坪数:47.25 坪
坪単価:27,937 円(坪)
-
倉島渋谷ビル
東京都渋谷区渋谷2-3-8
坪数:49.26 坪
坪単価:18,000 円(坪)
-
ステージ神宮前Ⅱ
東京都渋谷区神宮前2-12-2
坪数:53.34 坪
坪単価:20,000 円(坪)
-
桑原ビル
東京都渋谷区神宮前3-24-3
坪数:42.20 坪
坪単価:16,000 円(坪)
-
ABC-MART公園通りビル
東京都渋谷区神南1-20-9
坪数:39.22 坪
坪単価:33,000 円(坪)
-
グリーン・ファンタジアビル
東京都渋谷区神宮前1-11-11
坪数:36.11 坪
坪単価:13,847 円(坪)
-
いちご渋谷道玄坂ビル
東京都渋谷区円山町28-3
坪数:39.26 坪
坪単価:41,500 円(坪)
-
渋谷ふじみビルディング
東京都渋谷区東1-26-26
坪数:40.98 坪
坪単価:30,015 円(坪)
-
TMTビル
東京都渋谷区渋谷4-2-22
坪数:48.9 坪
坪単価:20,450 円(坪)
-
CIRCLES渋谷
東京都渋谷区渋谷2-9-8
坪数:34.55 坪
坪単価:38,000 円(坪)