南青山セピアコート(物件No:22564619)
南青山セピアコートは港区南青山にある地上10階建ての賃貸事務所です。最寄駅は東京メトロ銀座線の表参道駅から徒歩9分、東京メトロ千代田線の表参道駅から徒歩9分です。1979年4月竣工の鉄骨鉄筋コンクリート造です。設備としては、エレベーターが1基あります。セキュリティは有人警備です。トイレは室内です。空調は個別空調です。複数駅利用可能なアクセスの良い港区南青山の賃貸オフィスです。
| 階 | 面積 | 賃料 | 共益費 | 敷金 | 入居日 | お問合せ | お気に入り |
|---|---|---|---|---|---|---|---|
|
5F
(501区画) |
18.09 坪 59.8 ㎡ |
380,000 円 21,006 円(坪) |
20,000 円 1,106 円(坪) |
1,140,000 円 3 ヶ月 |
即日 |
|
|
| 階 | 面積 | 賃料 | 共益費 | 敷金 | 入居日 | お問合せ | お気に入り |
|---|---|---|---|---|---|---|---|
|
5F
(501区画) |
18.09 坪 59.8 ㎡ |
380,000 円 21,006 円(坪) |
20,000 円 1,106 円(坪) |
1,140,000 円 3 ヶ月 |
即日 |
|
|
-
物件情報
-
設備情報
- トイレ
- 室内男女共用
- 床
- カーペット
- 空調
- 個別空調
- セキュリティ
- 無
- 駐車場
- -
- 会議室
- -
- エレベーター
- 1基
- 天井高
- -
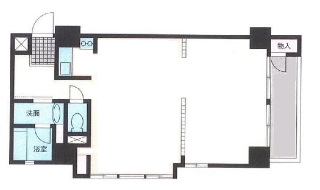
-
間取り図
-
近隣相場情報
南青山6丁目(20坪以下)の相場
23462 円 (坪)
※ビルサク調べ
周辺施設情報
| コンビニ |
ミニストップ/南青山6丁目店/81m(徒歩1分) ファミリーマート/西麻布三丁目店/700m(徒歩9分) |
|---|---|
| 郵便局/銀行 |
みずほ銀行/青山支店/[営業時間] [窓口]平日9:00~15:00 [ATM]平日 0:00~24:00 土曜日 0:00~22:00 日曜日 8:00~21:00 祝日・振替休日 曜日に準ずる 備考 *月曜日の0:00~7:00はご利用いただけません。*第1・第4土曜日の3:00~5:00はご利用いただけません [駐/900m(徒歩12分) イーネット/ファミリーマート南青山六丁目/[営業時間]0:00~24:00/91m(徒歩1分) |
| 飲食店 |
平良/11時30分~14時00分、18時00分~23時00分/250m(徒歩3分) 真/12時00分~13時30分、18時00分~23時00分/350m(徒歩5分) |
| カフェ |
Nezu Cafe/10時00分~17時00分/450m(徒歩5分) Fruits in Tea OMOTESANDO plus Superfood/10時30分~20時00分/850m(徒歩11分) |
| コインパーキング |
タイムズ駐車場/南青山5丁目第3 [料金] [全日]通常料金 / 00:00-00:00 10分 400円 [最大料金] [全日]22:00-06:00 最大料金600円 [台数]3 NPC24H/南青山6丁目 [料金] 30分/500円 [最大料金] 3時間毎 2000円 全日夜間 900円(19時~8時) [台数]2台 |
周辺地図
南青山セピアコートは港区南青山にある地上10階建ての賃貸事務所です。最寄駅は東京メトロ銀座線の表参道駅から徒歩9分、東京メトロ千代田線の表参道駅から徒歩9分です。1979年4月竣工の鉄骨鉄筋コンクリート造です。設備としては、エレベーターが1基あります。セキュリティは有人警備です。トイレは室内です。空調は個別空調です。複数駅利用可能なアクセスの良い港区南青山の賃貸オフィスです。
全フロア情報
更新日:2026年3月10日
| 階 | 面積 | 賃料 | 共益費 | 敷金 | 入居日 | お問合せ | お気に入り | |
|---|---|---|---|---|---|---|---|---|
|
4F
(402区画) |
17.83 坪 58.94 ㎡ |
※現在空室情報はございません |
※現在空室情報は 確認する |
|||||
|
5F
(501区画) |
18.09 坪 59.8 ㎡ |
380,000 円 21,006 円(坪) |
20,000 円 1,106 円(坪) |
1,140,000 円 3 ヶ月 |
即日 |
|
|
|
| 7F |
18.1 坪 59.83 ㎡ |
※現在空室情報はございません |
※現在空室情報は 確認する |
|||||
|
8F
(1区画) |
18.1 坪 59.83 ㎡ |
※現在空室情報はございません |
※現在空室情報は 確認する |
|||||
お問い合わせ
似た条件の物件はこちら
-
メゾン青山
東京都港区北青山2-7-26
坪数:18.75 坪
坪単価:20,267 円(坪)
-
たつむら青山マンション(青南吉川興産ビル)
東京都港区南青山5-4-35
坪数:21.29 坪
坪単価:21,982 円(坪)
-
KSビル
東京都港区南青山6-2-9
坪数:20.61 坪
坪単価:23,011 円(坪)
-
青山アレー
東京都港区南青山6-4-6
坪数:16.2 坪
坪単価:26,543 円(坪)
-
セントラル第二青山
東京都港区南青山4-1-1
坪数:20.09 坪
坪単価:15,630 円(坪)
-
南青山ユニハイツ
東京都港区南青山6-12-3
坪数:18.31 坪
坪単価:18,569 円(坪)
-
ティアック青山
東京都港区北青山3-10-21
坪数:16.52 坪
坪単価:22,397 円(坪)
-
リーラ乃木坂
東京都港区南青山1-15-18
坪数:17.2 坪
坪単価:18,000 円(坪)
-
クレアトゥール南青山
東京都港区南青山3-8-7
坪数:13.59 坪
坪単価:16,924 円(坪)