赤坂七番館(物件No:22526449)
赤坂七番館は、港区赤坂にある貸事務所物件です。最寄り駅は東京メトロ丸の内線、銀座線の赤坂見附駅、東京メトロ銀座線、南北線の溜池山王駅、東京メトロ銀座線、半蔵門線の青山一丁目駅、都営大江戸線の六本木駅、東京メトロ千代田線赤坂駅、乃木坂駅です。1978年竣工の賃貸オフィスビルです。空調は個別空調です。有人警備で、駐車場があり、エレベーターは2基あります。複数路線利用可能な、アクセスの良い港区赤坂の貸事務所です。
| 階 | 面積 | 賃料 | 共益費 | 敷金 | 入居日 | お問合せ | お気に入り |
|---|---|---|---|---|---|---|---|
|
4F
(406区画) |
14.86 坪 49.12 ㎡ |
230,000 円 15,478 円(坪) |
込 |
690,000 円 3 ヶ月 |
相談 |
|
|
| 階 | 面積 | 賃料 | 共益費 | 敷金 | 入居日 | お問合せ | お気に入り |
|---|---|---|---|---|---|---|---|
|
4F
(406区画) |
14.86 坪 49.12 ㎡ |
230,000 円 15,478 円(坪) |
込 |
690,000 円 3 ヶ月 |
相談 |
|
|
-
物件情報
-
設備情報
- トイレ
- 室内男女共用
- 床
- タイルカーペット
- 空調
- 個別空調
- セキュリティ
- -
- 駐車場
- 有
- 会議室
- -
- エレベーター
- 2基
- 天井高
- -
-
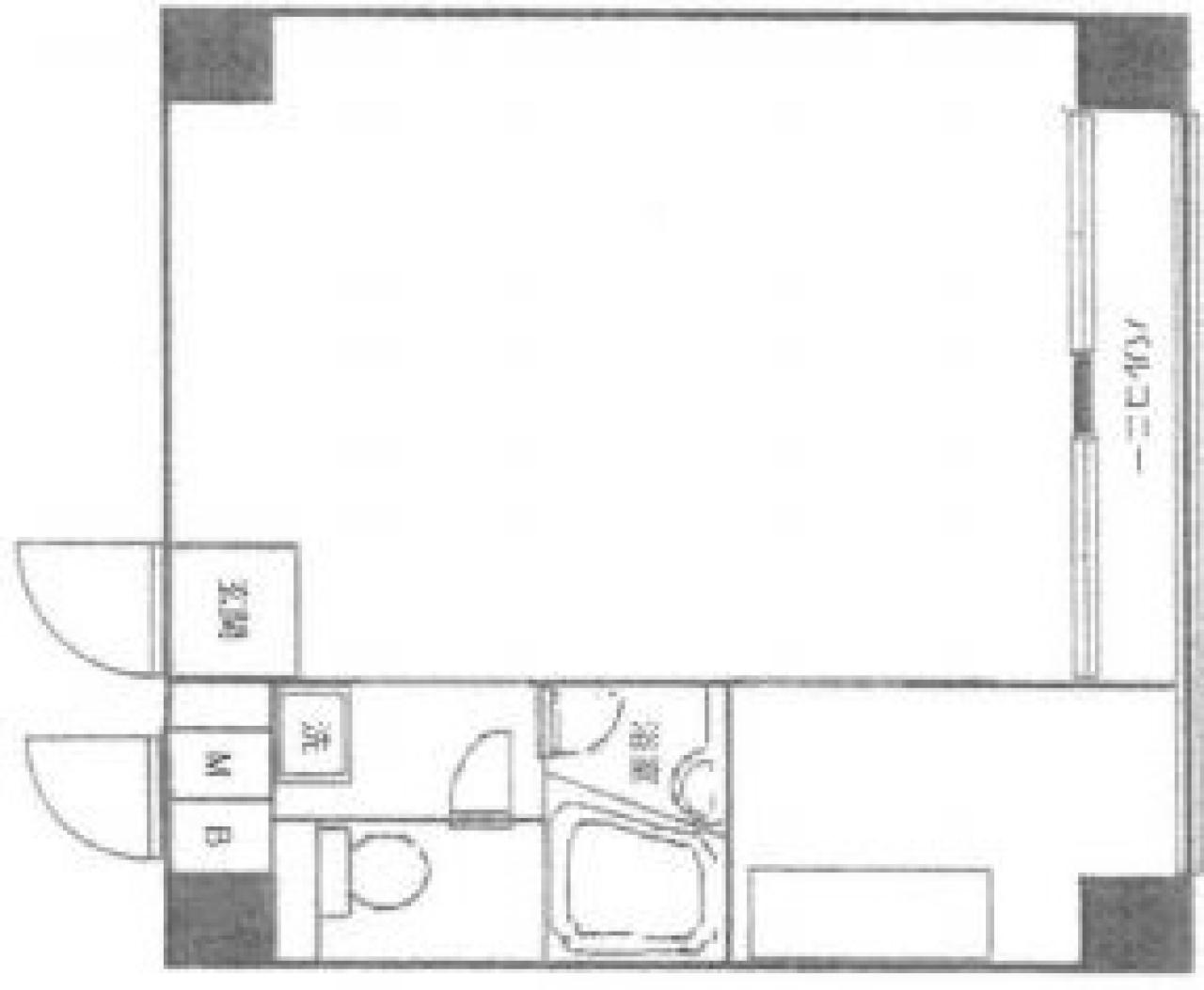
間取り図
-
近隣相場情報
赤坂7丁目(20坪以下)の相場
16128 円 (坪)
※ビルサク調べ
周辺施設情報
| コンビニ |
ファミリーマート/赤坂パークビル店/290m(徒歩4分) セブンイレブン/TBS放送センター/400m(徒歩5分) |
|---|---|
| 郵便局/銀行 |
郵便局/赤坂七/平日 9:00-17:00 土曜 - 日曜・祝日 - [ATM]平日 9:00~18:00 土曜 9:00~12:30 日曜・祝日 -/32m(徒歩1分) 三井住友銀行/ATM 東京メトロ赤坂駅出張所/[営業時間]平日 6:00~22:00 土曜日 6:00~22:00 日・祝日 6:00~21:00/450m(徒歩6分) |
| 飲食店 |
ピッツエリア リアナ 赤坂店/7時00分~10時00分、11時00分~23時00分/250m(徒歩3分) 赤坂 山ね家。/【月?金】18:00~22:00 【土】18:00?21:00/130m(徒歩2分) |
| カフェ |
スターバックス/赤坂Bizタワー店/[営業時間]07:00~21:00 [休業日]不定休 [備考]無線LAN:STARBUCKS/docomo/FLET’S(東)/Softbank/au/Wi2 300/700m(徒歩9分) エクセルシオール/カフェ 赤坂一ツ木通り店/[営業時間]平 日:07:00 - 23:00 土曜日:08:00 - 21:00 日 祝:08:00 - 20:00 [休業日]なし [備考]総席数:64 禁煙席:25 喫煙席:39/700m(徒歩9分) |
| コインパーキング |
三井のリパーク/赤坂7丁目第3 [料金] 全日 00:00~24:00 25分/400円 [台数]1 パークジャパン/赤坂7丁目第2 [料金] 8:00~24:00 100円/10分 24:00~8:00 100円/60分 [最大料金] 最大料金24時間2,300円 [台数]2台 |
周辺地図
赤坂七番館は、港区赤坂にある貸事務所物件です。最寄り駅は東京メトロ丸の内線、銀座線の赤坂見附駅、東京メトロ銀座線、南北線の溜池山王駅、東京メトロ銀座線、半蔵門線の青山一丁目駅、都営大江戸線の六本木駅、東京メトロ千代田線赤坂駅、乃木坂駅です。1978年竣工の賃貸オフィスビルです。空調は個別空調です。有人警備で、駐車場があり、エレベーターは2基あります。複数路線利用可能な、アクセスの良い港区赤坂の貸事務所です。
全フロア情報
更新日:2025年12月8日
| 階 | 面積 | 賃料 | 共益費 | 敷金 | 入居日 | お問合せ | お気に入り | |
|---|---|---|---|---|---|---|---|---|
|
1F
(1区画) |
28 坪 92.55 ㎡ |
※現在空室情報はございません |
※現在空室情報は 確認する |
|||||
|
1F
(108区画) |
14.86 坪 49.12 ㎡ |
※現在空室情報はございません |
※現在空室情報は 確認する |
|||||
|
3F
(301区画) |
26.84 坪 88.73 ㎡ |
※現在空室情報はございません |
※現在空室情報は 確認する |
|||||
|
4F
(406区画) |
14.86 坪 49.12 ㎡ |
230,000 円 15,478 円(坪) |
込 |
690,000 円 3 ヶ月 |
相談 |
|
|
|
|
4F
(409区画) |
15.38 坪 50.83 ㎡ |
※現在空室情報はございません |
※現在空室情報は 確認する |
|||||
|
5F
(503区画) |
17.27 坪 57.08 ㎡ |
※現在空室情報はございません |
※現在空室情報は 確認する |
|||||
お問い合わせ
似た条件の物件はこちら
-
SP赤坂ビル
東京都港区赤坂3-15-10
坪数:16.25 坪
坪単価:26,462 円(坪)
-
赤坂Kマンション
東京都港区赤坂2-15-7
坪数:15.81 坪
坪単価:16,302 円(坪)
-
第4文成ビル
東京都港区赤坂7-10-9
坪数:17 坪
坪単価:20,000 円(坪)
-
AKASAKA8 BLDG.
東京都港区赤坂8-8-10
坪数:10.57 坪
坪単価:13,245 円(坪)
-
赤坂余湖ビル
東京都港区赤坂4-8-6
坪数:18.48 坪
坪単価:15,000 円(坪)
-
氷川アネックス2号館
東京都港区赤坂6-9-5
坪数:14.89 坪
坪単価:13,298 円(坪)
-
ゴールド赤坂
東京都港区赤坂3-12-11
坪数:17.58 坪
坪単価:23,891 円(坪)
-
赤坂栄ビル
東京都港区赤坂6-6-4
坪数:14.97 坪
坪単価:10,488 円(坪)
-
笠松千代田ビル
東京都千代田区永田町2-17-4
坪数:11.42 坪
坪単価:23,993 円(坪)
-
アークヒルズエグゼクティブタワー
東京都港区赤坂1-14-5
坪数:15.6 坪
坪単価:21,562 円(坪)