日宣神田第2ビル(物件No:22341556)
日宣神田第2ビルは、千代田区神田司町にある貸事務所物件です。最寄り駅は、JR線、東京メトロ銀座線の神田駅、東京メトロ丸ノ内線の淡路町駅、都営新宿線の小川町駅、東京メトロ千代田線の新御茶ノ水駅です。2016年竣工で、基準階が60.79坪の賃貸オフィスビルです。床はOAフロアとなっております。空調は個別空調で、トイレは男女別です。エレベーターは2基あります。複数路線利用可能な、アクセスの良い千代田区神田司町の貸事務所です。
-
物件情報
-
設備情報
- トイレ
- 男女別
- 床
- フリーアクセス
- 空調
- 個別空調
- セキュリティ
- 有
- 駐車場
- 無
- 会議室
- -
- エレベーター
- 2基
- 天井高
- 2700mm
-
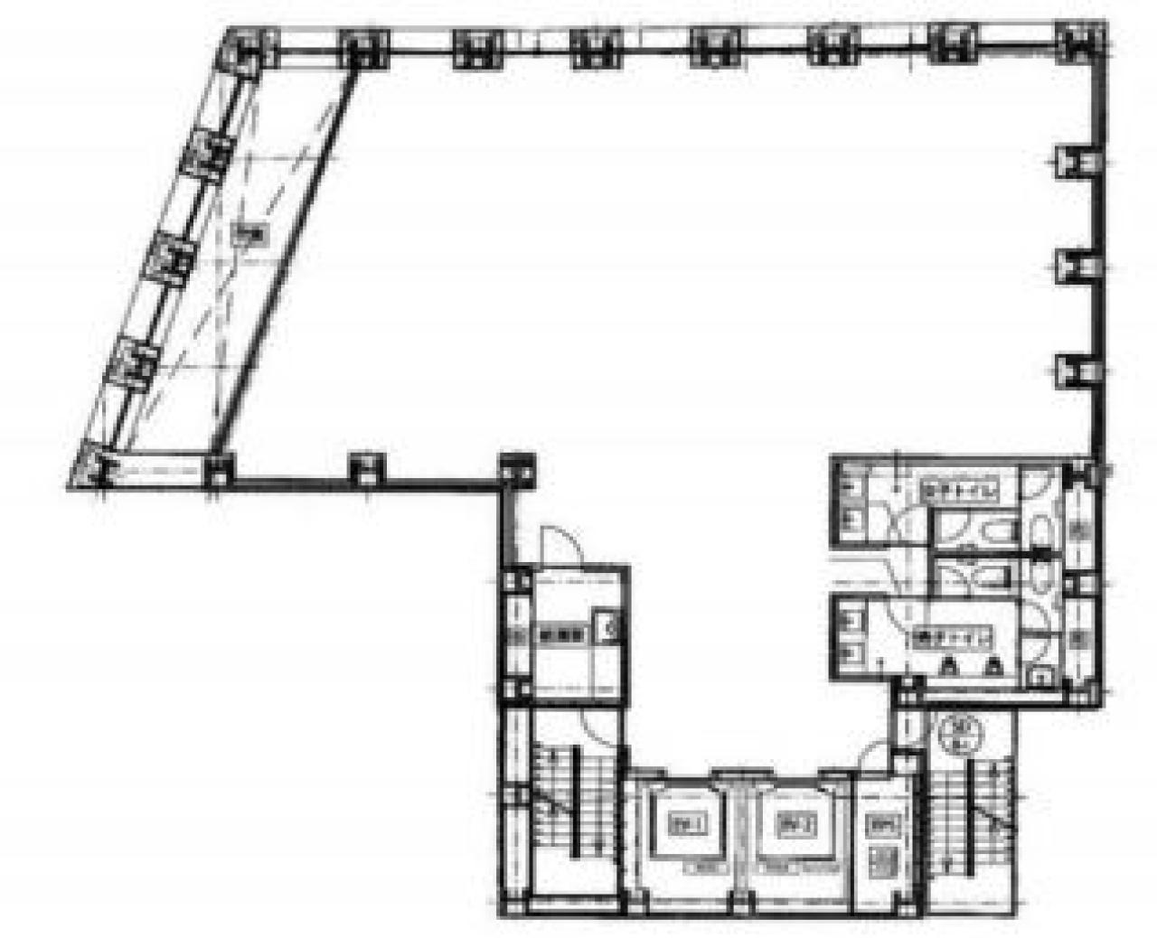
間取り図
-
近隣相場情報
神田司町2丁目(50~100坪)の相場
30000 円 (坪)
※ビルサク調べ
周辺施設情報
| コンビニ |
ファミリーマート/神田須田町一丁目店/260m(徒歩3分) セブンイレブン/神田須田町中央通り/450m(徒歩6分) |
|---|---|
| 郵便局/銀行 |
セブン銀行/神田須田町1丁目店/[営業時間]24時間営業 [備考]1 台/150m(徒歩2分) みずほ銀行/神田支店/[営業時間] [窓口]平日9:00~15:00 [ATM]平日 6:00~26:00 土曜日 8:00~22:00 日曜日 8:00~21:00 祝日・振替休日 8:00~21:00 備考 *月曜日の6:00~7:00はご利用いただけません [駐車場]日幸神田ビル駐車場/140m(徒歩2分) |
| 飲食店 |
随苑/11時00分~15時00分,17時00分~23時30分/170m(徒歩2分) 満月廬 淡路町バル/11時30分~23時00分/200m(徒歩2分) |
| カフェ |
スターバックス/淡路町駅前店/[営業時間]月~金:7:00~22:00 土:8:00~22:00 日祝:8:00~21:00 [休業日]不定休 [備考]無線LAN:STARBUCKS/docomo/au/Wi2 300/220m(徒歩3分) ドトール/神田淡路町店 /[営業時間]※営業時間を短縮しております。(~16:00)■通常営業時間 平日 7:00~21:00 土曜 7:30~19:00 日祝 8:00~19:00 [備考]総席数:38(禁煙席:30 喫煙席:8)/喫煙席(加熱) /150m(徒歩2分) |
| コインパーキング |
三井のリパーク/神田錦町第6 [料金] 全日 07:00~22:00 15分/300円 全日 22:00~07:00 60分/100円 [最大料金] 【全日】入庫後3時間以内2400円 【全日】4番から7番入庫後3時間以内1800円 [台数]7 タイムズ/内神田第12 [料金] [月~土]通常料金 / 0:00~0:00 15分 440円 [日・祝]通常料金 / 0:00~0:00 15分 440円 [最大料金] [月~土]8:00~19:00 最大料金4200円 19:00~8:00 最大料金500円 [日・祝]8:00~19:00 最大料金1800円 19:00~8:00 最大料金500円 [台数]4 |
周辺地図
日宣神田第2ビルは、千代田区神田司町にある貸事務所物件です。最寄り駅は、JR線、東京メトロ銀座線の神田駅、東京メトロ丸ノ内線の淡路町駅、都営新宿線の小川町駅、東京メトロ千代田線の新御茶ノ水駅です。2016年竣工で、基準階が60.79坪の賃貸オフィスビルです。床はOAフロアとなっております。空調は個別空調で、トイレは男女別です。エレベーターは2基あります。複数路線利用可能な、アクセスの良い千代田区神田司町の貸事務所です。
全フロア情報
更新日:2025年10月31日
| 階 | 面積 | 賃料 | 共益費 | 敷金 | 入居日 | お問合せ | お気に入り | |
|---|---|---|---|---|---|---|---|---|
| 2F |
55.21 坪 182.51 ㎡ |
※現在空室情報はございません |
※現在空室情報は 確認する |
|||||
| 3F |
60.79 坪 200.96 ㎡ |
※現在空室情報はございません |
※現在空室情報は 確認する |
|||||
お問い合わせ
似た条件の物件はこちら
-
大手町ゲートビルディング
東京都千代田区内神田1-31-11
坪数:48.55 坪
坪単価:70,031 円(坪)
-
M&Cビル
東京都千代田区神田小川町2-3-13
坪数:62.21 坪
坪単価:14,500 円(坪)
-
新八光ビル
東京都千代田区内神田3-22-9
坪数:44.17 坪
坪単価:20,000 円(坪)
-
ACN神田司町ビル
東京都千代田区神田司町2-7-1
坪数:59.04 坪
坪単価:30,000 円(坪)
-
藤和内神田ビル
東京都千代田区内神田2-4-4
坪数:44.42 坪
坪単価:13,997 円(坪)
-
石川興産ビル
東京都千代田区外神田4-7-5
坪数:40.2 坪
坪単価:15,500 円(坪)
-
楠本第18ビル
東京都千代田区内神田1-2-7
坪数:41.91 坪
坪単価:16,000 円(坪)
-
村田ビルディング
東京都千代田区神田駿河台2-5
坪数:66.61 坪
坪単価:21,000 円(坪)
-
冨士エレベータービル
東京都千代田区内神田3-4-6
坪数:61.85 坪
坪単価:17,600 円(坪)
-
Cocoro Kanda Bldg.
東京都千代田区神田須田町2-2-5
坪数:44.15 坪
坪単価:30,000 円(坪)
関連エリアから探す
- 内神田
- 神田淡路町
- 神田小川町
- 神田鍛冶町
- 神田須田町
- 神田駿河台
- 神田多町
- 神田司町
- 神田錦町
- 神田美土代町
- 岩本町
- 鍛冶町
- 神田岩本町
- 神田北乗物町
- 神田紺屋町
- 神田富山町
- 神田西福田町
- 神田東松下町
- 神田東紺屋町
- 神田美倉町
- 東神田
- 神田相生町
- 神田和泉町
- 神田佐久間町
- 神田佐久間河岸
- 神田練塀町
- 神田花岡町
- 神田松永町
- 外神田
- 神田平河町