メッツ青葉台(物件No:22124489)
メッツ青葉台は、目黒区青葉台にある貸事務所物件です。最寄り駅は、東急田園都市線の池尻大橋駅、京王井の頭線の神泉駅、駒場東大前駅、東急東横線の中目黒駅、東京メトロ日比谷線の中目黒駅です。2004年竣工の賃貸オフィスビルです。空調は個別空調で、エレベーターは1基あります。複数路線利用可能な、アクセスの良い目黒区青葉台の貸事務所です。
| 階 | 面積 | 賃料 | 共益費 | 敷金 | 入居日 | お問合せ | お気に入り | |
|---|---|---|---|---|---|---|---|---|
|
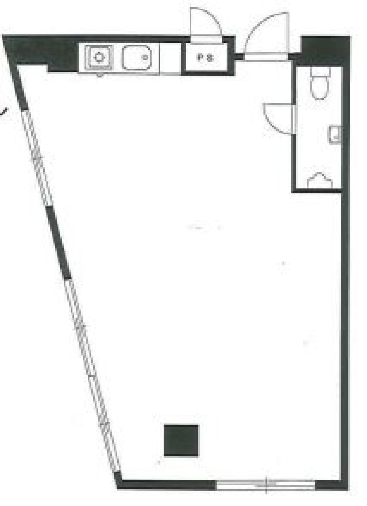
2F
(201区画) |
16.03 坪 53 ㎡ |
※現在空室情報はございません |
※現在空室情報は 確認する |
|||||
-
物件情報
-
設備情報
- トイレ
- -
- 床
- -
- 空調
- 個別空調
- セキュリティ
- -
- 駐車場
- -
- 会議室
- -
- エレベーター
- 1基
- 天井高
- -
-
間取り図
-
近隣相場情報
青葉台4丁目(20坪以下)の相場
21741 円 (坪)
※ビルサク調べ
周辺地図
メッツ青葉台は、目黒区青葉台にある貸事務所物件です。最寄り駅は、東急田園都市線の池尻大橋駅、京王井の頭線の神泉駅、駒場東大前駅、東急東横線の中目黒駅、東京メトロ日比谷線の中目黒駅です。2004年竣工の賃貸オフィスビルです。空調は個別空調で、エレベーターは1基あります。複数路線利用可能な、アクセスの良い目黒区青葉台の貸事務所です。
全フロア情報
更新日:2025年10月29日
| 階 | 面積 | 賃料 | 共益費 | 敷金 | 入居日 | お問合せ | お気に入り | |
|---|---|---|---|---|---|---|---|---|
|
2F
(201区画) |
16.03 坪 53 ㎡ |
※現在空室情報はございません |
※現在空室情報は 確認する |
|||||
お問い合わせ
似た条件の物件はこちら
-
KSビル
東京都目黒区大橋1-2-5
坪数:18.7 坪
坪単価:13,000 円(坪)
-
そうめい堂ビル
東京都目黒区青葉台4-5-2
坪数:17.56 坪
坪単価:14,237 円(坪)
-
aobadai .hillz
東京都目黒区青葉台3-13-14
坪数:16.2 坪
坪単価:18,855 円(坪)
-
中目黒FSビル
東京都目黒区中目黒3-6-2
坪数:19.98 坪
坪単価:30,030 円(坪)
-
ブルックスビルディング
東京都目黒区青葉台1-28-11
坪数:20.51 坪
坪単価:14,627 円(坪)
-
I.W.Place Aobadai
東京都目黒区青葉台4-7-4
坪数:18.4 坪
坪単価:27,000 円(坪)
-
ドミナーレサクマ
東京都目黒区駒場1-26-10
坪数:15.13 坪
坪単価:9,796 円(坪)
-
エースビル
東京都目黒区中目黒4-5-1
坪数:12.75 坪
坪単価:15,686 円(坪)
-
フォートレス渋谷(ショウワビル)
東京都目黒区青葉台4-4-25
坪数:19.34 坪
坪単価:18,097 円(坪)
-
青葉台POINT
東京都目黒区青葉台3-9-11
坪数:16.1 坪
坪単価:18,012 円(坪)