鹿児島ビル(物件No:21987193)
鹿児島ビルは、中央区日本橋にある貸事務所物件です。最寄り駅は、東京メトロ銀座線、東京メトロ東西線の日本橋駅、都営浅草線の宝町駅です。1980年竣工で、基準階が61.76坪の賃貸オフィスビルです。空調は個別空調で、トイレは男女別です。機械警備で、エレベーターは1基あります。複数路線利用可能な、アクセスの良い中央区日本橋の貸事務所です。
| 階 | 面積 | 賃料 | 共益費 | 敷金 | 入居日 | お問合せ | お気に入り |
|---|---|---|---|---|---|---|---|
| 10F |
47.42 坪 156.76 ㎡ |
相談 |
無 |
12ヶ月 |
2026/05 |
|
|
| 階 | 面積 | 賃料 | 共益費 | 敷金 | 入居日 | お問合せ | お気に入り |
|---|---|---|---|---|---|---|---|
| 10F |
47.42 坪 156.76 ㎡ |
相談 |
無 |
12ヶ月 |
2026/05 |
|
|
-
物件情報
-
設備情報
- トイレ
- 男女別
- 床
- -
- 空調
- 個別空調
- セキュリティ
- 有
- 駐車場
- 有
- 会議室
- -
- エレベーター
- 1基
- 天井高
- -
-
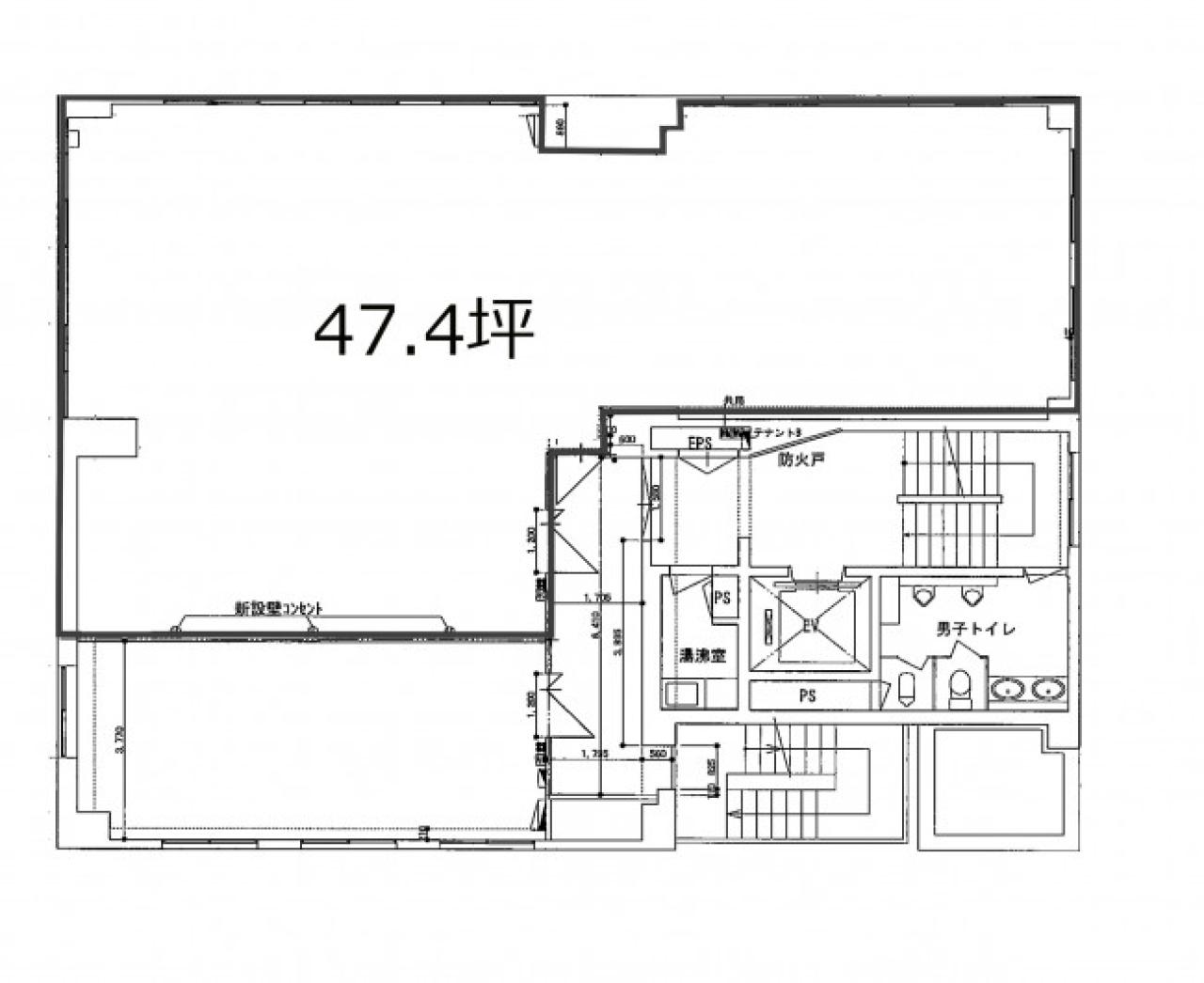
間取り図
-
近隣相場情報
日本橋3丁目(40~50坪)の相場
21795 円 (坪)
※ビルサク調べ
周辺施設情報
| コンビニ |
ローソン/ナチュラル 京橋一丁目/210m(徒歩3分) ローソン/H八丁堀一丁目/200m(徒歩3分) |
|---|---|
| 郵便局/銀行 |
鹿児島銀行/東京支店/[営業時間]平日 09:00~15:00 土曜 - 日祝 - ATM 平日 09:00~15:00 土曜 - 日祝 -/4m(徒歩1分) 東日本銀行/本店営業部/[営業時間] [窓口]平日 9:00~15:00 [ATM]平日 8:00~21:00 土曜 8:00~21:00 日祝 8:00~21:00 /140m(徒歩2分) |
| 飲食店 |
漁火/11時00分~13時30分 17時00分~23時00分/180m(徒歩3分) 博多麺酒房マルヨ/10時30分~1時00分/110m(徒歩2分) |
| カフェ |
ベローチェ/八丁堀一丁目店/[営業時間]7:00~22:00(土・日・祝7:00~21:00)/140m(徒歩2分) プロント/日本橋三丁目店/[営業時間]平日:カフェ 7:00~17:30 バー 17:30~22:00/69m(徒歩1分) |
| コインパーキング |
三井のリパーク/日本橋3丁目第2 [料金] [料金]平日 08:00~22:00 15分/400円 平日 22:00~08:00 60分/200円 [料金]日祝 08:00~22:00 15分/400円 日祝 22:00~08:00 60分/200円 [最大料金] [料金]最大料金 【日祝】8:00~22:00以内 最大料金2000円 [台数]2 ザ・パーク/八丁堀2丁目第1 [料金] [料金]8:00~20:00 20分400円 [最大料金] 平日・土曜最大3,600円 日・祝日最大1,000円 20:00~8:00 60分100円 最大500円(夜間全日) [台数]4 |
周辺地図
鹿児島ビルは、中央区日本橋にある貸事務所物件です。最寄り駅は、東京メトロ銀座線、東京メトロ東西線の日本橋駅、都営浅草線の宝町駅です。1980年竣工で、基準階が61.76坪の賃貸オフィスビルです。空調は個別空調で、トイレは男女別です。機械警備で、エレベーターは1基あります。複数路線利用可能な、アクセスの良い中央区日本橋の貸事務所です。
全フロア情報
更新日:2025年12月16日
| 階 | 面積 | 賃料 | 共益費 | 敷金 | 入居日 | お問合せ | お気に入り | |
|---|---|---|---|---|---|---|---|---|
| 1F |
10.74 坪 35.5 ㎡ |
※現在空室情報はございません |
※現在空室情報は 確認する |
|||||
| 8F |
46.73 坪 154.48 ㎡ |
※現在空室情報はございません |
※現在空室情報は 確認する |
|||||
| 9F |
61.76 坪 204.16 ㎡ |
※現在空室情報はございません |
※現在空室情報は 確認する |
|||||
| 10F |
47.42 坪 156.76 ㎡ |
相談 |
無 |
12ヶ月 |
2026/05 |
|
|
|
お問い合わせ
似た条件の物件はこちら
-
キムラヤビル
東京都中央区京橋2-5-22
坪数:40.18 坪
坪単価:19,300 円(坪)
-
仁大ビル
東京都中央区京橋2-8-21
坪数:42.03 坪
坪単価:32,000 円(坪)
-
金葉ビル
東京都中央区京橋1-6-13
坪数:43.25 坪
坪単価:20,000 円(坪)
-
サカキビル
東京都中央区京橋2-12-12
坪数:40.5 坪
坪単価:15,500 円(坪)
-
依田忠ビル
東京都中央区京橋1-14-9
坪数:53 坪
坪単価:14,003 円(坪)
-
八重洲山川ビル
東京都中央区日本橋3-3-3
坪数:45.7 坪
坪単価:22,000 円(坪)
-
新槇町ビル
東京都中央区八重洲1-8-17
坪数:37 坪
坪単価:55,000 円(坪)
-
斉藤ビル
東京都中央区京橋3-14-6
坪数:49.82 坪
坪単価:15,000 円(坪)
-
朝日ビルヂング
東京都中央区日本橋3-12-2
坪数:51.33 坪
坪単価:17,500 円(坪)
-
タンペイ日本橋ビル
東京都中央区日本橋3-7-10
坪数:45.5 坪
坪単価:18,182 円(坪)