不動商事本社ビル(物件No:21987038)
不動商事本社ビルは、千代田区神田多町にある地上8階建ての賃貸オフィスです。最寄駅は東京メトロ丸ノ内線の淡路町駅から徒歩4分、都営新宿線の小川町駅から徒歩4分、JR線の神田駅から徒歩3分、東京メトロ銀座線の神田駅から徒歩3分です。1985年7月竣工の鉄骨鉄筋コンクリート造です。設備としては、エレベーターが1基あります。セキュリティは機械警備です。トイレは室内男女別です。空調は個別空調です。床仕様はフリーアクセスです。天高は2430mmあります。耐震設計となっている、複数駅利用可能なアクセスの良い千代田区神田多町の賃貸事務所です。
-
物件情報
-
設備情報
- トイレ
- 男女別
- 床
- -
- 空調
- 個別空調
- セキュリティ
- 有
- 駐車場
- 無
- 会議室
- -
- エレベーター
- 1基
- 天井高
- -
-
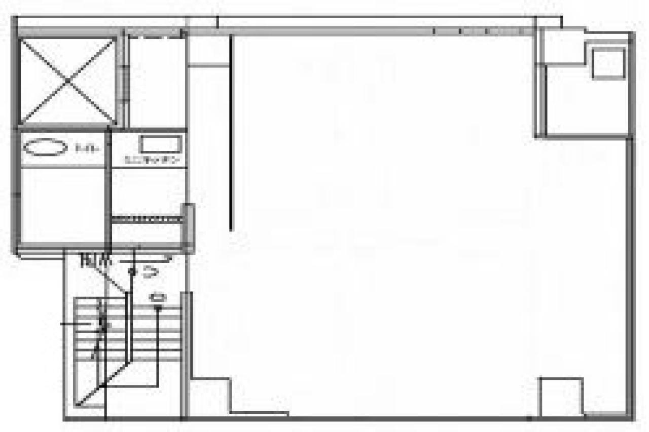
間取り図
-
近隣相場情報
神田多町2丁目(20~30坪)の相場
13750 円 (坪)
※ビルサク調べ
周辺施設情報
| コンビニ |
ファミリーマート/神田司町店/260m(徒歩3分) セブンイレブン/神田駅北口/300m(徒歩4分) |
|---|---|
| 郵便局/銀行 |
イーネット/ファミリーマート神田駅北/[営業時間]0:00~24:00/110m(徒歩1分) 長野銀行/東京支店/[営業時間] [窓口]平日 9時00分~15時00分 土 - 日祝 -/350m(徒歩4分) |
| 飲食店 |
八ツ手屋/11時00分~14時00分/160m(徒歩2分) まないた/11時30分~14時00分、17時30分~22時00分/78m(徒歩1分) |
| カフェ |
プロント/神田グランドセントラルホテル店/[営業時間]平日:カフェ 6:45~16:00 土曜:カフェ 6:45~10:00 日曜:カフェ 6:45~10:00 祝日:カフェ 6:45~10:00 緊急事態宣言により営業時間を変更いたします。解除後に通常営業を予定しております [休業日]無休 [備考]81席/分煙(禁煙席/加熱式たばこ専用席/喫煙ブース)/200m(徒歩3分) クリスティ/11時30分~14時30分、17時00分~21時00分/47m(徒歩1分) |
| コインパーキング |
タイムズ/神田多町第3 [料金] [月~土]通常料金 / 0:00~0:00 20分 440円 [日・祝]通常料金 / 0:00~0:00 20分 440円 [最大料金] [月~土]22:00~8:00 最大料金550円 [日・祝]8:00~22:00 最大料金1650円 22:00~8:00 最大料金550円 [台数]2 NTTル・パルク/神田バイク第1 [料金] オールタイム 60分/200円 [最大料金] 駐車後24時間以内 700円(1回限り) (24時間経過後は通常料金が加算されます) [台数]:6台 |
周辺地図
不動商事本社ビルは、千代田区神田多町にある地上8階建ての賃貸オフィスです。最寄駅は東京メトロ丸ノ内線の淡路町駅から徒歩4分、都営新宿線の小川町駅から徒歩4分、JR線の神田駅から徒歩3分、東京メトロ銀座線の神田駅から徒歩3分です。1985年7月竣工の鉄骨鉄筋コンクリート造です。設備としては、エレベーターが1基あります。セキュリティは機械警備です。トイレは室内男女別です。空調は個別空調です。床仕様はフリーアクセスです。天高は2430mmあります。耐震設計となっている、複数駅利用可能なアクセスの良い千代田区神田多町の賃貸事務所です。
全フロア情報
更新日:2025年10月31日
| 階 | 面積 | 賃料 | 共益費 | 敷金 | 入居日 | お問合せ | お気に入り | |
|---|---|---|---|---|---|---|---|---|
| 1F |
16.9 坪 55.87 ㎡ |
※現在空室情報はございません |
※現在空室情報は 確認する |
|||||
|
2F
(1区画) |
23.05 坪 76.2 ㎡ |
※現在空室情報はございません |
※現在空室情報は 確認する |
|||||
| 3F |
23.05 坪 76.2 ㎡ |
※現在空室情報はございません |
※現在空室情報は 確認する |
|||||
|
4F
(1区画) |
25 坪 82.64 ㎡ |
※現在空室情報はございません |
※現在空室情報は 確認する |
|||||
| 6F |
23.05 坪 76.2 ㎡ |
※現在空室情報はございません |
※現在空室情報は 確認する |
|||||
お問い合わせ
似た条件の物件はこちら
-
大手町ゲートビルディング
東京都千代田区内神田1-31-11
坪数:34.8 坪
坪単価:70,402 円(坪)
-
日光ビル
東京都千代田区神田小川町1-1-4
坪数:34.94 坪
坪単価:15,000 円(坪)
-
M&Cビル
東京都千代田区神田小川町2-3-13
坪数:34.42 坪
坪単価:15,500 円(坪)
-
新八光ビル
東京都千代田区内神田3-22-9
坪数:31.7 坪
坪単価:20,000 円(坪)
-
早川ビル
東京都千代田区岩本町3-7-13
坪数:16.46 坪
坪単価:10,000 円(坪)
-
第八東誠ビル
東京都千代田区岩本町2-11-3
坪数:25.82 坪
坪単価:12,000 円(坪)
-
神田中沢ビル
東京都千代田区外神田6-14-12
坪数:28.5 坪
坪単価:10,526 円(坪)
-
新東ビル
東京都千代田区内神田2-8-3
坪数:21.5 坪
坪単価:12,000 円(坪)
-
神田乗物町ビル
東京都千代田区神田北乗物町2
坪数:16.5 坪
坪単価:12,000 円(坪)
-
いちご大手町ノースビル
東京都千代田区内神田1-15-7
坪数:31.89 坪
坪単価:29,000 円(坪)
関連エリアから探す
- 内神田
- 神田淡路町
- 神田小川町
- 神田鍛冶町
- 神田須田町
- 神田駿河台
- 神田多町
- 神田司町
- 神田錦町
- 神田美土代町
- 岩本町
- 鍛冶町
- 神田岩本町
- 神田北乗物町
- 神田紺屋町
- 神田富山町
- 神田西福田町
- 神田東松下町
- 神田東紺屋町
- 神田美倉町
- 東神田
- 神田相生町
- 神田和泉町
- 神田佐久間町
- 神田佐久間河岸
- 神田練塀町
- 神田花岡町
- 神田松永町
- 外神田
- 神田平河町