杉浦ビル(物件No:21984117)
杉浦ビルは、文京区本郷にある貸事務所物件です。最寄駅は、JR、都営三田線水道橋駅、東京メトロ丸ノ内線本郷三丁目駅、南北線後楽園駅です。1972年竣工の賃貸オフィスビルです。トイレは室内で、エレベーターは1基あります。複数路線利用可能で交通アクセスの良い、文京区本郷の貸事務所です。
| 階 | 面積 | 賃料 | 共益費 | 敷金 | 入居日 | お問合せ | お気に入り |
|---|---|---|---|---|---|---|---|
|
4F
(1区画) |
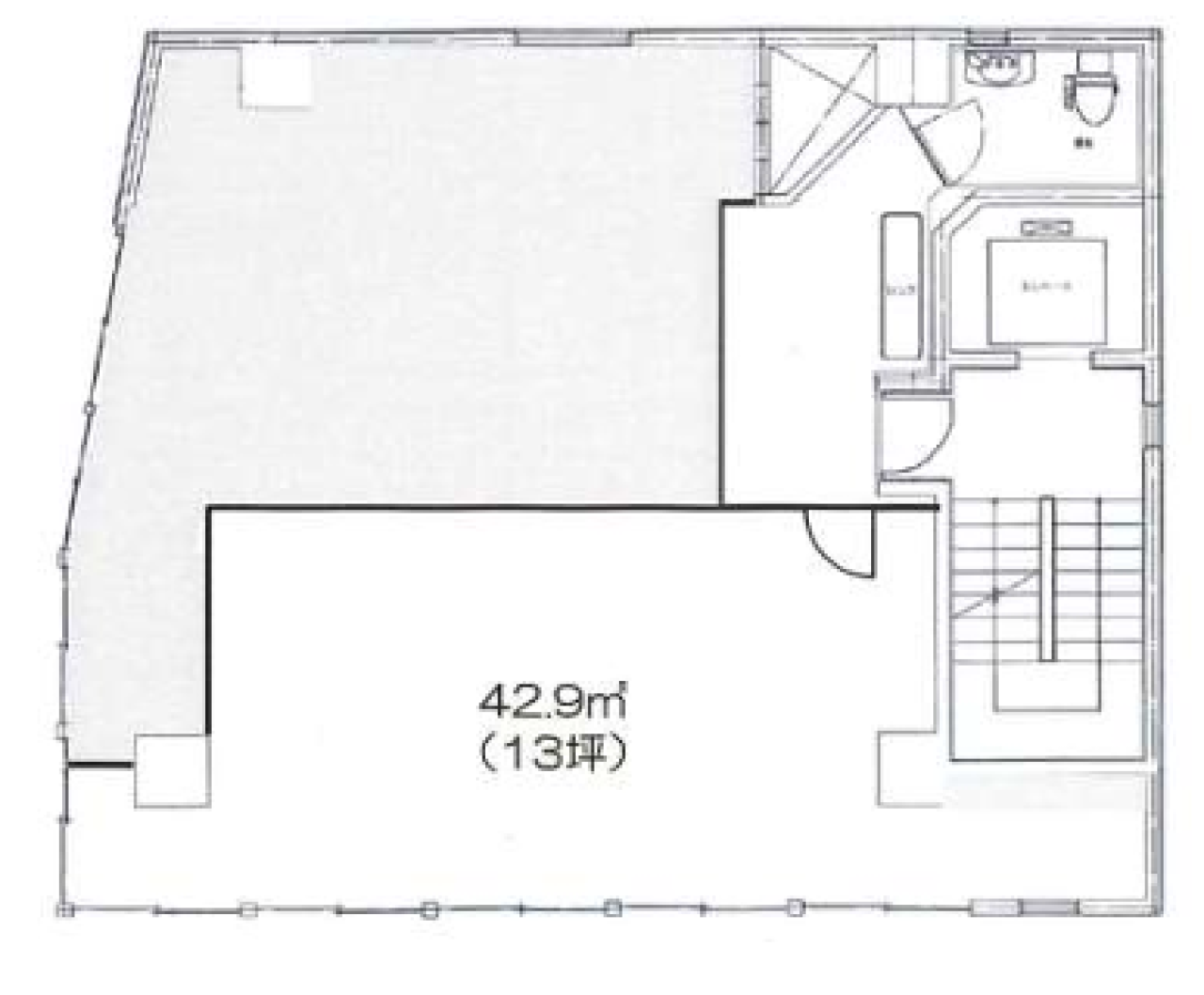
13 坪 42.98 ㎡ |
169,000 円 13,000 円(坪) |
5,000 円 385 円(坪) |
676,000 円 4 ヶ月 |
即日 |
|
|
| 階 | 面積 | 賃料 | 共益費 | 敷金 | 入居日 | お問合せ | お気に入り |
|---|---|---|---|---|---|---|---|
|
4F
(1区画) |
13 坪 42.98 ㎡ |
169,000 円 13,000 円(坪) |
5,000 円 385 円(坪) |
676,000 円 4 ヶ月 |
即日 |
|
|
-
物件情報
-
設備情報
- トイレ
- 室内
- 床
- -
- 空調
- -
- セキュリティ
- -
- 駐車場
- -
- 会議室
- -
- エレベーター
- 1基
- 天井高
- -
-
間取り図
-
近隣相場情報
本郷1丁目(20坪以下)の相場
13075 円 (坪)
※ビルサク調べ
周辺地図
杉浦ビルは、文京区本郷にある貸事務所物件です。最寄駅は、JR、都営三田線水道橋駅、東京メトロ丸ノ内線本郷三丁目駅、南北線後楽園駅です。1972年竣工の賃貸オフィスビルです。トイレは室内で、エレベーターは1基あります。複数路線利用可能で交通アクセスの良い、文京区本郷の貸事務所です。
全フロア情報
更新日:2025年10月8日
| 階 | 面積 | 賃料 | 共益費 | 敷金 | 入居日 | お問合せ | お気に入り | |
|---|---|---|---|---|---|---|---|---|
| 1F |
20 坪 66.12 ㎡ |
※現在空室情報はございません |
※現在空室情報は 確認する |
|||||
| 2F |
26 坪 85.95 ㎡ |
361,400 円 15,000 円(坪) |
5,000 円 192 円(坪) |
2,168,400 円 6 ヶ月 |
即日 |
|
|
|
|
4F
(1区画) |
13 坪 42.98 ㎡ |
169,000 円 13,000 円(坪) |
5,000 円 385 円(坪) |
676,000 円 4 ヶ月 |
即日 |
|
|
|
|
4F
(401区画) |
25.71 坪 84.99 ㎡ |
※現在空室情報はございません |
※現在空室情報は 確認する |
|||||
|
5F
(501区画) |
26 坪 85.95 ㎡ |
※現在空室情報はございません |
※現在空室情報は 確認する |
|||||
お問い合わせ
似た条件の物件はこちら
-
山本ビル
東京都文京区本郷3-39-9
坪数:14.89 坪
坪単価:13,432 円(坪)
-
北川ビル
東京都文京区西片2-19-17
坪数:16.11 坪
坪単価:7,618 円(坪)
-
モリカワビル
東京都文京区西片1-15-18
坪数:14.55 坪
坪単価:12,371 円(坪)
-
エスティビル小石川
東京都文京区小石川2-23-12
坪数:16.5 坪
坪単価:12,121 円(坪)
-
アイエフ湯島
東京都文京区湯島2-25-5
坪数:17.12 坪
坪単価:8,995 円(坪)
-
本郷七番館
東京都文京区本郷2-13-13
坪数:15.12 坪
坪単価:11,905 円(坪)
-
お茶の水森島ビル
東京都文京区本郷3-2-3
坪数:17.12 坪
坪単価:13,435 円(坪)
-
おおたビル
東京都文京区本郷2-29-8
坪数:15.75 坪
坪単価:9,091 円(坪)
-
白王ビル
東京都文京区後楽2-3-10
坪数:15 坪
坪単価:10,000 円(坪)
-
パークコート文京小石川ザタワーNX棟
東京都文京区小石川1-5-1
坪数:17.77 坪
坪単価:25,068 円(坪)