銀座大野ビル(物件No:21983191)
銀座大野ビルは、中央区築地にある貸事務所物件です。最寄り駅は、東京メトロ日比谷線の東銀座駅、築地駅、東京メトロ有楽町線の新富町駅、都営浅草線の東銀座駅、都営大江戸線の築地市場駅です。1973年竣工で、基準階が187.43坪の賃貸オフィスビルです。天高は2500mmで、床はOAフロアとなっています。空調は個別空調でトイレは室外にあり、男女別です。有人警備、機械警備で、駐車場があり、エレベーターは2基あります。複数路線利用可能な、アクセスの良い中央区築地の貸事務所です。
| 階 | 面積 | 賃料 | 共益費 | 敷金 | 入居日 | お問合せ | お気に入り |
|---|---|---|---|---|---|---|---|
|
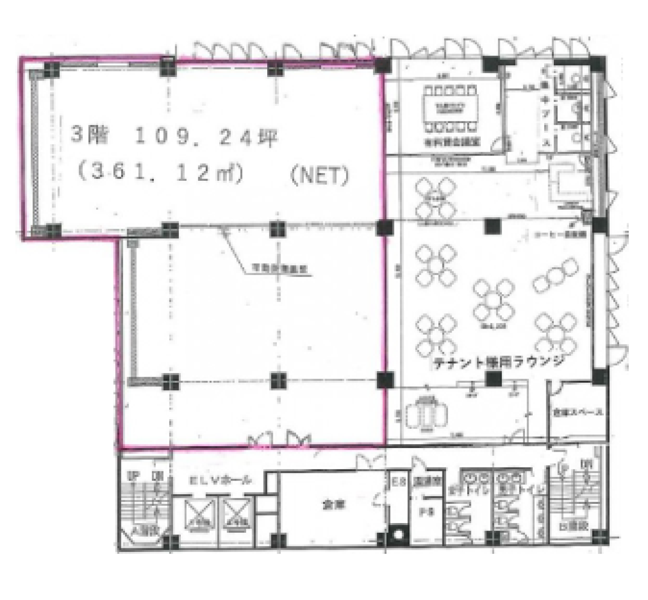
3F
(2区画) |
109.24 坪 361.12 ㎡ |
2,294,040 円 21,000 円(坪) |
546,200 円 5,000 円(坪) |
27,528,480 円 12 ヶ月 |
即日 |
|
|
| 階 | 面積 | 賃料 | 共益費 | 敷金 | 入居日 | お問合せ | お気に入り |
|---|---|---|---|---|---|---|---|
|
3F
(2区画) |
109.24 坪 361.12 ㎡ |
2,294,040 円 21,000 円(坪) |
546,200 円 5,000 円(坪) |
27,528,480 円 12 ヶ月 |
即日 |
|
|
-
物件情報
-
設備情報
- トイレ
- 室外男女別
- 床
- -
- 空調
- 個別空調
- セキュリティ
- 有
- 駐車場
- 有
- 会議室
- -
- エレベーター
- 2基
- 天井高
- 2500mm
-
間取り図
-
近隣相場情報
築地4丁目(100坪以上)の相場
25899 円 (坪)
※ビルサク調べ
周辺施設情報
| コンビニ |
セブンイレブン/KOYOがんセンター中央病院/350m(徒歩5分) ローソン/ナチュラル 築地東劇ビル/61m(徒歩1分) |
|---|---|
| 郵便局/銀行 |
ローソン銀行/NL 築地東劇ビル共同出張所/[営業時間]24時間/61m(徒歩1分) 郵便局/京橋郵便局(晴海郵便局京橋分室)/[駐車場]なし/88m(徒歩1分) |
| 飲食店 |
築地の貝/11時00分~14時00分 17時00分~22時00分/55m(徒歩1分) Cucchiaino(クッキアイノ)/11時30分~23時00分/42m(徒歩1分) |
| カフェ |
タリーズ/東銀座店/[営業時間]平日:7:00~19:30(L.O.19:15) 土 :8:00~19:00(L.O. 18:30) 日祝:9:00~19:00(L.O.18:30)/210m(徒歩3分) スターバックス/東銀座店/[営業時間]月~金:7:00~21:00/土日祝:8:00~20:00/210m(徒歩3分) |
| コインパーキング |
タイムズ駐車場/東劇ビル [料金] [全日]通常料金 / 7:00~0:00 30分 330円 0:00~7:00 60分 110円 [最大料金] [全日]駐車後12時間 最大料金3190円 [台数]50 タイムズ駐車場/野村不動産銀座ビル [料金] [全日]通常料金 / 7:00~20:00 30分 440円 20:00~7:00 30分 440円 [最大料金] [全日]駐車後24時間 最大料金2200円 [台数]34 |
周辺地図
銀座大野ビルは、中央区築地にある貸事務所物件です。最寄り駅は、東京メトロ日比谷線の東銀座駅、築地駅、東京メトロ有楽町線の新富町駅、都営浅草線の東銀座駅、都営大江戸線の築地市場駅です。1973年竣工で、基準階が187.43坪の賃貸オフィスビルです。天高は2500mmで、床はOAフロアとなっています。空調は個別空調でトイレは室外にあり、男女別です。有人警備、機械警備で、駐車場があり、エレベーターは2基あります。複数路線利用可能な、アクセスの良い中央区築地の貸事務所です。
全フロア情報
更新日:2026年3月10日
| 階 | 面積 | 賃料 | 共益費 | 敷金 | 入居日 | お問合せ | お気に入り | |
|---|---|---|---|---|---|---|---|---|
|
1F
(1区画) |
58.85 坪 194.55 ㎡ |
※現在空室情報はございません |
※現在空室情報は 確認する |
|||||
|
1F
(2区画) |
64.7 坪 213.88 ㎡ |
※現在空室情報はございません |
※現在空室情報は 確認する |
|||||
| 3F |
206.17 坪 681.55 ㎡ |
※現在空室情報はございません |
※現在空室情報は 確認する |
|||||
|
3F
(1区画) |
187.43 坪 619.6 ㎡ |
※現在空室情報はございません |
※現在空室情報は 確認する |
|||||
|
3F
(1-1区画) |
106.58 坪 352.33 ㎡ |
※現在空室情報はございません |
※現在空室情報は 確認する |
|||||
|
3F
(1-2区画) |
80.85 坪 267.27 ㎡ |
※現在空室情報はございません |
※現在空室情報は 確認する |
|||||
|
3F
(2区画) |
109.24 坪 361.12 ㎡ |
2,294,040 円 21,000 円(坪) |
546,200 円 5,000 円(坪) |
27,528,480 円 12 ヶ月 |
即日 |
|
|
|
| 4F |
206.17 坪 681.55 ㎡ |
※現在空室情報はございません |
※現在空室情報は 確認する |
|||||
| 5F |
206.34 坪 682.11 ㎡ |
※現在空室情報はございません |
※現在空室情報は 確認する |
|||||
| 6F |
207.3 坪 685.29 ㎡ |
※現在空室情報はございません |
※現在空室情報は 確認する |
|||||
| 7F |
206.34 坪 682.11 ㎡ |
※現在空室情報はございません |
※現在空室情報は 確認する |
|||||
| 8F |
189.44 坪 626.25 ㎡ |
3,978,240 円 21,000 円(坪) |
757,760 円 4,000 円(坪) |
47,738,880 円 12 ヶ月 |
即日 |
|
|
|
| 9F |
191.52 坪 633.12 ㎡ |
4,021,920 円 21,000 円(坪) |
766,080 円 4,000 円(坪) |
48,263,040 円 12 ヶ月 |
即日 |
|
|
|
お問い合わせ
似た条件の物件はこちら
-
DCCビル
東京都中央区新富1-6-16
坪数:79.45 坪
坪単価:16,000 円(坪)
-
築地スクエアビル
東京都中央区築地3-11-6
坪数:110 坪
坪単価:16,000 円(坪)
-
+SHIFT TSUKIJI
東京都中央区築地3-12-5
坪数:88.71 坪
坪単価:27,000 円(坪)
-
銀座松竹スクエア
東京都中央区築地1-13-1
坪数:116.03 坪
坪単価:25,998 円(坪)
-
築地アサカワビル
東京都中央区明石町11-3
坪数:84.53 坪
坪単価:10,908 円(坪)