ミズホビル(物件No:21788171)
ミズホビルは中央区日本橋富沢町にある地下1階、地上6階建ての貸店舗です。最寄駅は東京メトロ日比谷線の人形町駅から徒歩3分、東京メトロ半蔵門線の水天宮前駅から徒歩7分、都営新宿線の浜町駅から徒歩6分、都営浅草線の人形町駅から徒歩3分、都営新宿線の馬喰横山駅から徒歩6分、都営浅草線の東日本橋駅から徒歩6分です。1988年3月竣工の基準階面積が35.45坪の鉄筋コンクリート造です。設備としてはエレベーターが1基あり、機械警備もあります。トイレは男女別です。空調は個別空調です。天高は2410mmです。耐震性は新耐震となっている、最寄駅から駅近で便利な中央区日本橋富沢町の貸店舗です。
-
物件情報
-
設備情報
- トイレ
- 男女別
- 床
- -
- 空調
- 個別空調
- セキュリティ
- 有
- 駐車場
- 無
- 会議室
- -
- エレベーター
- 1基
- 天井高
- 2410mm
-
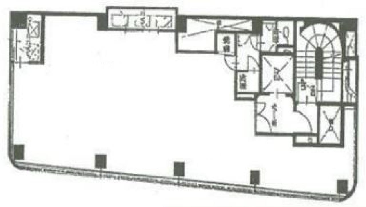
間取り図
-
近隣相場情報
日本橋富沢町4丁目(30~40坪)の相場
21249 円 (坪)
※ビルサク調べ
周辺施設情報
| コンビニ |
セブンイレブン/日本橋人形町2丁目/160m(徒歩2分) ファミリーマート/人形町駅前店/140m(徒歩2分) |
|---|---|
| 郵便局/銀行 |
セブン銀行/日本橋人形町2丁目店/[営業時間]24時間営業/160m(徒歩2分) イーネット/ファミリーマート人形町駅前/[営業時間]0:00~24:00/140m(徒歩2分) |
| 飲食店 |
京華楼/11時00分~23時00分/22m(徒歩1分) 山喜多/16時00分~0時00分/41m(徒歩1分) |
| カフェ |
ベローチェ/人形町店/[営業時間]7:00~22:00/120m(徒歩1分) エクセルシオール/カフェ 人形町店/[営業時間]平日:7:00~22:00 土曜日:8:00~21:00 日 祝:8:00~19:00 /190m(徒歩2分) |
| コインパーキング |
タイムズ駐車場/日本橋富沢町第2 [料金] [月~土]通常料金 / 8:00~20:00 10分 330円 20:00~8:00 60分 110円 [日・祝]通常料金 / 8:00~20:00 10分 330円 20:00~8:00 60分 110円 [最大料金] [月~土]20:00~8:00 最大料金550円 [日・祝]8:00~20:00 最大料金1540円 20:00~8:00 最大料金550円 [台数]4 タイムズ駐車場/日本橋富沢町第4 [料金] [月~土]通常料金 / 0:00~0:00 15分 330円 [日・祝]通常料金 / 0:00~0:00 15分 330円 [最大料金] [月~土]8:00~18:00 最大料金4180円 18:00~8:00 最大料金660円 [日・祝]8:00~18:00 最大料金1100円 18:00~8:00 最大料金660円 [台数]2 |
周辺地図
ミズホビルは中央区日本橋富沢町にある地下1階、地上6階建ての貸店舗です。最寄駅は東京メトロ日比谷線の人形町駅から徒歩3分、東京メトロ半蔵門線の水天宮前駅から徒歩7分、都営新宿線の浜町駅から徒歩6分、都営浅草線の人形町駅から徒歩3分、都営新宿線の馬喰横山駅から徒歩6分、都営浅草線の東日本橋駅から徒歩6分です。1988年3月竣工の基準階面積が35.45坪の鉄筋コンクリート造です。設備としてはエレベーターが1基あり、機械警備もあります。トイレは男女別です。空調は個別空調です。天高は2410mmです。耐震性は新耐震となっている、最寄駅から駅近で便利な中央区日本橋富沢町の貸店舗です。
全フロア情報
更新日:2026年3月5日
| 階 | 面積 | 賃料 | 共益費 | 敷金 | 入居日 | お問合せ | お気に入り | |
|---|---|---|---|---|---|---|---|---|
| 1-2F |
52.11 坪 172.26 ㎡ |
※現在空室情報はございません |
※現在空室情報は 確認する |
|||||
| 2F |
32.98 坪 109.02 ㎡ |
※現在空室情報はございません |
※現在空室情報は 確認する |
|||||
| 3F |
35.45 坪 117.19 ㎡ |
※現在空室情報はございません |
※現在空室情報は 確認する |
|||||
| 4F |
35.45 坪 117.19 ㎡ |
※現在空室情報はございません |
※現在空室情報は 確認する |
|||||
| 5F |
35.45 坪 117.19 ㎡ |
※現在空室情報はございません |
※現在空室情報は 確認する |
|||||
| 6F |
23.27 坪 76.93 ㎡ |
348,450 円 14,974 円(坪) |
46,460 円 1,997 円(坪) |
2,090,700 円 6 ヶ月 |
2026/04 |
|
|
|
お問い合わせ
似た条件の物件はこちら
-
第1川端ビル
東京都中央区日本橋堀留町1-10-19
坪数:26.08 坪
坪単価:14,000 円(坪)
-
伊勢兼ビル
東京都中央区日本橋人形町1-7-9
坪数:27.05 坪
坪単価:17,000 円(坪)
-
林ビル
東京都中央区日本橋馬喰町1-5-10
坪数:29.43 坪
坪単価:10,000 円(坪)
-
7山京ビル
東京都中央区日本橋箱崎町17-8
坪数:37.5 坪
坪単価:11,000 円(坪)
-
エムジー小伝馬町ビル
東京都中央区日本橋小伝馬町7-10
坪数:27.38 坪
坪単価:12,500 円(坪)
-
箱崎YMビル
東京都中央区日本橋箱崎町44-7
坪数:27.51 坪
坪単価:10,178 円(坪)
-
第1松井ビル
東京都中央区日本橋馬喰町1-8-4
坪数:36.67 坪
坪単価:8,000 円(坪)
-
Grandir 日本橋小伝馬町
東京都中央区日本橋小伝馬町18-1
坪数:44.34 坪
坪単価:24,000 円(坪)
-
大伝馬町壱番地ビル
東京都中央区日本橋大伝馬町2-1
坪数:29.65 坪
坪単価:12,000 円(坪)
-
原ビル
東京都中央区日本橋人形町3-7-2
坪数:27.37 坪
坪単価:9,998 円(坪)
関連エリアから探す
- 日本橋大伝馬町
- 日本橋蛎殻町
- 日本橋小網町
- 日本橋小伝馬町
- 日本橋小舟町
- 日本橋富沢町
- 日本橋人形町
- 日本橋箱崎町
- 日本橋堀留町
- 日本橋中洲
- 日本橋馬喰町
- 日本橋浜町
- 日本橋久松町
- 日本橋横山町
- 東日本橋