秋本ビル(物件No:21788017)
秋本ビルは、千代田区外神田にある貸事務所物件です。最寄り駅は、JR線、つくばエクスプレスのの秋葉原駅、東京メトロ銀座線の末広町駅、JR中央総武線、丸ノ内線の御茶ノ水駅、東京メトロ千代田線の湯島駅、東京メトロ銀座線の上野広小路駅、都営新宿線の小川町駅、JR線の御徒町駅、東京メトロ日比谷線の中御徒町駅です。1987年竣工で、基準階が20.3坪の賃貸オフィスビルです。天高は2490mmとなっております。空調は個別空調です。エレベーターは1基あります。複数路線利用可能な、アクセスの良い千代田区外神田の貸事務所です。
-
物件情報
-
設備情報
- トイレ
- 室内男女共用
- 床
- -
- 空調
- 個別空調
- セキュリティ
- -
- 駐車場
- -
- 会議室
- -
- エレベーター
- 1基
- 天井高
- 2490mm
-
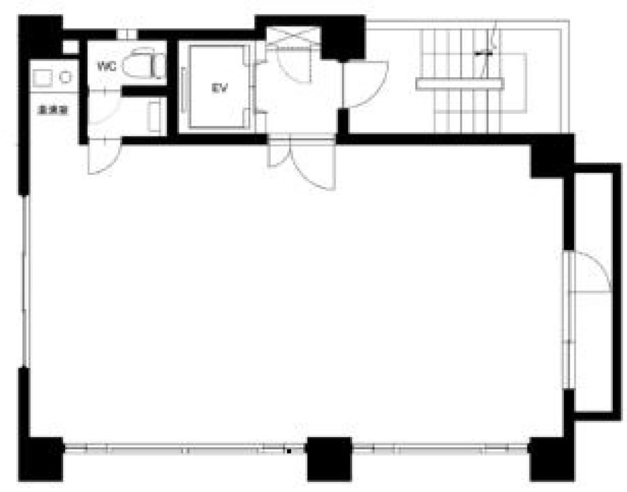
間取り図
-
近隣相場情報
外神田3丁目(20坪以下)の相場
14238 円 (坪)
※ビルサク調べ
周辺施設情報
| コンビニ |
ローソン/御茶ノ水MKビル/600m(徒歩8分) セブンイレブン/文京湯島3丁目/400m(徒歩5分) |
|---|---|
| 郵便局/銀行 |
興産信用金庫/秋葉原支店/230m(徒歩3分) 三菱UFJ銀行/ATM 秋葉原UDXビル/[営業時間] [ATM]平日 7:00~24:00 土曜日 7:00~24:00 日・祝日 7:00~24:00 *毎月第2土曜日の21:00~翌朝7:00はご利用いただけません/450m(徒歩6分) |
| 飲食店 |
アイキッチン 秋葉原店/11時00分~16時00分、17時00分~22時30分/130m(徒歩2分) 一の谷/17時30分~23時00分/130m(徒歩2分) |
| カフェ |
エイトスタイル/15時00分~23時00分/72m(徒歩1分) COPAINS de 3331/11時00分~20時00分/270m(徒歩4分) |
| コインパーキング |
タイムズ駐車場/TNS外神田3丁目 [料金] [全日]8:00~0:00 15分 300円 [全日]0:00~8:00 60分 100円 [最大料金] [全日]駐車後5時間 最大料金2800円 [台数]10 ショウワパーク/外神田 [料金] 四輪車 8:00~24:00 20分/400円 四輪車 0:00~8:00 30分/100円 バイク 8:00~24:00 60分/200円 バイク 0:00~8:00 60分/100円 [最大料金] (四輪車) 入庫後5時間 1900円 (バイクのみ) 入庫後24時間 1000円 繰り返し○ [台数]2台 |
周辺地図
秋本ビルは、千代田区外神田にある貸事務所物件です。最寄り駅は、JR線、つくばエクスプレスのの秋葉原駅、東京メトロ銀座線の末広町駅、JR中央総武線、丸ノ内線の御茶ノ水駅、東京メトロ千代田線の湯島駅、東京メトロ銀座線の上野広小路駅、都営新宿線の小川町駅、JR線の御徒町駅、東京メトロ日比谷線の中御徒町駅です。1987年竣工で、基準階が20.3坪の賃貸オフィスビルです。天高は2490mmとなっております。空調は個別空調です。エレベーターは1基あります。複数路線利用可能な、アクセスの良い千代田区外神田の貸事務所です。
全フロア情報
更新日:2025年10月31日
| 階 | 面積 | 賃料 | 共益費 | 敷金 | 入居日 | お問合せ | お気に入り | |
|---|---|---|---|---|---|---|---|---|
| 1F |
20.3 坪 67.11 ㎡ |
※現在空室情報はございません |
※現在空室情報は 確認する |
|||||
| 2F |
19.69 坪 65.09 ㎡ |
※現在空室情報はございません |
※現在空室情報は 確認する |
|||||
| 3F |
19.69 坪 65.09 ㎡ |
※現在空室情報はございません |
※現在空室情報は 確認する |
|||||
| 4F |
19.69 坪 65.09 ㎡ |
※現在空室情報はございません |
※現在空室情報は 確認する |
|||||
お問い合わせ
似た条件の物件はこちら
-
KSYビル
東京都千代田区神田須田町2-15
坪数:22.12 坪
坪単価:13,562 円(坪)
-
KM千代田ビル
東京都千代田区岩本町1-12-1
坪数:20.02 坪
坪単価:12,996 円(坪)
-
アーバンスクエア神田ビル
東京都千代田区神田須田町1-18
坪数:14.18 坪
坪単価:17,000 円(坪)
-
TOKENビル
東京都千代田区外神田5-2-4
坪数:21.37 坪
坪単価:11,500 円(坪)
-
第二櫻井ビル
東京都千代田区神田佐久間町3-5
坪数:17.24 坪
坪単価:11,996 円(坪)
-
新東ビル
東京都千代田区内神田2-8-3
坪数:21.5 坪
坪単価:11,000 円(坪)
-
神田乗物町ビル
東京都千代田区神田北乗物町2
坪数:20.88 坪
坪単価:13,000 円(坪)
-
松本ビル
東京都千代田区外神田6-2-8
坪数:20.6 坪
坪単価:10,997 円(坪)
-
野沢ビル
東京都千代田区外神田6-7-4
坪数:14 坪
坪単価:12,143 円(坪)
-
藤和内神田ビル
東京都千代田区内神田2-4-4
坪数:18.49 坪
坪単価:16,500 円(坪)
関連エリアから探す
- 内神田
- 神田淡路町
- 神田小川町
- 神田鍛冶町
- 神田須田町
- 神田駿河台
- 神田多町
- 神田司町
- 神田錦町
- 神田美土代町
- 岩本町
- 鍛冶町
- 神田岩本町
- 神田北乗物町
- 神田紺屋町
- 神田富山町
- 神田西福田町
- 神田東松下町
- 神田東紺屋町
- 神田美倉町
- 東神田
- 神田相生町
- 神田和泉町
- 神田佐久間町
- 神田佐久間河岸
- 神田練塀町
- 神田花岡町
- 神田松永町
- 外神田
- 神田平河町