金谷ホテルマンション(物件No:21784124)
金谷ホテルマンションは、港区西麻布にある貸事務所物件です。最寄り駅は、東京メトロ日比谷線の六本木駅、広尾駅、都営大江戸線の六本木駅、麻布十番駅、東京メトロ千代田線の乃木坂駅です。1971年竣工で、基準階が47.65坪の賃貸オフィスビルです。天高は2300mmとなっております。空調は個別空調です。駐車場があり、エレベーターは1基あります。複数路線利用可能な、アクセスの良い港区西麻布の貸事務所です。
| 階 | 面積 | 賃料 | 共益費 | 敷金 | 入居日 | お問合せ | お気に入り | |
|---|---|---|---|---|---|---|---|---|
|
6F
(601区画) |
20.78 坪 68.69 ㎡ |
※現在空室情報はございません |
※現在空室情報は 確認する |
|||||
-
物件情報
-
設備情報
- トイレ
- 室内男女共用
- 床
- -
- 空調
- 個別空調
- セキュリティ
- 無
- 駐車場
- 有
- 会議室
- -
- エレベーター
- 1基
- 天井高
- 2300mm
-
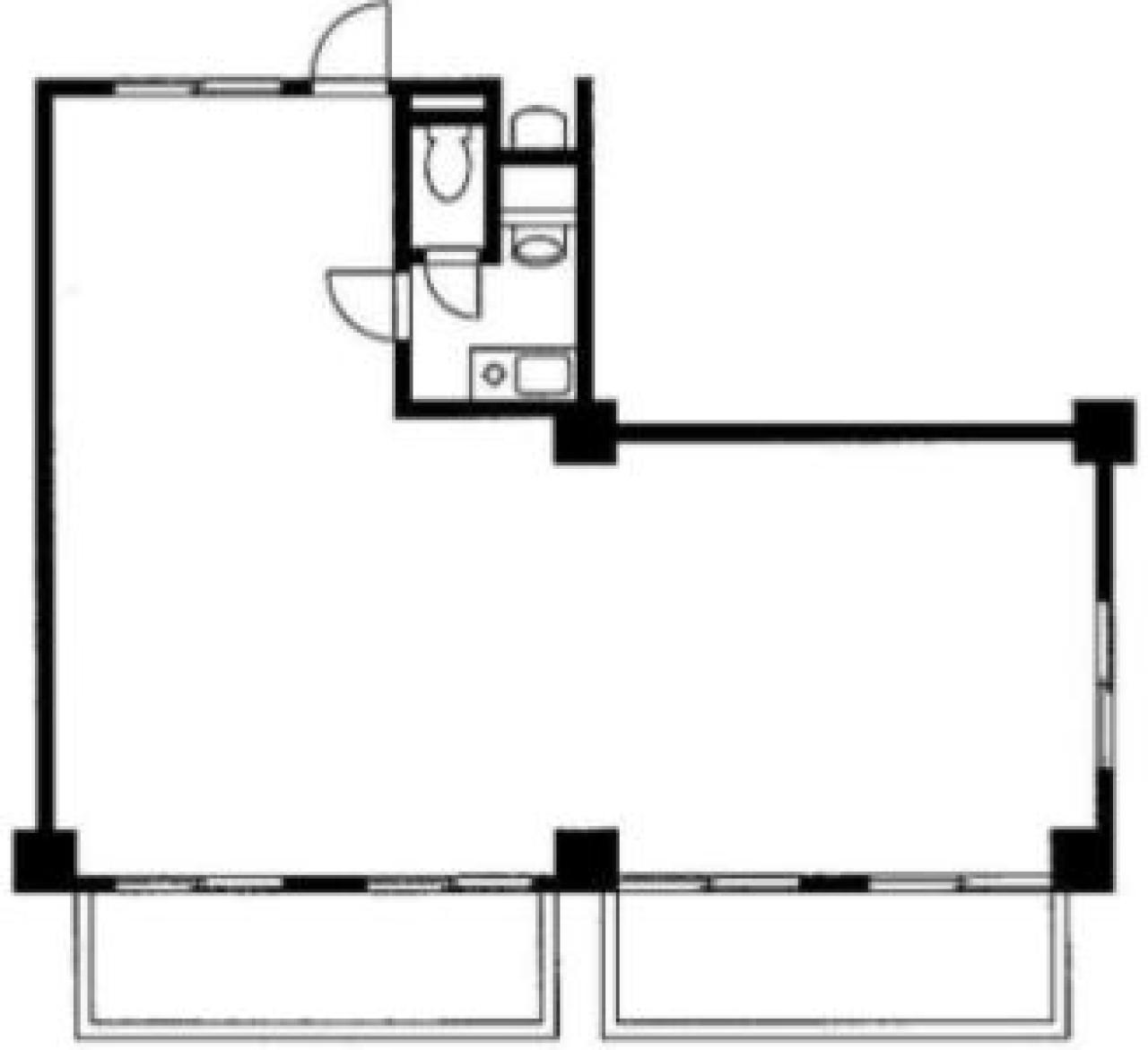
間取り図
-
近隣相場情報
西麻布3丁目(20~30坪)の相場
18454 円 (坪)
※ビルサク調べ
周辺施設情報
| コンビニ |
ローソン/西麻布三丁目/220m(徒歩3分) セブンイレブン/西麻布3丁目六本木通り/46m(徒歩1分) |
|---|---|
| 郵便局/銀行 |
三井住友銀行/ATM 六本木ヒルズ出張所/[ATM]平日 0:00~24:00 土曜 0:00~24:00 日曜・祝日 0:00~21:00/240m(徒歩3分) みずほ銀行/ATM 六本木ヒルズ出張所/[営業時間]ATM 平日 /Monday - Friday 8:00~23:00 土曜日/Saturday 8:00~22:00 日曜日/Sunday 8:00~21:00 祝日・振替休日 /Public Holidays 曜日に準ずる 備考 *設置施設の休業日・休業時間帯は、一般のお客さまはご利用/500m(徒歩6分) |
| 飲食店 |
鶏匠/18時00分~4時00分/83m(徒歩1分) ピザカヤ/11時30分~14時00分、17時00分~23時00分/81m(徒歩1分) |
| カフェ |
スターバックス/六本木ヒルズ ウエストウォーク店/[営業時間]07:00~23:00 [休業日]不定休 [備考]無線LAN:STARBUCKS/docomo/FLET’S(東)/au/Wi2 300/270m(徒歩3分) ANTICO CAFFE/六本木ヒルズ店/[営業時間]7:00~ 23:00(土・日・祝9:00~22:00)/220m(徒歩3分) |
| コインパーキング |
タイムズ駐車場/心臓血管研究所付属病院 [料金] [全日]通常料金 / 00:00-00:00 20分 400円 [台数]11 三井のリパーク/西麻布1丁目第8 [料金] 全日 08:00~00:00 20分/300円 全日 00:00~08:00 60分/100円 [最大料金] 【全日】最大料金入庫後24時間以内2900円 [台数]5 |
周辺地図
金谷ホテルマンションは、港区西麻布にある貸事務所物件です。最寄り駅は、東京メトロ日比谷線の六本木駅、広尾駅、都営大江戸線の六本木駅、麻布十番駅、東京メトロ千代田線の乃木坂駅です。1971年竣工で、基準階が47.65坪の賃貸オフィスビルです。天高は2300mmとなっております。空調は個別空調です。駐車場があり、エレベーターは1基あります。複数路線利用可能な、アクセスの良い港区西麻布の貸事務所です。
全フロア情報
更新日:2025年10月24日
| 階 | 面積 | 賃料 | 共益費 | 敷金 | 入居日 | お問合せ | お気に入り | |
|---|---|---|---|---|---|---|---|---|
|
3F
(303区画) |
12.42 坪 41.06 ㎡ |
※現在空室情報はございません |
※現在空室情報は 確認する |
|||||
|
4F
(403区画) |
13.31 坪 44 ㎡ |
※現在空室情報はございません |
※現在空室情報は 確認する |
|||||
|
5F
(501区画) |
20.78 坪 68.69 ㎡ |
※現在空室情報はございません |
※現在空室情報は 確認する |
|||||
|
5F
(502区画) |
13.31 坪 44 ㎡ |
※現在空室情報はございません |
※現在空室情報は 確認する |
|||||
|
5F
(504区画) |
14.52 坪 48 ㎡ |
※現在空室情報はございません |
※現在空室情報は 確認する |
|||||
|
6F
(601区画) |
20.78 坪 68.69 ㎡ |
※現在空室情報はございません |
※現在空室情報は 確認する |
|||||
|
6F
(605区画) |
17.78 坪 58.78 ㎡ |
※現在空室情報はございません |
※現在空室情報は 確認する |
|||||
| 7F |
20.78 坪 68.69 ㎡ |
※現在空室情報はございません |
※現在空室情報は 確認する |
|||||
|
7F
(703区画) |
13.31 坪 44 ㎡ |
※現在空室情報はございません |
※現在空室情報は 確認する |
|||||
|
7F
(705区画) |
18.07 坪 59.74 ㎡ |
※現在空室情報はございません |
※現在空室情報は 確認する |
|||||
|
9F
(1区画) |
20.78 坪 68.69 ㎡ |
※現在空室情報はございません |
※現在空室情報は 確認する |
|||||
|
10F
(1003区画) |
13.6 坪 44.96 ㎡ |
※現在空室情報はございません |
※現在空室情報は 確認する |
|||||
お問い合わせ
似た条件の物件はこちら
-
センチュリオン六本木タワーⅡ
東京都港区西麻布3-6-1
坪数:21.76 坪
坪単価:20,000 円(坪)
-
タトルビル
東京都港区東麻布2-6-5
坪数:16.97 坪
坪単価:11,786 円(坪)
-
麻布エンパイアマンション
東京都港区西麻布4-11-28
坪数:17.61 坪
坪単価:12,803 円(坪)
-
六本木メイフラワーハイツ
東京都港区六本木4-1-2
坪数:25 坪
坪単価:30,000 円(坪)
-
飯倉カムフィーホームズ
東京都港区麻布台3-4-4
坪数:19.03 坪
坪単価:11,000 円(坪)
-
ランドコム麻布台
東京都港区麻布台1-9-14
坪数:23.49 坪
坪単価:13,000 円(坪)
-
秀和六本木レジデンス
東京都港区六本木7-17-22
坪数:18.14 坪
坪単価:16,262 円(坪)
-
プリンセスコート東麻布
東京都港区東麻布1-29-9
坪数:18.15 坪
坪単価:15,978 円(坪)
-
Kukai Terrace元麻布
東京都港区元麻布3-5-27
坪数:20.61 坪
坪単価:22,804 円(坪)
-
丸井ビル
東京都港区麻布十番2-5-13
坪数:22 坪
坪単価:15,000 円(坪)