平成ビル(物件No:21783101)
平成ビルは中央区東日本橋にある賃貸事務所です。最寄駅は都営浅草線の東日本橋駅から徒歩3分、都営新宿線の馬喰横山駅から徒歩4分、JR総武線快速の馬喰町駅から徒歩5分、JR中央・総武線の浅草橋駅から徒歩8分、都営新宿線の浜町駅から徒歩6分です。1990年竣工の鉄骨造です。設備としては、トイレは室内男女共用です。複数路線利用可能な、アクセスの良い中央区東日本橋の賃貸オフィスです。
-
物件情報
-
設備情報
- トイレ
- 室内男女共用
- 床
- -
- 空調
- -
- セキュリティ
- -
- 駐車場
- -
- 会議室
- -
- エレベーター
- 1基
- 天井高
- -
-
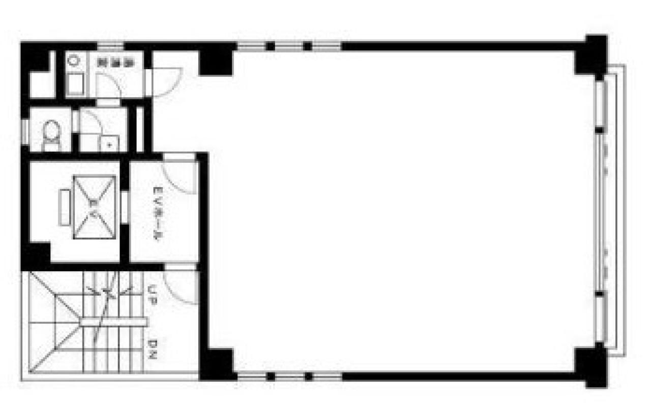
間取り図
-
近隣相場情報
東日本橋2丁目(20~30坪)の相場
21676 円 (坪)
※ビルサク調べ
周辺施設情報
| コンビニ |
デイリーヤマザキ/清杉通り店/200m(徒歩3分) ローソン/東日本橋二丁目/200m(徒歩3分) |
|---|---|
| 郵便局/銀行 |
ローソン銀行/東日本橋京葉道路共同出張所/[営業時間]24時間/200m(徒歩3分) セブン銀行/東日本橋駅前店/[営業時間]24時間営業/220m(徒歩3分) |
| 飲食店 |
あひ鴨一品 鳥安/17時00分~22時00分/83m(徒歩1分) 江戸政/17時00分~20時00分/150m(徒歩2分) |
| カフェ |
ドトール/東日本橋店/[営業時間]平日:7:00~21:00 土曜日:8:00~19:00 日 祝:8:00~19:00/190m(徒歩2分) プロント/東日本橋店/[営業時間]平日:カフェ 7:00~17:30 バー 17:30~23:00 土曜:カフェ 7:00~21:00 日曜:カフェ 7:00~20:00 祝日:カフェ 7:00~20:00/260m(徒歩4分) |
| コインパーキング |
パークアベニュー/東日本橋第4 [料金] [料金]昼 12分/200円/夜 60分/100円 [台数]4 東洋CARMAX/東日本橋 [料金] 【通常料金】 (全日) 08:00-20:00 ¥300 20分 20:00-08:00 ¥100 60分 【最大料金】 (月-土) 入庫後5時間以内 ¥2000 [最大料金] 【最大料金】 (日祝) 入庫後5時間以内 ¥1000 (全日) 20:00-8:00 ¥500 [台数]3 |
周辺地図
平成ビルは中央区東日本橋にある賃貸事務所です。最寄駅は都営浅草線の東日本橋駅から徒歩3分、都営新宿線の馬喰横山駅から徒歩4分、JR総武線快速の馬喰町駅から徒歩5分、JR中央・総武線の浅草橋駅から徒歩8分、都営新宿線の浜町駅から徒歩6分です。1990年竣工の鉄骨造です。設備としては、トイレは室内男女共用です。複数路線利用可能な、アクセスの良い中央区東日本橋の賃貸オフィスです。
全フロア情報
更新日:2026年3月13日
| 階 | 面積 | 賃料 | 共益費 | 敷金 | 入居日 | お問合せ | お気に入り | |
|---|---|---|---|---|---|---|---|---|
| 1F |
14.15 坪 46.78 ㎡ |
198,100 円 14,000 円(坪) |
無 |
1,188,600 円 6 ヶ月 |
相談 |
|
|
|
| 3F |
20.19 坪 66.74 ㎡ |
※現在空室情報はございません |
※現在空室情報は 確認する |
|||||
| 4F |
20.19 坪 66.74 ㎡ |
※現在空室情報はございません |
※現在空室情報は 確認する |
|||||
| 5F |
16.49 坪 54.51 ㎡ |
※現在空室情報はございません |
※現在空室情報は 確認する |
|||||
お問い合わせ
似た条件の物件はこちら
-
グリーンパーク日本橋参番館
東京都中央区日本橋大伝馬町6-2
坪数:16.35 坪
坪単価:23,242 円(坪)
-
横山町ビル
東京都中央区日本橋横山町1-1
坪数:21.35 坪
坪単価:23,419 円(坪)
-
ACE日本橋ビル
東京都中央区日本橋久松町13-5
坪数:17 坪
坪単価:13,000 円(坪)
-
茄子倉ビル
東京都中央区日本橋馬喰町1-9-8
坪数:17.79 坪
坪単価:12,000 円(坪)
-
PORT ONE 茅場町
東京都中央区日本橋箱崎町5-15
坪数:16.75 坪
坪単価:24,000 円(坪)
-
オーキッドプレイス蛎殻町ビル
東京都中央区日本橋蛎殻町1-4-1
坪数:24.87 坪
坪単価:16,000 円(坪)
-
FSビル
東京都中央区日本橋人形町2-21-1
坪数:22.05 坪
坪単価:11,000 円(坪)
-
Ikigai Bashi ビル
東京都中央区日本橋大伝馬町1-7
坪数:21.86 坪
坪単価:22,000 円(坪)
-
エムジー小伝馬町ビル
東京都中央区日本橋小伝馬町7-10
坪数:24.71 坪
坪単価:10,500 円(坪)
-
メゾン日本橋
東京都中央区日本橋浜町2-11-2
坪数:21.06 坪
坪単価:11,396 円(坪)
関連エリアから探す
- 日本橋大伝馬町
- 日本橋蛎殻町
- 日本橋小網町
- 日本橋小伝馬町
- 日本橋小舟町
- 日本橋富沢町
- 日本橋人形町
- 日本橋箱崎町
- 日本橋堀留町
- 日本橋中洲
- 日本橋馬喰町
- 日本橋浜町
- 日本橋久松町
- 日本橋横山町
- 東日本橋