TOWER FRONT神谷町(物件No:21681115)
TOWER FRONT神谷町(旧:八束ビル)は、港区東麻布にある貸事務所物件です。最寄り駅は、都営大江戸線の赤羽橋駅、都営三田線の御成門駅、芝公園駅、東京メトロ日比谷線の神谷町駅、東京メトロ南北線の麻布十番駅です。1986年竣工で、基準階が49.1坪の賃貸オフィスビルです。床はOAフロアとなっております。空調は個別空調で、トイレは室外にあり、男女別です。機械警備で、駐車場があり、エレベーターは1基あります。複数路線利用可能な、アクセスの良い港区東麻布の貸事務所です。
| 階 | 面積 | 賃料 | 共益費 | 敷金 | 入居日 | お問合せ | お気に入り |
|---|---|---|---|---|---|---|---|
| 2-3F |
108.62 坪 359.07 ㎡ |
2,715,500 円 25,000 円(坪) |
込 |
16,293,000 円 6 ヶ月 |
即日 |
|
|
| 階 | 面積 | 賃料 | 共益費 | 敷金 | 入居日 | お問合せ | お気に入り |
|---|---|---|---|---|---|---|---|
| 2-3F |
108.62 坪 359.07 ㎡ |
2,715,500 円 25,000 円(坪) |
込 |
16,293,000 円 6 ヶ月 |
即日 |
|
|
-
物件情報
-
設備情報
- トイレ
- 室外男女別
- 床
- フリーアクセス
- 空調
- 個別空調
- セキュリティ
- 有
- 駐車場
- 有
- 会議室
- -
- エレベーター
- 1基
- 天井高
- 2450mm
-
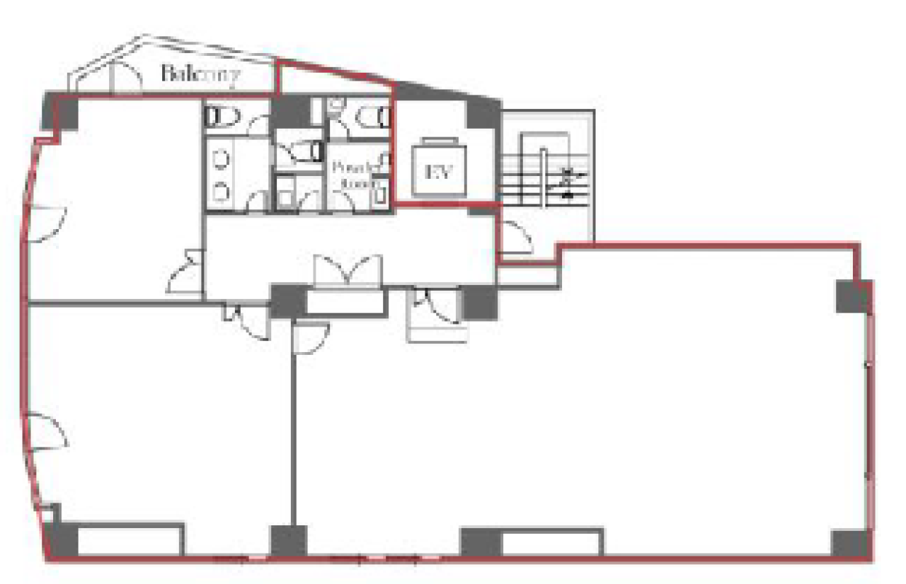
間取り図
-
近隣相場情報
東麻布1丁目(100坪以上)の相場
25000 円 (坪)
※ビルサク調べ
周辺施設情報
| コンビニ |
ローソン/芝公園四丁目/290m(徒歩3分) まいばすけっと/東麻布1丁目店/200m(徒歩2分) |
|---|---|
| 郵便局/銀行 |
イオン銀行/ATM マルエツプチ東麻布店出張所/[営業時間]9:00~23:00/80m(徒歩1分) みずほ銀行/ATM マルエツプチ東麻布店出張所/[営業時間]ATM 平日 /Monday - Friday 9:00~23:00 土曜日/Saturday 9:00~22:00 日曜日/Sunday 9:00~23:00 祝日・振替休日 /Public Holidays 曜日に準ずる 備考 通帳繰越機 設置なし/67m(徒歩1分) |
| 飲食店 |
ABUMI/7:00~売切次第終了/54m(徒歩1分) 東京スイスイン/18時00分~23時00分/ |
| カフェ |
猿田彦珈琲/神谷町オレンジ店/[営業時間]平日/8:00~19:00/350m(徒歩4分) ブルー バオバブ アフリカ/14時00分~23時00分/160m(徒歩2分) |
| コインパーキング |
タイムズ駐車場/東京タワーサイド第2 [料金] [全日]07:00-19:00 30分 500円 [全日]19:00-07:00 30分 100円 [最大料金] [全日]07:00-19:00 最大料金3000円 [全日]19:00-07:00 最大料金700円 [台数]7 SANパーク/東麻布2丁目 [料金] オールタイム20分300円 [最大料金] 最大 【月-土】入庫後8時間以内2300円【日祝】入庫後8時間最大2000円 【全日】夜間(20時~7時)最大600円 [台数]車:4台 |
周辺地図
TOWER FRONT神谷町(旧:八束ビル)は、港区東麻布にある貸事務所物件です。最寄り駅は、都営大江戸線の赤羽橋駅、都営三田線の御成門駅、芝公園駅、東京メトロ日比谷線の神谷町駅、東京メトロ南北線の麻布十番駅です。1986年竣工で、基準階が49.1坪の賃貸オフィスビルです。床はOAフロアとなっております。空調は個別空調で、トイレは室外にあり、男女別です。機械警備で、駐車場があり、エレベーターは1基あります。複数路線利用可能な、アクセスの良い港区東麻布の貸事務所です。
全フロア情報
更新日:2025年11月28日
| 階 | 面積 | 賃料 | 共益費 | 敷金 | 入居日 | お問合せ | お気に入り | |
|---|---|---|---|---|---|---|---|---|
| 2F |
54.31 坪 179.54 ㎡ |
1,357,750 円 25,000 円(坪) |
込 |
8,146,500 円 6 ヶ月 |
2025/12/15 |
|
|
|
| 2-3F |
108.62 坪 359.07 ㎡ |
2,715,500 円 25,000 円(坪) |
込 |
16,293,000 円 6 ヶ月 |
即日 |
|
|
|
| 3F |
54.31 坪 179.54 ㎡ |
1,357,750 円 25,000 円(坪) |
込 |
8,146,500 円 6 ヶ月 |
即日 |
|
|
|
| 5F |
36.39 坪 120.3 ㎡ |
※現在空室情報はございません |
※現在空室情報は 確認する |
|||||
| 6F |
36.39 坪 120.3 ㎡ |
※現在空室情報はございません |
※現在空室情報は 確認する |
|||||
| 7F |
31 坪 102.48 ㎡ |
※現在空室情報はございません |
※現在空室情報は 確認する |
|||||
| 8F |
31 坪 102.48 ㎡ |
※現在空室情報はございません |
※現在空室情報は 確認する |
|||||
| 9F |
36.39 坪 120.3 ㎡ |
※現在空室情報はございません |
※現在空室情報は 確認する |
|||||
お問い合わせ
似た条件の物件はこちら
-
青葉六本木ビル
東京都港区六本木3-16-33
坪数:122.41 坪
坪単価:24,999 円(坪)
-
全特六本木WEST
東京都港区六本木1-7-27
坪数:87.33 坪
坪単価:22,000 円(坪)
-
第5横芝ビル
東京都港区西麻布2-13-15
坪数:113.61 坪
坪単価:16,020 円(坪)
-
スハラ六本木ビル
東京都港区六本木3-3-27
坪数:102.45 坪
坪単価:22,273 円(坪)