KPP八重洲ビル(物件No:21585112)
KPP八重洲ビルは、中央区京橋にある貸事務所物件です。最寄り駅は東京メトロ銀座線京橋駅、東京メトロ東西線日本橋駅、JR東京駅、都営浅草線宝町駅です。2011年竣工で、基準階が200坪の賃貸オフィスビルです。床はOAフロアとなっています。トイレは男女別で、空調は個別空調です。エレベーターは4基あり、セキュリティは機械警備となっています。駐車場が利用可能です。複数路線利用可能で、交通アクセスの良い、中央区京橋の貸事務所です。
| 階 | 面積 | 賃料 | 共益費 | 敷金 | 入居日 | お問合せ | お気に入り |
|---|---|---|---|---|---|---|---|
|
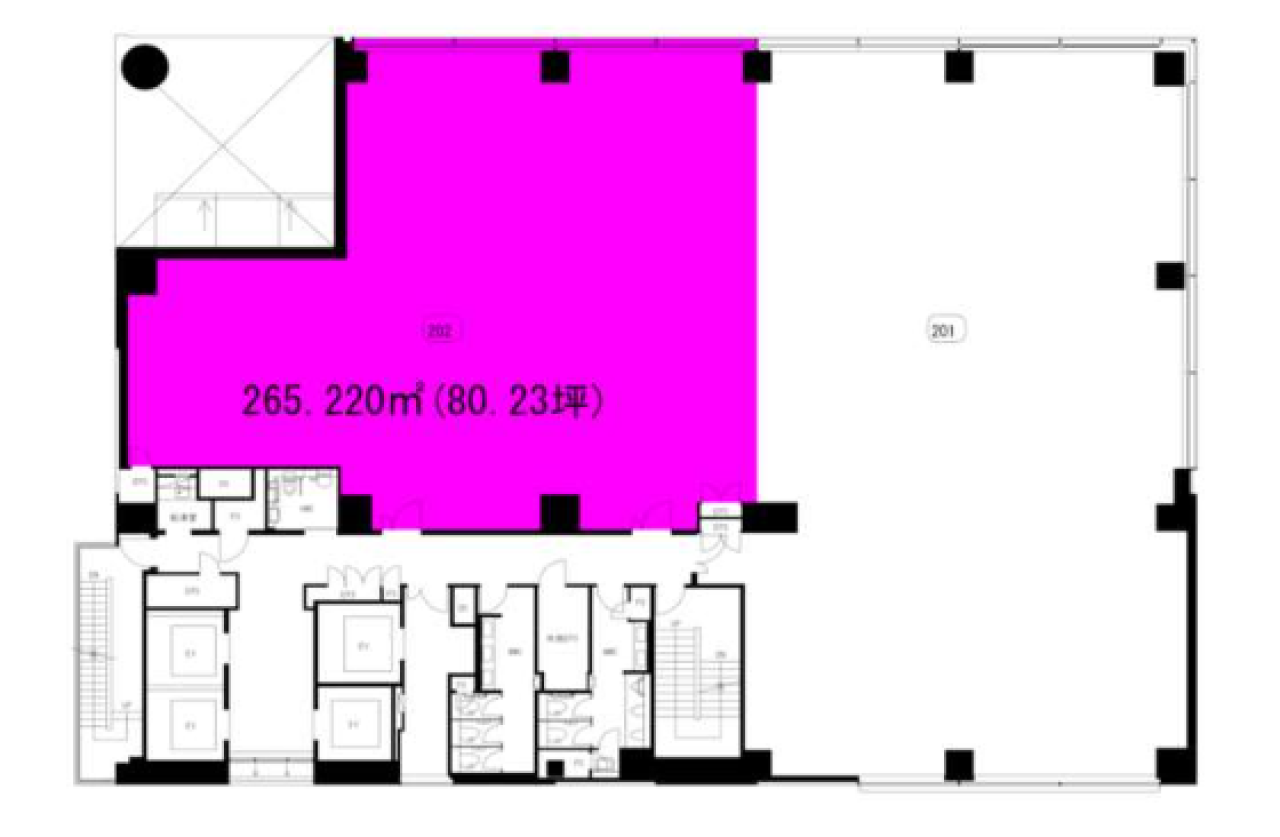
2F
(202区画) |
80.23 坪 265.22 ㎡ |
相談 |
相談 |
相談 |
2026/06/01 |
|
|
| 階 | 面積 | 賃料 | 共益費 | 敷金 | 入居日 | お問合せ | お気に入り |
|---|---|---|---|---|---|---|---|
|
2F
(202区画) |
80.23 坪 265.22 ㎡ |
相談 |
相談 |
相談 |
2026/06/01 |
|
|
-
物件情報
-
設備情報
- トイレ
- 室外男女別
- 床
- -
- 空調
- 個別空調
- セキュリティ
- 有
- 駐車場
- 有
- 会議室
- -
- エレベーター
- 4基
- 天井高
- -
-
間取り図
-
近隣相場情報
京橋1丁目(50~100坪)の相場
19001 円 (坪)
※ビルサク調べ
周辺施設情報
| コンビニ |
ローソン/日本橋三丁目/55m(徒歩1分) ローソン/ナチュラル 京橋一丁目/10m(徒歩1分) |
|---|---|
| 郵便局/銀行 |
西日本シティ銀行/東京支店/[営業時間]09:00~17:00/38m(徒歩1分) 東日本銀行/本店営業部/[営業時間]平日 9:00~15:00/71m(徒歩1分) |
| 飲食店 |
薮伊豆総本店/11時00分~15時00分,17時00分~21時00分/280m(徒歩4分) 大衆食堂 フクロウ/11時30分~23時00分/260m(徒歩3分) |
| カフェ |
プロント/日本橋三丁目店/営業時間]平日:カフェ 7:00~17:30 バー 17:30~23:00/270m(徒歩4分) ベローチェ/八丁堀一丁目店/[営業時間]7:00~22:00 土・日・祝7:00~21:00/270m(徒歩4分) |
| コインパーキング |
公社駐車場/東京都 八重洲 [料金] 30分250円(8:00~20:00) 60分250円 (20:00~8:00) [最大料金] 入庫後12時間まで最大2,400円 ワンデ-パス 3,000円/購入当日 [台数]265台 大栄パーク/京橋1丁目 [料金] 全日08:00~22:00 30分/600円 全日22:00~08:00 60分/100円 [台数]5 台 |
周辺地図
KPP八重洲ビルは、中央区京橋にある貸事務所物件です。最寄り駅は東京メトロ銀座線京橋駅、東京メトロ東西線日本橋駅、JR東京駅、都営浅草線宝町駅です。2011年竣工で、基準階が200坪の賃貸オフィスビルです。床はOAフロアとなっています。トイレは男女別で、空調は個別空調です。エレベーターは4基あり、セキュリティは機械警備となっています。駐車場が利用可能です。複数路線利用可能で、交通アクセスの良い、中央区京橋の貸事務所です。
全フロア情報
更新日:2026年1月6日
| 階 | 面積 | 賃料 | 共益費 | 敷金 | 入居日 | お問合せ | お気に入り | |
|---|---|---|---|---|---|---|---|---|
| 2F |
185.68 坪 613.82 ㎡ |
※現在空室情報はございません |
※現在空室情報は 確認する |
|||||
|
2F
(201区画) |
105.45 坪 348.59 ㎡ |
相談 |
相談 |
12ヶ月 |
即日 |
|
|
|
|
2F
(202区画) |
80.23 坪 265.22 ㎡ |
相談 |
相談 |
相談 |
2026/06/01 |
|
|
|
| 3F |
200.67 坪 663.37 ㎡ |
※現在空室情報はございません |
※現在空室情報は 確認する |
|||||
| 4F |
200.67 坪 663.37 ㎡ |
※現在空室情報はございません |
※現在空室情報は 確認する |
|||||
| 5F |
200.67 坪 663.37 ㎡ |
※現在空室情報はございません |
※現在空室情報は 確認する |
|||||
| 6F |
200.66 坪 663.34 ㎡ |
※現在空室情報はございません |
※現在空室情報は 確認する |
|||||
| 7F |
200.66 坪 663.34 ㎡ |
※現在空室情報はございません |
※現在空室情報は 確認する |
|||||
| 8F |
200.11 坪 661.52 ㎡ |
※現在空室情報はございません |
※現在空室情報は 確認する |
|||||
| 9F |
200.11 坪 661.52 ㎡ |
※現在空室情報はございません |
※現在空室情報は 確認する |
|||||
お問い合わせ
似た条件の物件はこちら
-
新々会館
東京都中央区日本橋3-14-1
坪数:82.95 坪
坪単価:15,000 円(坪)
-
エイチ・アール・ネット日本橋ビル
東京都中央区日本橋本町4-7-10
坪数:60.47 坪
坪単価:12,000 円(坪)
-
斉藤ビル
東京都中央区京橋3-14-6
坪数:74.95 坪
坪単価:15,000 円(坪)
-
テラサキ第2ビル
東京都中央区日本橋室町1-12-15
坪数:82.31 坪
坪単価:21,000 円(坪)
-
光洋ビル
東京都中央区日本橋本町4-6-7
坪数:63.4 坪
坪単価:16,000 円(坪)
-
市橋ビル
東京都中央区日本橋本町4-15-11
坪数:65 坪
坪単価:11,500 円(坪)
-
日本橋本町THビル
東京都中央区日本橋本町4-5-13
坪数:60.93 坪
坪単価:14,500 円(坪)
-
大三新日本橋ビル
東京都中央区日本橋本町3-4-7
坪数:69.34 坪
坪単価:13,000 円(坪)