西新宿PARKWEST(物件No:21482187)
西新宿PARKWESTは、新宿区西新宿にある貸事務所物件で最寄り駅は地下鉄丸ノ内線西新宿駅、大江戸線都庁前駅です。1994年竣工で基準階が252坪の賃貸オフィスビルです。床はOAフロアとなっています。トイレは室外男女別で、空調は個別空調です。エレベーターは4基あります。セキュリティは機械警備となっています。駐車場が利用可能です。西新宿のオフィスビル街に位置し、落ち着いた雰囲気の新宿区西新宿の貸事務所です。
| 階 | 面積 | 賃料 | 共益費 | 敷金 | 入居日 | お問合せ | お気に入り |
|---|---|---|---|---|---|---|---|
|
9F
(6-8区画) |
63.58 坪 210.18 ㎡ |
1,271,600 円 46,905 円(坪) |
254,320 円 4,000 円(坪) |
12,716,000 円 10 ヶ月 |
相談 |
|
|
| 階 | 面積 | 賃料 | 共益費 | 敷金 | 入居日 | お問合せ | お気に入り |
|---|---|---|---|---|---|---|---|
|
9F
(6-8区画) |
63.58 坪 210.18 ㎡ |
1,271,600 円 46,905 円(坪) |
254,320 円 4,000 円(坪) |
12,716,000 円 10 ヶ月 |
相談 |
|
|
-
物件情報
-
設備情報
- トイレ
- 室外男女別
- 床
- フリーアクセス
- 空調
- 個別空調
- セキュリティ
- 有
- 駐車場
- 有
- 会議室
- -
- エレベーター
- 4基
- 天井高
- 2700mm
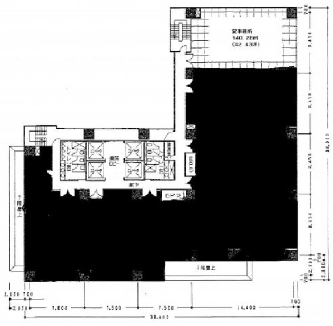
-
間取り図
-
近隣相場情報
西新宿6丁目(50~100坪)の相場
28851 円 (坪)
※ビルサク調べ
周辺施設情報
| コンビニ |
セブンイレブン/DR西新宿ダイワロイネットホテル/110m(徒歩1分) ファミリーマート/タカノ西新宿店/230m(徒歩3分) |
|---|---|
| 郵便局/銀行 |
セブン銀行/DR西新宿ダイワロイネットホテ店/[営業時間]24時間営業 [ATM台数]1/110m(徒歩1分) みずほ銀行/ATM マルエツプチ西新宿六丁目店出張所/[営業時間]ATM 平日 /Monday - Friday 0:00~24:00 土曜日/Saturday 0:00~22:00 日曜日/Sunday 8:00~24:00 祝日・振替休日 /Public Holidays 曜日に準ずる 備考 通帳繰越機 設置なし/290m(徒歩4分) |
| 飲食店 |
なか卯 西新宿店/24 時間営業/200m(徒歩3分) 青蓮 新宿オークタワー店/11時30分~15時30分、17時30分~23時00分/46m(徒歩1分) |
| カフェ |
スターバックス/新宿グリーンタワービル店/[営業時間]月~金: 07:00~20:00 土日祝: 07:30~19:30 [休業日]不定休 [備考]無線LAN:STARBUCKS/docomo/Softbank/au/Wi2 300/280m(徒歩4分) 東京ベリーニカフェ 西新宿店/11時00分~22時00分/140m(徒歩2分) |
| コインパーキング |
三井のリパーク/西新宿三井ビル駐車場 [料金] 全日 00:00~24:00 30分/250円 [最大料金] 入庫後24時間2,800円(繰り返しあり) [台数]36 コインパーク/メインステージ西新宿 [料金] 【 月~金 】 ■通常料金 【 0:00~24:00 】 20分/400円 【土日祝】 ■通常料金 【 0:00~24:00 】 30分/400円 [最大料金] 【 月~金 】 ■最大料金 【 22:00~8:00 】 500円 【土日祝】 ■最大料金 【 22:00~8:00 】 500円 [台数][車: 2台] |
周辺地図
西新宿PARKWESTは、新宿区西新宿にある貸事務所物件で最寄り駅は地下鉄丸ノ内線西新宿駅、大江戸線都庁前駅です。1994年竣工で基準階が252坪の賃貸オフィスビルです。床はOAフロアとなっています。トイレは室外男女別で、空調は個別空調です。エレベーターは4基あります。セキュリティは機械警備となっています。駐車場が利用可能です。西新宿のオフィスビル街に位置し、落ち着いた雰囲気の新宿区西新宿の貸事務所です。
全フロア情報
更新日:2025年11月21日
| 階 | 面積 | 賃料 | 共益費 | 敷金 | 入居日 | お問合せ | お気に入り | |
|---|---|---|---|---|---|---|---|---|
|
3F
(1区画) |
48.59 坪 160.63 ㎡ |
※現在空室情報はございません |
※現在空室情報は 確認する |
|||||
|
3F
(2区画) |
27.29 坪 90.21 ㎡ |
※現在空室情報はございません |
※現在空室情報は 確認する |
|||||
|
3F
(3区画) |
75.62 坪 249.98 ㎡ |
※現在空室情報はございません |
※現在空室情報は 確認する |
|||||
|
4F
(1区画) |
26.54 坪 87.74 ㎡ |
※現在空室情報はございません |
※現在空室情報は 確認する |
|||||
|
4F
(2区画) |
87.71 坪 289.95 ㎡ |
※現在空室情報はございません |
※現在空室情報は 確認する |
|||||
|
4F
(3区画) |
40.5 坪 133.88 ㎡ |
※現在空室情報はございません |
※現在空室情報は 確認する |
|||||
|
4F
(4区画) |
29.03 坪 95.96 ㎡ |
※現在空室情報はございません |
※現在空室情報は 確認する |
|||||
|
4F
(405区画) |
26.54 坪 87.74 ㎡ |
※現在空室情報はございません |
※現在空室情報は 確認する |
|||||
|
5F
(1区画) |
16.88 坪 55.8 ㎡ |
※現在空室情報はございません |
※現在空室情報は 確認する |
|||||
|
5F
(2区画) |
27.19 坪 89.88 ㎡ |
※現在空室情報はございません |
※現在空室情報は 確認する |
|||||
|
5F
(3区画) |
39.87 坪 131.8 ㎡ |
※現在空室情報はございません |
※現在空室情報は 確認する |
|||||
|
5F
(508区画) |
30.59 坪 101.14 ㎡ |
※現在空室情報はございません |
※現在空室情報は 確認する |
|||||
|
6F
(03-04区画) |
87.71 坪 289.96 ㎡ |
※現在空室情報はございません |
※現在空室情報は 確認する |
|||||
|
6F
(1区画) |
44.08 坪 145.72 ㎡ |
※現在空室情報はございません |
※現在空室情報は 確認する |
|||||
|
7F
(1区画) |
30.59 坪 101.12 ㎡ |
※現在空室情報はございません |
※現在空室情報は 確認する |
|||||
|
7F
(2区画) |
87.71 坪 289.95 ㎡ |
※現在空室情報はございません |
※現在空室情報は 確認する |
|||||
|
7F
(705区画) |
26.54 坪 87.74 ㎡ |
※現在空室情報はございません |
※現在空室情報は 確認する |
|||||
|
8F
(03-04区画) |
80.43 坪 265.88 ㎡ |
※現在空室情報はございません |
※現在空室情報は 確認する |
|||||
|
8F
(03-05区画) |
104 坪 343.81 ㎡ |
※現在空室情報はございません |
※現在空室情報は 確認する |
|||||
|
8F
(1区画) |
168.42 坪 556.76 ㎡ |
※現在空室情報はございません |
※現在空室情報は 確認する |
|||||
|
8F
(802区画) |
39.88 坪 131.83 ㎡ |
※現在空室情報はございません |
※現在空室情報は 確認する |
|||||
|
8F
(805区画) |
23.57 坪 77.92 ㎡ |
※現在空室情報はございません |
※現在空室情報は 確認する |
|||||
|
8F
(806区画) |
28.02 坪 92.63 ㎡ |
※現在空室情報はございません |
※現在空室情報は 確認する |
|||||
|
8F
(807区画) |
36.4 坪 120.33 ㎡ |
※現在空室情報はございません |
※現在空室情報は 確認する |
|||||
|
8F
(808区画) |
31.38 坪 103.74 ㎡ |
※現在空室情報はございません |
※現在空室情報は 確認する |
|||||
| 9F |
252.79 坪 835.67 ㎡ |
※現在空室情報はございません |
※現在空室情報は 確認する |
|||||
|
9F
(01-04区画) |
169.72 坪 561.06 ㎡ |
※現在空室情報はございません |
※現在空室情報は 確認する |
|||||
|
9F
(06-08区画) |
63.58 坪 210.18 ㎡ |
1,271,589 円 20,000 円(坪) |
254,318 円 4,000 円(坪) |
12ヶ月 |
即日 |
|
|
|
|
9F
(1区画) |
87.99 坪 290.88 ㎡ |
※現在空室情報はございません |
※現在空室情報は 確認する |
|||||
|
9F
(6-8区画) |
63.58 坪 210.18 ㎡ |
1,271,600 円 46,905 円(坪) |
254,320 円 4,000 円(坪) |
12,716,000 円 10 ヶ月 |
相談 |
|
|
|
|
9F
(901区画) |
36.47 坪 120.56 ㎡ |
※現在空室情報はございません |
※現在空室情報は 確認する |
|||||
|
9F
(902区画) |
42.41 坪 140.2 ㎡ |
※現在空室情報はございません |
※現在空室情報は 確認する |
|||||
|
9F
(903区画) |
84.85 坪 280.5 ㎡ |
※現在空室情報はございません |
※現在空室情報は 確認する |
|||||
|
9F
(905区画) |
19.18 坪 63.4 ㎡ |
※現在空室情報はございません |
※現在空室情報は 確認する |
|||||
|
9F
(906区画) |
27.11 坪 89.61 ㎡ |
※現在空室情報はございません |
※現在空室情報は 確認する |
|||||
|
9F
(A区画) |
51.33 坪 169.7 ㎡ |
※現在空室情報はございません |
※現在空室情報は 確認する |
|||||
|
10F
(01-04区画) |
169.72 坪 561.05 ㎡ |
※現在空室情報はございません |
※現在空室情報は 確認する |
|||||
|
10F
(02-04区画) |
127.29 坪 420.79 ㎡ |
2,545,780 円 20,000 円(坪) |
509,160 円 4,000 円(坪) |
12ヶ月 |
相談 |
|
|
|
|
10F
(05-06区画) |
51.52 坪 170.31 ㎡ |
※現在空室情報はございません |
※現在空室情報は 確認する |
|||||
|
10F
(07-08区画) |
36.47 坪 120.56 ㎡ |
※現在空室情報はございません |
※現在空室情報は 確認する |
|||||
|
10F
(1区画) |
120.3 坪 397.69 ㎡ |
※現在空室情報はございません |
※現在空室情報は 確認する |
|||||
|
10F
(1001区画) |
42.43 坪 140.27 ㎡ |
※現在空室情報はございません |
※現在空室情報は 確認する |
|||||
|
10F
(1002区画) |
42.43 坪 140.26 ㎡ |
※現在空室情報はございません |
※現在空室情報は 確認する |
|||||
|
11F
(01-03区画) |
127.29 坪 420.79 ㎡ |
※現在空室情報はございません |
※現在空室情報は 確認する |
|||||
|
11F
(02+03区画) |
84.86 坪 280.53 ㎡ |
1,697,200 円 20,000 円(坪) |
339,440 円 4,000 円(坪) |
20,366,400 円 12 ヶ月 |
相談 |
|
|
|
|
11F
(1101区画) |
42.43 坪 140.26 ㎡ |
848,600 円 20,000 円(坪) |
169,715 円 4,000 円(坪) |
8,486,000 円 10 ヶ月 |
2026/03 |
|
|
|
|
12F
(1区画) |
81.83 坪 270.51 ㎡ |
※現在空室情報はございません |
※現在空室情報は 確認する |
|||||
|
12F
(2区画) |
82.31 坪 272.1 ㎡ |
※現在空室情報はございません |
※現在空室情報は 確認する |
|||||
|
13F
(01-03区画) |
120.93 坪 399.77 ㎡ |
2,418,600 円 20,000 円(坪) |
483,720 円 4,000 円(坪) |
24,186,000 円 10 ヶ月 |
即日 |
|
|
|
|
13F
(07-08区画) |
36.4 坪 120.34 ㎡ |
※現在空室情報はございません |
※現在空室情報は 確認する |
|||||
|
13F
(1区画) |
93.39 坪 308.73 ㎡ |
※現在空室情報はございません |
※現在空室情報は 確認する |
|||||
お問い合わせ
似た条件の物件はこちら
-
斉藤ビル
東京都新宿区西新宿7-5-3
坪数:70.16 坪
坪単価:15,000 円(坪)
-
Uni-works新宿御苑
東京都新宿区新宿1-12-5
坪数:48.88 坪
坪単価:28,000 円(坪)
-
エルグランジュテ新宿
東京都新宿区歌舞伎町2-45-6
坪数:68.3 坪
坪単価:24,451 円(坪)
-
アソルティ西新宿
東京都新宿区西新宿7-3-4
坪数:60.33 坪
坪単価:30,000 円(坪)
-
新宿セントランドビル
東京都新宿区西新宿3-5-1
坪数:72.12 坪
坪単価:20,000 円(坪)
-
Verde Vista新宿御苑
東京都新宿区新宿1-34-5
坪数:75.08 坪
坪単価:14,500 円(坪)
-
菅野ビル
東京都新宿区西新宿6-2-16
坪数:48.46 坪
坪単価:19,500 円(坪)
-
壱丁目参番館
東京都新宿区新宿1-3-12
坪数:66.03 坪
坪単価:22,000 円(坪)
-
新宿タツミビル
東京都新宿区西新宿6-16-6
坪数:67.02 坪
坪単価:14,500 円(坪)