溜池山王葵ビル(物件No:21389154)
溜池山王葵ビルは、港区赤坂にある貸事務所物件です。最寄り駅は東京メトロ南北線溜池山王駅、東京メトロ千代田線赤坂駅、国会議事堂前駅、です。1969年竣工で、基準階が49.78坪の賃貸オフィスビルです。床はOAフロアとなっています。空調は個別空調で、トイレは室内に有り、男女別です。機械警備、エレベーターは1基あります。溜池山王駅から徒歩2分で、複数路線利用可能な、アクセスの良い港区赤坂の貸事務所です。
| 階 | 面積 | 賃料 | 共益費 | 敷金 | 入居日 | お問合せ | お気に入り |
|---|---|---|---|---|---|---|---|
|
4F
(401区画) |
8.42 坪 27.83 ㎡ |
180,000 円 21,378 円(坪) |
無し |
540,000 円 3 ヶ月 |
2026/02/01 |
|
|
| 階 | 面積 | 賃料 | 共益費 | 敷金 | 入居日 | お問合せ | お気に入り |
|---|---|---|---|---|---|---|---|
|
4F
(401区画) |
8.42 坪 27.83 ㎡ |
180,000 円 21,378 円(坪) |
無し |
540,000 円 3 ヶ月 |
2026/02/01 |
|
|
-
物件情報
-
設備情報
- トイレ
- 室内男女別
- 床
- フリーアクセス
- 空調
- 個別空調
- セキュリティ
- 有
- 駐車場
- 無
- 会議室
- -
- エレベーター
- 1基
- 天井高
- -
-
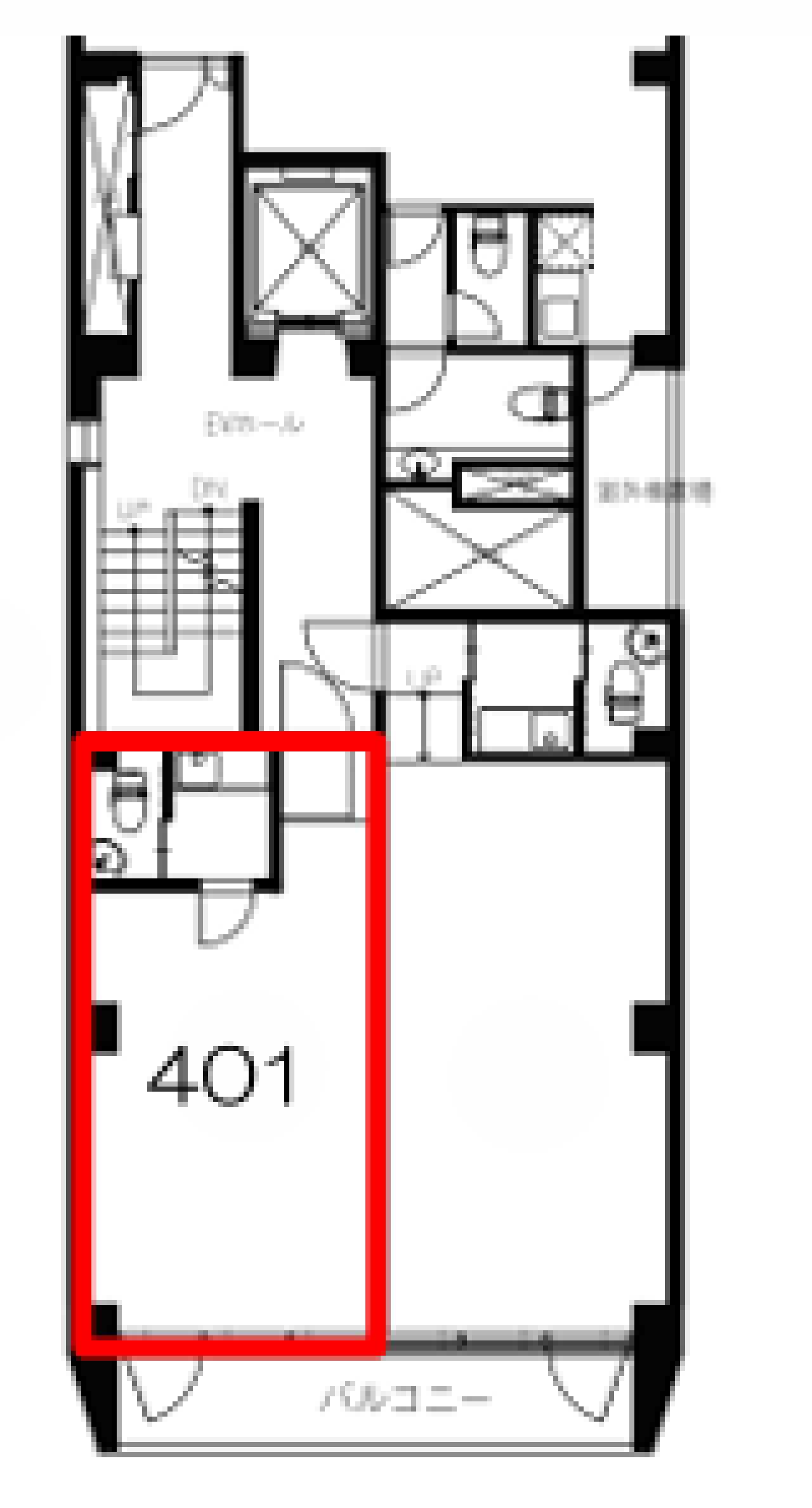
間取り図
-
近隣相場情報
赤坂2丁目(20坪以下)の相場
20140 円 (坪)
※ビルサク調べ
周辺施設情報
| コンビニ |
ローソン/赤坂インターシティAIR/350m(徒歩5分) セブンイレブン/赤坂Bizタワー/500m(徒歩6分) |
|---|---|
| 郵便局/銀行 |
りそな銀行/赤坂支店/[営業時間]平日/9:00~17:00 [ATM]平日/7:00~23:00 土/7:00~21:00 日・祝/8:00~21:00/170m(徒歩2分) ローソン銀行/溜池山王共同出張所/[営業時間]24時間 [備考]ご利用可能な金融機関 当店のATM管理はローソン銀行です [取扱]海外発行カード対応、視覚障害者対応/250m(徒歩3分) |
| 飲食店 |
まさむね/11時30分~15時00分、18時00分~22時00分/130m(徒歩2分) おと和/[月~金]11:00~14:00(L.O)、17:30~23:30(L.O.23:00)/150m(徒歩2分) |
| カフェ |
ドトール/赤坂1丁目店/[営業時間]平日:6:45~20:30 備 考:ラストオーダー 20:00 土曜日:7:45~19:30 備 考:ラストオーダー 19:00 日 祝:7:45~19:30 備 考:ラストオーダー 19:00 [休業日]なし [備考]総席数:131 禁煙席:109 喫煙席:22/350m(徒歩5分) タリーズ/虎ノ門JTビル店/[営業時間]平日:7:30~20:00 土 :休業日 日祝:休業日 [備考]Tully's Wi-Fi、喫煙ルーム/600m(徒歩8分) |
| コインパーキング |
NPC24H/赤坂2丁目 [料金] 20分/300円 [最大料金] 区間最大 2800円(8時~18時) 全日夜間 1000円(18時~8時) [台数]1台 タイムズ駐車場/TNS永田町2丁目 [料金] [月~土]通常料金 / 00:00-00:00 20分 300円 [日・祝]通常料金 / 00:00-00:00 20分 300円 [最大料金] [月~土]08:00-19:00 最大料金3000円 19:00-08:00 最大料金1000円 [日・祝]08:00-19:00 最大料金1600円 19:00-08:00 最大料金1000円 [台数]4 |
周辺地図
溜池山王葵ビルは、港区赤坂にある貸事務所物件です。最寄り駅は東京メトロ南北線溜池山王駅、東京メトロ千代田線赤坂駅、国会議事堂前駅、です。1969年竣工で、基準階が49.78坪の賃貸オフィスビルです。床はOAフロアとなっています。空調は個別空調で、トイレは室内に有り、男女別です。機械警備、エレベーターは1基あります。溜池山王駅から徒歩2分で、複数路線利用可能な、アクセスの良い港区赤坂の貸事務所です。
全フロア情報
更新日:2025年11月26日
| 階 | 面積 | 賃料 | 共益費 | 敷金 | 入居日 | お問合せ | お気に入り | |
|---|---|---|---|---|---|---|---|---|
|
2F
(202区画) |
29.04 坪 96 ㎡ |
※現在空室情報はございません |
※現在空室情報は 確認する |
|||||
|
2F
(A区画) |
20.15 坪 66.61 ㎡ |
※現在空室情報はございません |
※現在空室情報は 確認する |
|||||
|
3F
(301区画) |
20.09 坪 66.41 ㎡ |
321,600 円 16,008 円(坪) |
無 |
964,800 円 3 ヶ月 |
2025/11 |
|
|
|
|
3F
(302区画) |
29.06 坪 96.07 ㎡ |
※現在空室情報はございません |
※現在空室情報は 確認する |
|||||
|
4F
(401区画) |
8.42 坪 27.83 ㎡ |
180,000 円 21,378 円(坪) |
無し |
540,000 円 3 ヶ月 |
2026/02/01 |
|
|
|
|
4F
(402区画) |
29.01 坪 95.9 ㎡ |
※現在空室情報はございません |
※現在空室情報は 確認する |
|||||
|
4F
(403区画) |
9.68 坪 32 ㎡ |
※現在空室情報はございません |
※現在空室情報は 確認する |
|||||
|
5F
(502区画) |
29.06 坪 96.07 ㎡ |
※現在空室情報はございません |
※現在空室情報は 確認する |
|||||
|
6F
(603区画) |
11.99 坪 39.64 ㎡ |
※現在空室情報はございません |
※現在空室情報は 確認する |
|||||
|
7F
(701区画) |
11.29 坪 37.32 ㎡ |
※現在空室情報はございません |
※現在空室情報は 確認する |
|||||
|
7F
(702区画) |
20.16 坪 66.64 ㎡ |
※現在空室情報はございません |
※現在空室情報は 確認する |
|||||
|
7F
(703区画) |
11.75 坪 38.84 ㎡ |
※現在空室情報はございません |
※現在空室情報は 確認する |
|||||
|
9F
(901区画) |
29.04 坪 96 ㎡ |
※現在空室情報はございません |
※現在空室情報は 確認する |
|||||
お問い合わせ
似た条件の物件はこちら
-
赤坂ベルゴ
東京都港区赤坂3-11-14
坪数:6.22 坪
坪単価:18,269 円(坪)
-
第4文成ビル
東京都港区赤坂7-10-9
坪数:13 坪
坪単価:14,000 円(坪)
-
AKASAKA8 BLDG.
東京都港区赤坂8-8-10
坪数:10.57 坪
坪単価:13,245 円(坪)
-
笠松千代田ビル
東京都千代田区永田町2-17-4
坪数:11.42 坪
坪単価:23,993 円(坪)
-
祥文堂ビル
東京都港区赤坂1-5-13
坪数:11.76 坪
坪単価:22,000 円(坪)
-
No.1ニイクラビル
東京都港区赤坂1-7-4
坪数:12.41 坪
坪単価:37,873 円(坪)
-
赤坂2丁目アネックス
東京都港区赤坂2-19-8
坪数:9.57 坪
坪単価:19,000 円(坪)
-
NINETY TWO13
東京都港区赤坂9-2-13
坪数:9.68 坪
坪単価:7,585 円(坪)
-
アイオス永田町
東京都千代田区永田町2-17-17
坪数:9.98 坪
坪単価:37,375 円(坪)