秋葉原村井ビル(物件No:21387019)
秋葉原村井ビルは、千代田区神田佐久間町にある貸事務所物件です。最寄り駅は東京メトロ日比谷線、JR秋葉原駅、都営新宿線岩本町駅です。1987年竣工で基準階が69.01坪の賃貸オフィスビルです。床はOAフロア、タイルカーペットとなっています。トイレは男女別で、空調は個別空調です。エレベーターは1基あり、セキュリティは機械警備となっています。駐車場が利用可能です。秋葉原駅周辺には様々な店舗が立ち並んでおり、交通アクセスも良く、利便性の高い千代田区神田佐久間町の貸事務所です。
-
物件情報
-
設備情報
- トイレ
- -
- 床
- フリーアクセス
- 空調
- 個別空調
- セキュリティ
- 有
- 駐車場
- 有
- 会議室
- -
- エレベーター
- 1基
- 天井高
- 2400mm
-
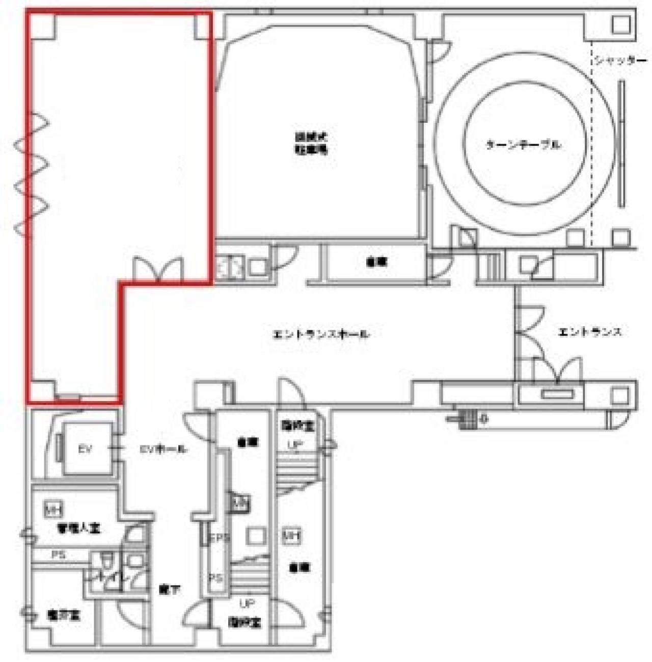
間取り図
-
近隣相場情報
神田佐久間町1丁目(20坪以下)の相場
13800 円 (坪)
※ビルサク調べ
周辺施設情報
| コンビニ |
ファミリーマート/秋葉原昭和通り店/39m(徒歩1分) セブンイレブン/秋葉原センタープレイス/220m(徒歩3分) |
|---|---|
| 郵便局/銀行 |
郵便局/ATM ファミリーマート秋葉原昭和通り店内出張所/[ATM]平日0:05~23:55、土曜0:05~23:55、日曜0:05~23:55/100m(徒歩1分) 三菱UFJ銀行/ATM ヨドバシAkiba/[営業時間]平日 7:00~24:00 土曜日 7:00~24:00 日・祝日 7:00~24:00 *毎月第2土曜日の21:00~翌朝7:00はご利用いただけません。/100m(徒歩1分) |
| 飲食店 |
トゥッカーノグリル 秋葉原ヨドバシ店 1号店/10時30分~23時00分/98m(徒歩1分) Karaage Agebaka/9時30分~23時00分/230m(徒歩3分) |
| カフェ |
ベローチェ/秋葉原駅前広場店/[営業時間]7:00~23:00/130m(徒歩2分) 丸福珈琲店/ヨドバシAKIBA店(関東)/[営業時間]9:30~22:00(LO 21:30)/140m(徒歩2分) |
| コインパーキング |
タイムズ駐車場/ヨドバシAkiba [料金] [月~金]通常料金 / 07:30-00:00 60分 600円 (ただし60分以降30分 300円) [土・日・祝]通常料金 / 07:30-00:00 60分 600円 (ただし60分以降30分 300円) [最大料金] [月~金]当日1日最大料金1600円(24時迄) [台数]511 トラストパーク/【ネットのみ予約可】秋葉原センタープレイス [料金] 30分300円 [最大料金] <平日> (07:30~21:00)最大1600円 <土日祝> (09:00~21:00)最大1800円 [台数]42台 |
周辺地図
秋葉原村井ビルは、千代田区神田佐久間町にある貸事務所物件です。最寄り駅は東京メトロ日比谷線、JR秋葉原駅、都営新宿線岩本町駅です。1987年竣工で基準階が69.01坪の賃貸オフィスビルです。床はOAフロア、タイルカーペットとなっています。トイレは男女別で、空調は個別空調です。エレベーターは1基あり、セキュリティは機械警備となっています。駐車場が利用可能です。秋葉原駅周辺には様々な店舗が立ち並んでおり、交通アクセスも良く、利便性の高い千代田区神田佐久間町の貸事務所です。
全フロア情報
更新日:2025年10月31日
| 階 | 面積 | 賃料 | 共益費 | 敷金 | 入居日 | お問合せ | お気に入り | |
|---|---|---|---|---|---|---|---|---|
| 1F |
18.87 坪 62.38 ㎡ |
※現在空室情報はございません |
※現在空室情報は 確認する |
|||||
| 2F |
69.01 坪 228.13 ㎡ |
※現在空室情報はございません |
※現在空室情報は 確認する |
|||||
| 3F |
69.01 坪 228.13 ㎡ |
※現在空室情報はございません |
※現在空室情報は 確認する |
|||||
|
4F
(401区画) |
69.01 坪 228.13 ㎡ |
※現在空室情報はございません |
※現在空室情報は 確認する |
|||||
| 6F |
69.01 坪 228.13 ㎡ |
※現在空室情報はございません |
※現在空室情報は 確認する |
|||||
お問い合わせ
似た条件の物件はこちら
-
KSYビル
東京都千代田区神田須田町2-15
坪数:22.12 坪
坪単価:13,562 円(坪)
-
KM千代田ビル
東京都千代田区岩本町1-12-1
坪数:20.02 坪
坪単価:12,996 円(坪)
-
アーバンスクエア神田ビル
東京都千代田区神田須田町1-18
坪数:14.18 坪
坪単価:17,000 円(坪)
-
TOKENビル
東京都千代田区外神田5-2-4
坪数:21.37 坪
坪単価:11,500 円(坪)
-
第二櫻井ビル
東京都千代田区神田佐久間町3-5
坪数:17.24 坪
坪単価:11,996 円(坪)
-
新東ビル
東京都千代田区内神田2-8-3
坪数:21.5 坪
坪単価:11,000 円(坪)
-
神田乗物町ビル
東京都千代田区神田北乗物町2
坪数:20.88 坪
坪単価:13,000 円(坪)
-
松本ビル
東京都千代田区外神田6-2-8
坪数:20.6 坪
坪単価:10,997 円(坪)
-
野沢ビル
東京都千代田区外神田6-7-4
坪数:14 坪
坪単価:12,143 円(坪)
-
藤和内神田ビル
東京都千代田区内神田2-4-4
坪数:18.49 坪
坪単価:16,500 円(坪)
関連エリアから探す
- 内神田
- 神田淡路町
- 神田小川町
- 神田鍛冶町
- 神田須田町
- 神田駿河台
- 神田多町
- 神田司町
- 神田錦町
- 神田美土代町
- 岩本町
- 鍛冶町
- 神田岩本町
- 神田北乗物町
- 神田紺屋町
- 神田富山町
- 神田西福田町
- 神田東松下町
- 神田東紺屋町
- 神田美倉町
- 東神田
- 神田相生町
- 神田和泉町
- 神田佐久間町
- 神田佐久間河岸
- 神田練塀町
- 神田花岡町
- 神田松永町
- 外神田
- 神田平河町