VORT麹町大通り(物件No:21353946)
Syncs Kojimachi Bldgは、東京都千代田区麹町4-2-11にある賃貸オフィスです。最寄駅は東京メトロ有楽町線麹町駅徒歩2分、JR中央・総武線四ツ谷駅徒歩8分、東京メトロ半蔵門線半蔵門駅徒歩8分と、複数路線利用可能なアクセス良好な立地です。2024年竣工の鉄骨造、地上13階建てのビルです。耐震構造を採用しています。
| 階 | 面積 | 賃料 | 共益費 | 敷金 | 入居日 | お問合せ | お気に入り |
|---|---|---|---|---|---|---|---|
| 1F |
11.92 坪 39.42 ㎡ |
相談 |
込 |
10ヶ月 |
2026/08/13 |
|
|
| 階 | 面積 | 賃料 | 共益費 | 敷金 | 入居日 | お問合せ | お気に入り |
|---|---|---|---|---|---|---|---|
| 1F |
11.92 坪 39.42 ㎡ |
相談 |
込 |
10ヶ月 |
2026/08/13 |
|
|
-
物件情報
-
設備情報
- トイレ
- -
- 床
- -
- 空調
- -
- セキュリティ
- -
- 駐車場
- 無
- 会議室
- -
- エレベーター
- -
- 天井高
- 3385mm
-
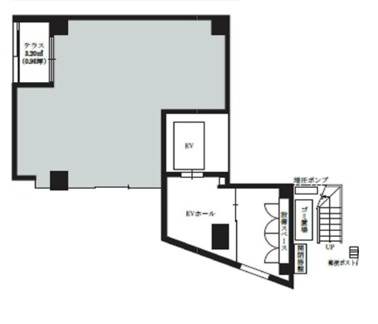
間取り図
-
近隣相場情報
麹町4丁目(20坪以下)の相場
17473 円 (坪)
※ビルサク調べ
周辺地図
Syncs Kojimachi Bldgは、東京都千代田区麹町4-2-11にある賃貸オフィスです。最寄駅は東京メトロ有楽町線麹町駅徒歩2分、JR中央・総武線四ツ谷駅徒歩8分、東京メトロ半蔵門線半蔵門駅徒歩8分と、複数路線利用可能なアクセス良好な立地です。2024年竣工の鉄骨造、地上13階建てのビルです。耐震構造を採用しています。
全フロア情報
更新日:2026年3月12日
| 階 | 面積 | 賃料 | 共益費 | 敷金 | 入居日 | お問合せ | お気に入り | |
|---|---|---|---|---|---|---|---|---|
| 1F |
11.92 坪 39.42 ㎡ |
相談 |
込 |
10ヶ月 |
2026/08/13 |
|
|
|
| 4F |
17.87 坪 59.07 ㎡ |
※現在空室情報はございません |
※現在空室情報は 確認する |
|||||
| 5F |
17.87 坪 59.07 ㎡ |
※現在空室情報はございません |
※現在空室情報は 確認する |
|||||
| 6F |
17.87 坪 59.07 ㎡ |
※現在空室情報はございません |
※現在空室情報は 確認する |
|||||
| 7F |
17.59 坪 58.15 ㎡ |
相談 |
無 |
5ヶ月 |
即日 |
|
|
|
| 8F |
17.59 坪 58.15 ㎡ |
相談 |
無 |
5ヶ月 |
即日 |
|
|
|
| 9F |
17.59 坪 58.15 ㎡ |
相談 |
無 |
5ヶ月 |
即日 |
|
|
|
| 10F |
17.53 坪 57.95 ㎡ |
相談 |
無 |
5ヶ月 |
即日 |
|
|
|
| 11F |
17.05 坪 56.38 ㎡ |
相談 |
無 |
5ヶ月 |
即日 |
|
|
|
| 12F |
17.05 坪 56.36 ㎡ |
※現在空室情報はございません |
※現在空室情報は 確認する |
|||||
| 13F |
17.87 坪 59.07 ㎡ |
※現在空室情報はございません |
※現在空室情報は 確認する |
|||||
お問い合わせ
似た条件の物件はこちら
-
ブルービル本館
東京都千代田区平河町1-3-10
坪数:12.55 坪
坪単価:10,757 円(坪)
-
喜助九段北ビル
東京都千代田区九段北1-4-7
坪数:12.98 坪
坪単価:11,000 円(坪)
-
三番町TYプラザ
東京都千代田区三番町24-25
坪数:8.6 坪
坪単価:19,767 円(坪)
-
浅松ビル
東京都千代田区六番町13-4
坪数:10.63 坪
坪単価:17,000 円(坪)
-
さくら五番町ビル
東京都千代田区五番町2-10
坪数:13.63 坪
坪単価:14,674 円(坪)
-
麹町K-118ビル
東京都千代田区麹町3-4-25
坪数:14.97 坪
坪単価:14,028 円(坪)
-
タイヤビル
東京都千代田区九段北1-10-2
坪数:13.31 坪
坪単価:12,021 円(坪)
-
第一小磯ビル
東京都千代田区九段南4-1-8
坪数:11.58 坪
坪単価:13,385 円(坪)
-
麹町第2センタービル
東京都千代田区麹町1-3-11
坪数:12.56 坪
坪単価:13,933 円(坪)
-
番町ロイヤルコート
東京都千代田区一番町23-2
坪数:11.97 坪
坪単価:14,871 円(坪)