装美ビル(物件No:21287205)
装美ビルは新宿区四谷にある地上7階建ての賃貸事務所です。最寄駅はJR中央・総武線の四ツ谷駅から徒歩2分、東京メトロ南北線の四ツ谷駅から徒歩2分、東京メトロ丸ノ内線の四ツ谷駅から徒歩2分です。1975年竣工の基準階面積が26坪の鉄骨鉄筋コンクリート造です。設備としては、エレベーターが1基あります。トイレは室外です。空調は個別空調です。複数駅利用可能なアクセスの良い新宿区四谷の賃貸オフィスです。
| 階 | 面積 | 賃料 | 共益費 | 敷金 | 入居日 | お問合せ | お気に入り |
|---|---|---|---|---|---|---|---|
|
6F
(601区画) |
14 坪 46.28 ㎡ |
200,000 円 14,286 円(坪) |
込 |
1,000,000 円 5 ヶ月 |
即日 |
|
|
| 階 | 面積 | 賃料 | 共益費 | 敷金 | 入居日 | お問合せ | お気に入り |
|---|---|---|---|---|---|---|---|
|
6F
(601区画) |
14 坪 46.28 ㎡ |
200,000 円 14,286 円(坪) |
込 |
1,000,000 円 5 ヶ月 |
即日 |
|
|
-
物件情報
-
設備情報
- トイレ
- 室外男女別
- 床
- -
- 空調
- 個別空調
- セキュリティ
- -
- 駐車場
- 無
- 会議室
- -
- エレベーター
- 1基
- 天井高
- -
-
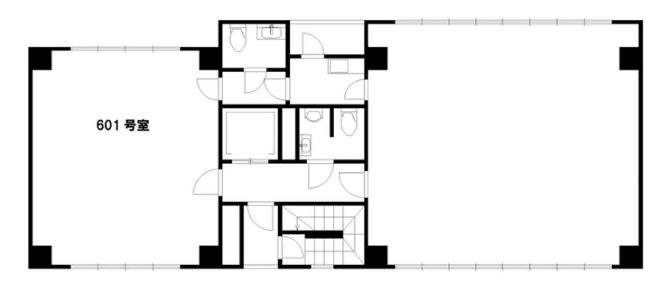
間取り図
-
近隣相場情報
四谷1丁目(20坪以下)の相場
14904 円 (坪)
※ビルサク調べ
周辺施設情報
| コンビニ |
セブンイレブン/四谷1丁目/25m(徒歩1分) ローソン/四谷一丁目/65m(徒歩1分) |
|---|---|
| 郵便局/銀行 |
セブン銀行/四谷1丁目店/[営業時間]24時間営業/25m(徒歩1分) ローソン銀行/四谷一丁目共同出張所/[営業時間]24時間/65m(徒歩1分) |
| 飲食店 |
テング酒場 四谷店/11時30分~23時30分/11m(徒歩1分) 居酒屋 鬼平/16時00分~0時00分/160m(徒歩2分) |
| カフェ |
ドトール/四谷1丁目南店/[営業時間]平日 7:00~21:30 土曜 7:30~21:00 日祝 8:00~21:00/170m(徒歩3分) サンマルクカフェ/四ツ谷駅前店/[営業時間]平日 7:00~21:30、土日祝 7:00~21:00/240m(徒歩4分) |
| コインパーキング |
タイムズ/三栄町第4 [料金] [月~土]通常料金 / 0:00~0:00 10分 220円 [日・祝]通常料金 / 0:00~0:00 10分 220円 [最大料金] [月~土]9:00~19:00 最大料金3300円 19:00~9:00 最大料金550円 [日・祝]9:00~19:00 最大料金1650円 19:00~9:00 最大料金550円 [台数]2 コインパーク/四谷1丁目第3 [料金] [料金]【全日】■通常料金【8:00~22:00】12分400円【22:00~8:00】60分100円 [最大料金] [料金]【全日】■最大料金【22:00~8:00】500円 [台数] [車: 5台] |
周辺地図
装美ビルは新宿区四谷にある地上7階建ての賃貸事務所です。最寄駅はJR中央・総武線の四ツ谷駅から徒歩2分、東京メトロ南北線の四ツ谷駅から徒歩2分、東京メトロ丸ノ内線の四ツ谷駅から徒歩2分です。1975年竣工の基準階面積が26坪の鉄骨鉄筋コンクリート造です。設備としては、エレベーターが1基あります。トイレは室外です。空調は個別空調です。複数駅利用可能なアクセスの良い新宿区四谷の賃貸オフィスです。
全フロア情報
更新日:2026年2月20日
| 階 | 面積 | 賃料 | 共益費 | 敷金 | 入居日 | お問合せ | お気に入り | |
|---|---|---|---|---|---|---|---|---|
|
2F
(201区画) |
14 坪 46.28 ㎡ |
※現在空室情報はございません |
※現在空室情報は 確認する |
|||||
|
3F
(301区画) |
14 坪 46.28 ㎡ |
※現在空室情報はございません |
※現在空室情報は 確認する |
|||||
|
3F
(302区画) |
22.75 坪 75.22 ㎡ |
※現在空室情報はございません |
※現在空室情報は 確認する |
|||||
|
5F
(502区画) |
22.22 坪 73.46 ㎡ |
※現在空室情報はございません |
※現在空室情報は 確認する |
|||||
|
6F
(601区画) |
14 坪 46.28 ㎡ |
200,000 円 14,286 円(坪) |
込 |
1,000,000 円 5 ヶ月 |
即日 |
|
|
|
|
6F
(602区画) |
22.22 坪 73.46 ㎡ |
※現在空室情報はございません |
※現在空室情報は 確認する |
|||||
お問い合わせ
似た条件の物件はこちら
-
belle四谷
東京都新宿区四谷1-18
坪数:15.61 坪
坪単価:16,000 円(坪)
-
マンションリキュー
東京都新宿区若葉1-21
坪数:18.18 坪
坪単価:9,626 円(坪)
-
斉藤ビルディング
東京都新宿区四谷3-1-4
坪数:17.6 坪
坪単価:15,997 円(坪)
-
四谷クリエイトビル
東京都新宿区四谷坂町1-11
坪数:17 坪
坪単価:10,882 円(坪)
-
木原ビル
東京都新宿区四谷三栄町6-5
坪数:16.19 坪
坪単価:9,265 円(坪)
-
エクシーナ四谷
東京都新宿区四谷4-3
坪数:12.01 坪
坪単価:16,653 円(坪)
-
晩成ハイツ
東京都新宿区四谷4-18-13
坪数:15.42 坪
坪単価:9,728 円(坪)
-
しんまつビル
東京都新宿区四谷4-29-9
坪数:17.37 坪
坪単価:13,032 円(坪)
-
第22相信ビル
東京都新宿区四谷2-2
坪数:16 坪
坪単価:10,000 円(坪)